ZÁHŘEB, HORNÍ MĚSTO - Unikátní dům zasazený do přírody
| č. ev | DN-43239 |
| Typ nabídky | Prodej |
| Kategorie | Domy |
| Okresy | Grad Zagreb |
| Obec, část obce | Gornji Grad - Medveščak |
| Cena | 1 600 000 € |
| Plocha celkem | 350 m² |
| Zastavěná plocha a nádvoří (dvůr) | 690 m² |
| Celková zastavěná plocha | 690 m² |
| Elektřina | |
| Odpady |
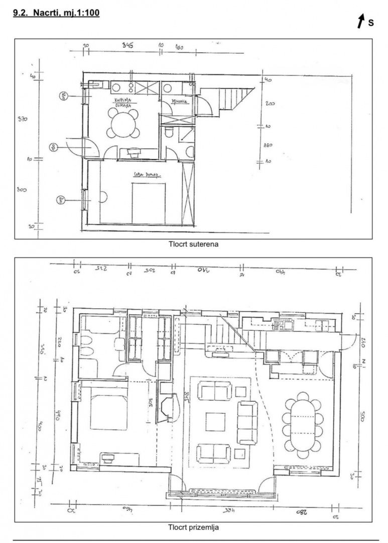
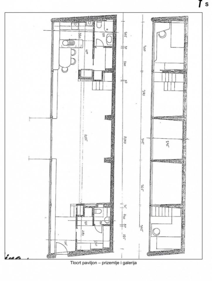
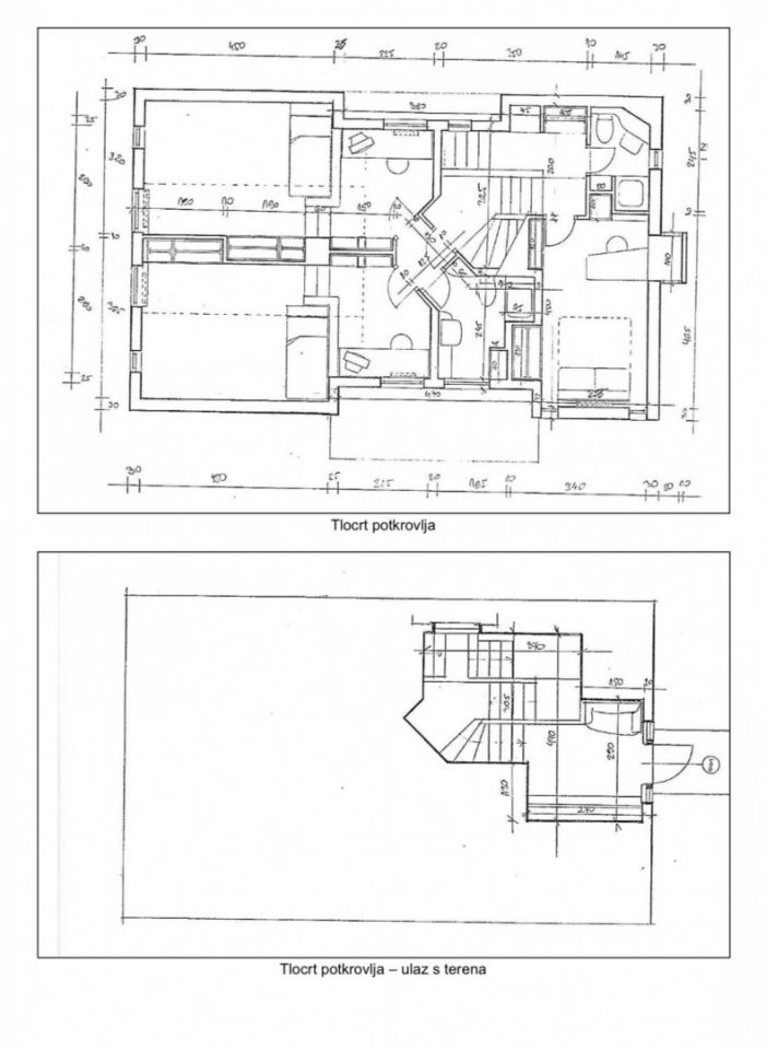
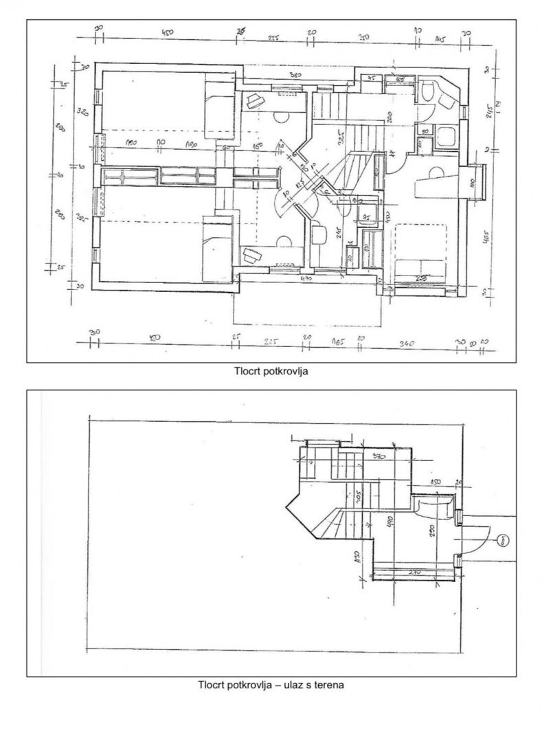
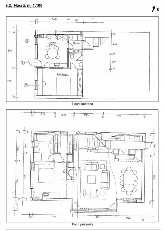
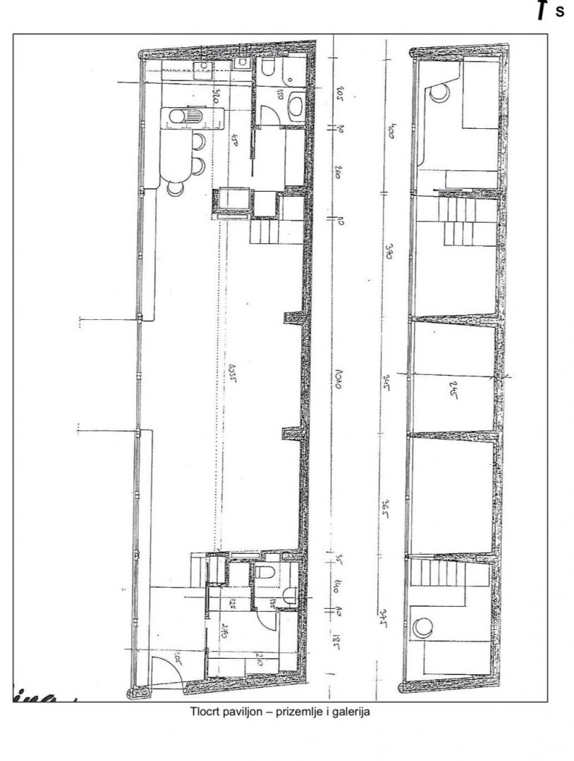
ZÁHŘEB, HORNÍ MĚSTO - Unikátní dům zasazený do přírody V srdci zeleně, pouhých 12 minut chůze od Ilice a centra Záhřebu, se nachází tento unikátní dům, který nabízí naprostý klid a soukromí – bez sousedů a s výhledem na přírodu Dubravkin put a Tuškanac. Vedle domu se nachází i obchodní prostor. Obytný dům se rozkládá na třech podlažích a má celkovou plochu 262 m2. V prvním patře domu se nacházejí dvě ložnice, pracovna a dvě koupelny. Vstup do druhého patra vede do obývacího pokoje. Prostorný obývací pokoj je propojen s velkou terasou zasazenou do přírodního prostředí, což vytváří dokonalé propojení mezi interiérem a exteriérem. Půdorys druhého patra doplňuje kuchyň, jídelna a hlavní ložnice s vlastní koupelnou. Třetí patro domu je navrženo jako samostatná bytová jednotka se dvěma ložnicemi. Výše uvedený byt je se zbytkem domu propojen vnitřním schodištěm a má také samostatný vchod zvenčí. Vedle domu se nachází samostatná budova s obchodním prostorem o rozloze 112 m2, ideální pro pracovní tým deseti lidí. Půdorys obchodního prostoru se skládá z větší otevřené místnosti u vchodu, dvou menších samostatných galerií a koupelny s toaletou. Tato lokalita, která se nachází podél slavné promenády Dubravkin put, nabízí výjimečnou kombinaci soukromí a dostupnosti. Veškerá městská občanská vybavenost je v blízkosti a veřejná doprava (autobusová linka 105) zajišťuje rychlé spojení se zbytkem města. Architektonický návrh domu a obchodní budovy je podepsán významným záhřebským architektem a profesorem, který také dohlížel na celou stavbu. Objekt byl postaven s využitím pilotového systému v kombinaci s kovovými a železobetonovými konstrukcemi, přičemž přístupové schodiště je vyrobeno z oceli a dřeva, rovněž zajištěno pilotovými základy. Díky této konstrukci neutrpěla budova během záhřebských zemětřesení žádné škody – potvrzení výjimečné kvality a stability konstrukce. Vzhledem ke své jedinečné poloze v přírodním prostředí, přesto jen krůček od centra, je tato nemovitost ideální volbou pro bydlení, letní sídlo nebo jako investiční příležitost.
U všech našich nabídek jsou ceny nemovitostí identické jako při koupi přímo u agentury/developera v Chorvatsku, a to díky tomu, že jsme oficiální zastoupení těchto kanceláří na Českém, Slovenském, Německém a Rakouském trhu. A to bez dodatečných navýšení za služby v českém jazyce (mimo překladů smluv ověřených notářem).
Vážení klienti, prohlídka nemovitostí, sdělení polohy a další podrobné informace je možné pouze s podepsanou smlouvou o zastoupení, která je základem pro další akce jako je nákup nemovitosti. Vše je dle Zákona o zprostředkování při koupi nemovitostí. Kupující platí zákonnou provizi za zastoupení ve výši 3 % (+ DPH) z dohodnuté ceny, a to pouze v případě koupě nemovitosti. V případě, že se koupě neuskuteční, smlouva Vás k ničemu nezavazuje, a ruší se. V případě vážného zájmu o nemovitost Vám smlouvu zašleme na požádání.
Odpovíme Vám do 24 hodin.
Nabízíme pouze prověřené reality.
Ručíme za kvalitní servis.
Pomůžeme zajistit ubytování při prohlídkách.