VODICE, SRIMA – Apartmán se zahradou v přízemí novostavby, 70 m od moře
| č. ev | DN-43091 |
| Typ nabídky | Prodej |
| Kategorie | Byty |
| Okresy | Šibensko-kninska |
| Obec, část obce | Vodice |
| Cena | 335 160 € |
| Plocha celkem | 80 m² |
| Plocha bydlení (bytu) | 80 m² |
| Zastavěná plocha a nádvoří (dvůr) | 84 m² |
| Celková zastavěná plocha | 84 m² |
| Vzdálenost od moře | 70 m |
| Elektřina | |
| Voda | |
| Klimatizace | |
| Topení | ano |
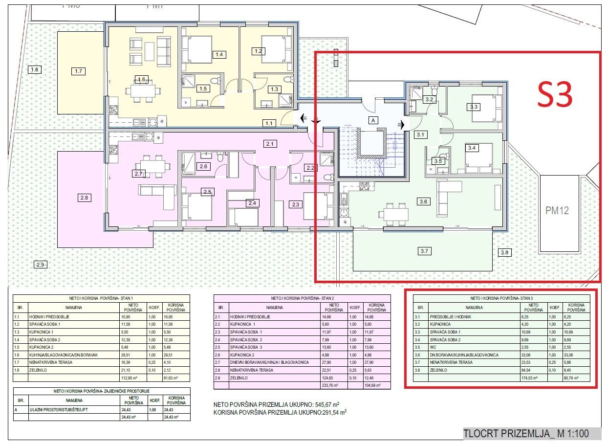
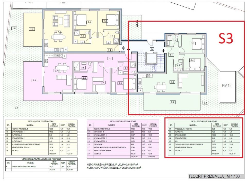
ŠIBENIK, SRIMA – Exkluzivní byt v přízemí, 70 m od moře a pláže – rarita na trhu X představuje moderní byt S3, který se nachází v novostavbě s celkem osmi bytovými jednotkami, na mimořádně atraktivním místě v Srimě, pouhých 70 metrů od moře a pláže, ve druhé řadě od moře. Tato unikátní nemovitost dokonale kombinuje špičkovou kvalitu konstrukce, moderní design a vynikající polohu, což z ní činí ideální volbu pro klidný rodinný život, dovolenou nebo investici v blízkosti moře. Byt se nachází v přízemí budovy, což umožňuje snadný přístup na terasu a prostornou zahradu, a díky své jihovýchodní orientaci se těší dostatku přirozeného světla po celý den. Celková čistá plocha bytu je 174,53 m², zatímco užitná obytná plocha je 80,79 m². Zvláštní hodnotu této nemovitosti dodává prostorný dvůr o rozloze 84,54 m², což je na trhu skutečná rarita a ideální místo k relaxaci a vychutnání si středomořské atmosféry. Popis prostoru: Byt S3 má mimořádně funkční dispozici a vzdušné místnosti. Po vstupu vás přivítá chodba s předsíní, která vede do otevřeného prostoru obývacího pokoje, kuchyně a jídelny s přístupem na velkou nekrytou terasu a upravenou zahradu, ideální pro venkovní bydlení. K dispozici jsou také dvě ložnice, koupelna a samostatná toaleta, která poskytuje dodatečnou praktičnost. K bytu náleží také jedno parkovací místo, což dále zvyšuje jeho funkčnost a hodnotu. Půdorys (čistá plocha): Vstupní hala a chodba: 6,25 m² Koupelna: 4,20 m² Ložnice 1: 10,69 m² Ložnice 2: 9,69 m² WC: 2,55 m² Obývací pokoj, kuchyň a jídelna: 33,08 m² Nekrytá terasa: 23,53 m² Zahrada: 84,54 m² Celková čistá plocha: 174,53 m² Užitná obytná plocha: 80,79 m² Vybavení a prvky: Vzdálenost od moře a pláže: 70 m / 1 minuta chůze Orientace: jihovýchod Podlahové vytápění v koupelně a obývacím pokoji Klimatizace ve všech místnostech PVC okna s trojsklem a elektrickými roletami Tepelně izolovaná fasáda (10 cm) Keramika a sanitární keramika nejvyšší kvality od renomovaných výrobců Vysoce kvalitní materiály a provedení Seriózní dodavatel s osvědčenou pověstí Jedno parkovací místo v ceně Prostorná zahrada o rozloze 84,54 m² - rarita na trhu Tato moderní novostavba v Srimě představuje vynikající příležitost k nákupu luxusního apartmánu v blízkosti moře, který kombinuje pohodlí, funkčnost a prestižní lokalitu. Pro veškeré další informace a pro domluvení prohlídky nás prosím kontaktujte. Srima je klidná a okouzlující přímořská vesnice známá svými dlouhými oblázkovými plážemi, křišťálově čistým mořem a uvolněnou středomořskou atmosférou. Díky své blízkosti Vodice a Šibeniku nabízí perfektní rovnováhu mezi klidem a dostupností veškerého vybavení potřebného pro pohodlný život.
U všech našich nabídek jsou ceny nemovitostí identické jako při koupi přímo u agentury/developera v Chorvatsku, a to díky tomu, že jsme oficiální zastoupení těchto kanceláří na Českém, Slovenském, Německém a Rakouském trhu. A to bez dodatečných navýšení za služby v českém jazyce (mimo překladů smluv ověřených notářem).
Vážení klienti, prohlídka nemovitostí, sdělení polohy a další podrobné informace je možné pouze s podepsanou smlouvou o zastoupení, která je základem pro další akce jako je nákup nemovitosti. Vše je dle Zákona o zprostředkování při koupi nemovitostí. Kupující platí zákonnou provizi za zastoupení ve výši 3 % (+ DPH) z dohodnuté ceny, a to pouze v případě koupě nemovitosti. V případě, že se koupě neuskuteční, smlouva Vás k ničemu nezavazuje, a ruší se. V případě vážného zájmu o nemovitost Vám smlouvu zašleme na požádání.
Odpovíme Vám do 24 hodin.
Nabízíme pouze prověřené reality.
Ručíme za kvalitní servis.
Pomůžeme zajistit ubytování při prohlídkách.