ŠIBENIK, BRODARICA - Krásný jednopokojový apartmán v přízemí S2 se zahradou
| č. ev | DN-46233 |
| Typ nabídky | Prodej |
| Kategorie | Byty |
| Okresy | Šibensko-kninska |
| Obec, část obce | Šibenik - Okolica |
| Cena | 200 000 € |
| Plocha celkem | 53 m² |
| Plocha bydlení (bytu) | 53 m² |
| Zastavěná plocha a nádvoří (dvůr) | 64 m² |
| Celková zastavěná plocha | 64 m² |
| Vzdálenost od moře | 300 m |
| Elektřina | |
| Voda | |
| Odpady | |
| Klimatizace |
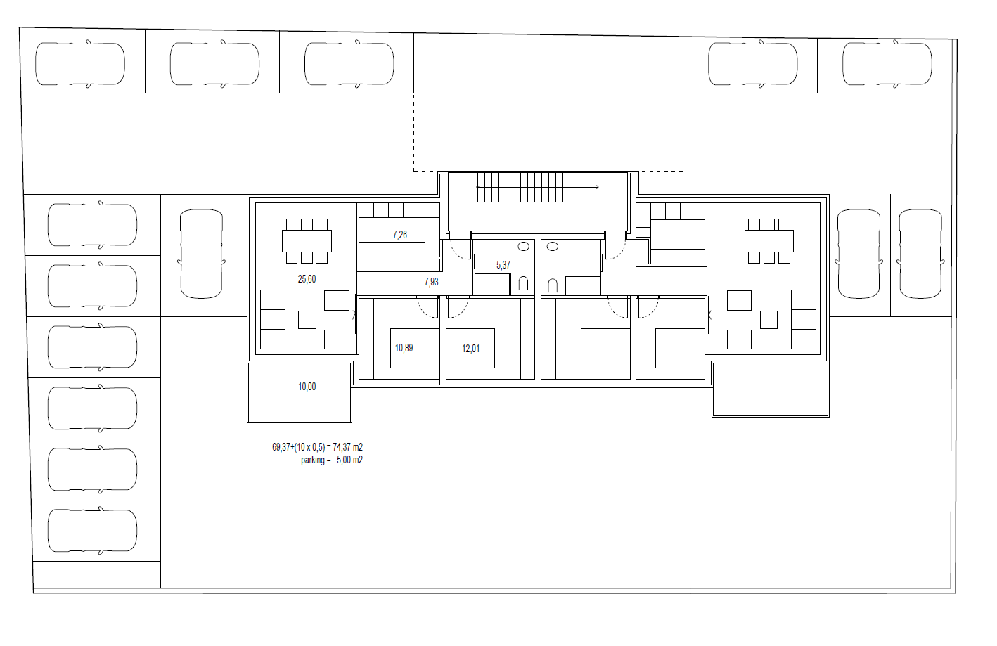
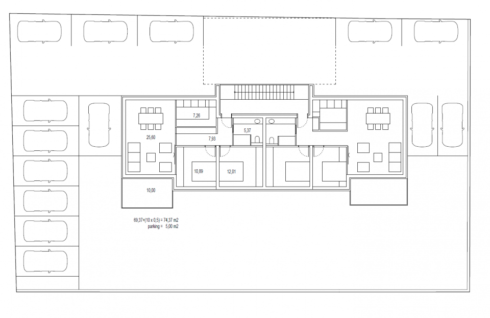
ŠIBENIK, BRODARICA - Krásný jednopokojový apartmán v přízemí S2 se zahradou V jedné z nejžádanějších lokalit v okolí Šibeniku, v klidné a udržované Brodarici, se nachází tento elegantní jednopokojový apartmán v přízemí moderní novostavby, ideální pro ty, kteří hledají kombinaci pohodlí, soukromí a blízkosti moře. Apartmán s celkovou obytnou plochou 53 m² vyniká svým funkčním a pečlivě navrženým uspořádáním. Vstupní hala o rozloze 2,53 m² vede do koupelny o rozloze 4,83 m² a do prostorného otevřeného prostoru kuchyně, jídelny a obývacího pokoje o rozloze 23,54 m², který poskytuje příjemný a moderní prostor pro každodenní život. Z obývacího pokoje je přístup do ložnice o rozloze 10,89 m², která zajišťuje klid a soukromí. Zvláštní výhodou této nemovitosti je východ z obývacího pokoje a ložnice na soukromý dvůr. Dvůr o skutečné ploše 64 m² (v přepočtu 6,4 m²) představuje v novostavbě vzácný komfort a poskytuje přidanou hodnotu a kvalitu bydlení. To, co odlišuje tuto nemovitost na trhu, je pocit naprostého soukromí a svobody – soukromá zahrada nabízí možnost vytvořit oázu pro relaxaci, středomořskou zahradu nebo exkluzivní prostor pro setkávání, což se v bytech vyskytuje jen zřídka. Přidanou hodnotu poskytuje otevřený výhled na moře, ostrov Krapanj – nejníže položený ostrov na světě, a panorama města Šibenik, které je vzdálené jen pár minut jízdy autem. K bytu náleží dvě parkovací místa. Při stavbě byly použity nejkvalitnější materiály a moderní vybavení: PVC truhlářské výrobky s trojsklem, klimatizace ve všech místnostech a podlahové vytápění v koupelně, s důrazem na energetickou účinnost a dlouhodobý komfort bydlení. Budoucím majitelům je nabízena flexibilita koupě – byt lze převzít v aktuálním stavu nebo po dohodě o kompletním vybavení a vybavení nábytkem dle vlastního výběru. Stavba je financována z vlastních prostředků investora, což umožňuje bezpečnou koupi i prostřednictvím hypotéky, a dokončení prací je plánováno do konce roku. Tato nemovitost představuje na trhu vzácnou příležitost – ideální pro luxusní dovolenou u moře, pohodlný rodinný život nebo jako špičkovou investici s vynikajícím turistickým potenciálem.
U všech našich nabídek jsou ceny nemovitostí identické jako při koupi přímo u agentury/developera v Chorvatsku, a to díky tomu, že jsme oficiální zastoupení těchto kanceláří na Českém, Slovenském, Německém a Rakouském trhu. A to bez dodatečných navýšení za služby v českém jazyce (mimo překladů smluv ověřených notářem).
Vážení klienti, prohlídka nemovitostí, sdělení polohy a další podrobné informace je možné pouze s podepsanou smlouvou o zastoupení, která je základem pro další akce jako je nákup nemovitosti. Vše je dle Zákona o zprostředkování při koupi nemovitostí. Kupující platí zákonnou provizi za zastoupení ve výši 3 % (+ DPH) z dohodnuté ceny, a to pouze v případě koupě nemovitosti. V případě, že se koupě neuskuteční, smlouva Vás k ničemu nezavazuje, a ruší se. V případě vážného zájmu o nemovitost Vám smlouvu zašleme na požádání.
Odpovíme Vám do 24 hodin.
Nabízíme pouze prověřené reality.
Ručíme za kvalitní servis.
Pomůžeme zajistit ubytování při prohlídkách.