ŠIBENIK, BRODARICA – 2. řada k moři, výhled, terasa, NOVOSTAVBA!
| č. ev | DN-47350 |
| Typ nabídky | Prodej |
| Kategorie | Byty |
| Okresy | Šibensko-kninska |
| Obec, část obce | Šibenik - Okolica |
| Cena | 421 000 € |
| Plocha celkem | 66 m² |
| Plocha bydlení (bytu) | 66 m² |
| Vzdálenost od moře | 50 m |
| Elektřina | |
| Voda | |
| Klimatizace | |
| Topení | ano |
| Energetická náročnost | A - mimořádně úsporná |
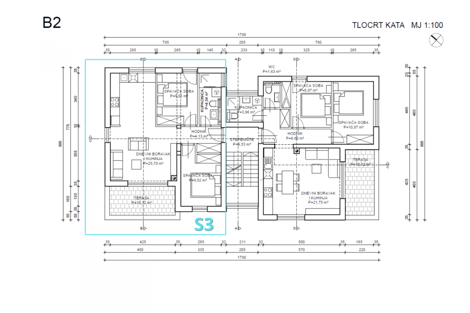
ŠIBENIK, BRODARICA - 2. řada u moře, výhled, terasa, NOVOSTAVBA! Blízkost moře jen pár kroků (2. řada u moře) a otevřený výhled na moře z terasy - právě tato kombinace dělá tento apartmán v Brodarici, jedné z nejvyhledávanějších lokalit v okolí Šibeniku, tak atraktivním. Projekt se skládá ze dvou menších budov se 6 apartmány, rozmístěnými v přízemí a dvou patrech, což znamená pouze 2 apartmány na patro a výrazně více soukromí. Budovy jsou situovány v 1. a 2. řadě u moře, přičemž všechny apartmány mají výhled na moře. Tato mikrolokace přináší to, co je nejtěžší najít - bezprostřední blízkost moře bez kompromisů a dlouhodobě jednu z nejcennějších pozic na trhu. Apartmán S3 se nachází v 1. patře budovy B2 (2. řada u moře), má čistou plochu 66,77 m² (63,20 m² vnitřní obytné plochy) a je orientován na jih. Skládá se ze 2 ložnic, chodby, koupelny a obývacího pokoje s kuchyní a jídelním koutem, který se přirozeně otevírá na terasu s výhledem na moře. Velká prosklená stěna v obývacím pokoji v kombinaci se skleněným zábradlím na terase dále zdůrazňuje výhled na moře a vytváří silný pocit propojení mezi interiérem a exteriérem. DISPOZICE • otevřený obývací pokoj s kuchyní a jídelnou • výstup na terasu s krásným otevřeným výhledem na moře • 2 ložnice • koupelna • parkovací místo KVALITA A VYBAVENÍ STAVBY • podlahové vytápění (obývací prostor + koupelna) • klimatizace ve všech místnostech • trojitá okna + elektrické rolety + moskytiéry • velké posuvné skleněné stěny (maximálně otevírají prostor k moři) • skleněné zábradlí (nebrání výhledu) • moderní koupelny • interkom • TV a internet ve všech místnostech LOKALITA Brodarica přináší rovnováhu mezi každodenním životem a blízkostí moře - dostatečně blízko města, ale bez městských davů. Kupující si tuto lokalitu vybírají, protože umožňuje rychlý přístup do Šibeniku, ale také klidnější rytmus života mimo sezónu. Zvláštní hodnotou je bezprostřední blízkost moře, která dlouhodobě zachovává hodnotu nemovitosti. • moře: 20 m • centrum Šibeniku: 5,5 km (~10 min jízdy) • supermarket: 900 m • škola / školka: cca 1,5 km • NP Krka a přístup na dálnici: cca 10 min Mikrolokace se nachází ve 2. řadě od moře, s pláží jen pár kroků – dostatečně blízko pro každodenní užívání a s větší úrovní soukromí. Brodarica se nachází v samém srdci střední Dalmácie, hned vedle Šibeniku, což jí dává strategickou polohu mezi dvěma klíčovými regionálními centry – Zadarem a Splitem. Díky blízkosti dálnice a dvou mezinárodních letišť – letiště Split a letiště Zadar – je lokalita mimořádně dobře dopravní spojení a snadno dostupná po celý rok. PRO KOHO JE NEMOVITOST IDEÁLNÍ Pro kupující, kteří chtějí byt jen pár kroků od moře, s terasou a otevřeným výhledem na moře, s možností turistického pronájmu. Apartmány v této lokalitě, ve 2. řadě u moře, rychle najdou kupce - kontaktujte nás pro dostupnost a další informace.
U všech našich nabídek jsou ceny nemovitostí identické jako při koupi přímo u agentury/developera v Chorvatsku, a to díky tomu, že jsme oficiální zastoupení těchto kanceláří na Českém, Slovenském, Německém a Rakouském trhu. A to bez dodatečných navýšení za služby v českém jazyce (mimo překladů smluv ověřených notářem).
Vážení klienti, prohlídka nemovitostí, sdělení polohy a další podrobné informace je možné pouze s podepsanou smlouvou o zastoupení, která je základem pro další akce jako je nákup nemovitosti. Vše je dle Zákona o zprostředkování při koupi nemovitostí. Kupující platí zákonnou provizi za zastoupení ve výši 3 % (+ DPH) z dohodnuté ceny, a to pouze v případě koupě nemovitosti. V případě, že se koupě neuskuteční, smlouva Vás k ničemu nezavazuje, a ruší se. V případě vážného zájmu o nemovitost Vám smlouvu zašleme na požádání.
Odpovíme Vám do 24 hodin.
Nabízíme pouze prověřené reality.
Ručíme za kvalitní servis.
Pomůžeme zajistit ubytování při prohlídkách.