ZADAR, VIR - Luxusní apartmán se střešní terasou a krásným výhledem na moře před pláží Jadro! BS3
| č. ev | DN-40566 |
| Typ nabídky | Prodej |
| Kategorie | Byty |
| Okresy | Zadarska |
| Obec, část obce | Vir |
| Cena | 727 000 € |
| Plocha celkem | 151 m² |
| Plocha bydlení (bytu) | 151 m² |
| Vzdálenost od moře | 45 m |
| Elektřina | |
| Voda | |
| Odpady | |
| Klimatizace |
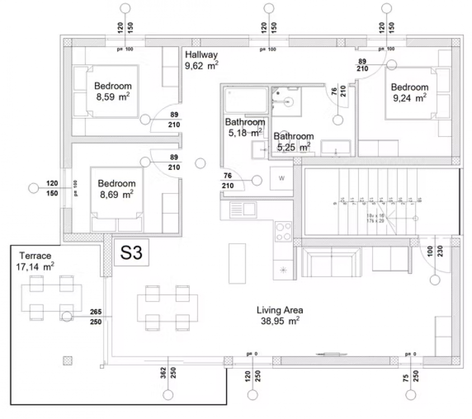
ZADAR, VIR - Luxusní apartmán se střešní terasou a krásným výhledem na moře před pláží Jadro! BS3. Na prodej jsou apartmány ve dvou moderních budovách – budově B a budově C – které se nacházejí v jedné z nejlepších lokalit na ostrově Vir, přímo před nejznámější a nejnavštěvovanější pláží Jadro. Budova A, která se nachází první u moře, byla kompletně prodána a nyní máte možnost zajistit si svůj apartmán v budovách B a C, pouhých 45 metrů od pláže. Všechny apartmány mají krásný výhled na moře a byly pečlivě navrženy tak, aby poskytovaly maximální pohodlí, luxus a funkčnost po celý rok. Nabízíme apartmán BS3 v patře budovy B – prostorný apartmán sestávající ze tří ložnic, dvou koupelen, velkého obývacího pokoje, kuchyně s jídelnou, chodby, kryté terasy s krásným výhledem na moře a střešní terasy, která nabízí také okouzlující panoramatický výhled. Apartmán má vlastní úložný prostor a dvě soukromá parkovací místa. Budovy jsou postaveny podle nejvyšších standardů - železobetonové základy a desky, nosné stěny z cihel Porotherm Plan o tloušťce 25 cm, příčky o tloušťce 12–25 cm, dodatečná zvuková izolace mezi byty a pokoji a vysoce kvalitní fasádní izolace Austrotherm EPS o tloušťce 10 cm se silikonovou úpravou. Ve schodištích je použita zvukově pohlcující korková podložka a na mezipodlažních panelech je položena dvouvrstvá zvuková izolace (Rockwool Steprock + AT-L 2). Jsou instalovány hliníkové truhlářské výrobky Feal Thermo 85, okna a posuvné stěny Thermo 150 s trojvrstvým IZO sklem dle norem RAL. Byty mají hliníkové rolety ovládané systémem Somfy TAHOMA, protisluneční skla na osluněných plochách, moskytiéry na všech oknech a bezpečnostní vstupní dveře Hörmann s elektrickým zámkem a možností kódového uzamčení. Vnitřní dveře jsou Hörmann Duradecor v elegantním designu kartáčovaného modřínu. Podlahy jsou pokryty voděodolnými a extrémně odolnými širokými parketami Swiss Krono. Koupelny a kuchyně jsou obloženy velkoplošnými keramickými obklady o rozměrech 60x120 cm v moderním designu, s kvalitními armaturami Grohe nebo Ideal Standard Cube a sprchovými kouty bez závěsů. Byty jsou klimatizovány jednotkami Samsung Windfree s Wi-Fi ovládáním a navíc jsou vybaveny elektrickým podlahovým vytápěním v koupelnách a kuchyních s Wi-Fi ovládáním, elektrickými kotli Ariston Velis, větracími systémy s rekuperací vzduchu v obývacích pokojích a kuchyních a přípravou pro elektrické radiátory. V koupelnách je moderní krychlový vyhřívaný věšák na ručníky. Veškerá elektroinstalace zahrnuje špičkové venkovní osvětlení, předinstalaci alarmu systémem TAHOMA, skleněné vypínače a zásuvky LIVOLO, instalované televizní a internetové sítě v obývacích pokojích a ložnicích a také předinstalaci nabíječek pro elektromobily v parkovacích místech. Terasy jsou zdobeny špičkovou keramikou, umělou trávou a dekorativním štěrkem a dvory jsou ozdobeny okrasnými rostlinami. Soukromá parkovací místa se nacházejí v oploceném dvoře s automatickými vraty. Bylo instalováno ambientní osvětlení, poštovní schránky, odpadkové koše, ploty a brány oddělující soukromé zóny a byla provedena příprava na vířivku s elektrickými a kanalizačními přípojkami. Plánované dokončení výstavby je na jaře roku 2026 a další výhodou je, že prodávající je právnická osoba - kupující je osvobozen od placení daně z nemovitosti. Vir je jeden z nejnavštěvovanějších chorvatských ostrovů, spojený s pevninou mostem, ideální pro rodinnou dovolenou, sport, rekreaci a užívání si přírody. Pláž Jadro, přímo před budovami, je známá svým křišťálově čistým mořem, dobře udržovaným zařízením pro děti i dospělé a četnými restauracemi a kavárnami u moře. Město Zadar, jedno z nejkrásnějších měst na Jadranu, je vzdáleno pouhých 25 minut jízdy autem a nabízí bohatou kulturní a gastronomickou nabídku. Pro více informací a prohlídku památek nás neváhejte kontaktovat - je to příležitost, kterou si nechcete nechat ujít.
U všech našich nabídek jsou ceny nemovitostí identické jako při koupi přímo u agentury/developera v Chorvatsku, a to díky tomu, že jsme oficiální zastoupení těchto kanceláří na Českém, Slovenském, Německém a Rakouském trhu. A to bez dodatečných navýšení za služby v českém jazyce (mimo překladů smluv ověřených notářem).
Vážení klienti, prohlídka nemovitostí, sdělení polohy a další podrobné informace je možné pouze s podepsanou smlouvou o zastoupení, která je základem pro další akce jako je nákup nemovitosti. Vše je dle Zákona o zprostředkování při koupi nemovitostí. Kupující platí zákonnou provizi za zastoupení ve výši 3 % (+ DPH) z dohodnuté ceny, a to pouze v případě koupě nemovitosti. V případě, že se koupě neuskuteční, smlouva Vás k ničemu nezavazuje, a ruší se. V případě vážného zájmu o nemovitost Vám smlouvu zašleme na požádání.
Odpovíme Vám do 24 hodin.
Nabízíme pouze prověřené reality.
Ručíme za kvalitní servis.
Pomůžeme zajistit ubytování při prohlídkách.