ZADAR, RAŽANAC - Novostavba! Podlahové vytápění, výtah, výhled na moře, úložný prostor...! S6
| č. ev | DN-41103 |
| Typ nabídky | Prodej |
| Kategorie | Byty |
| Okresy | Zadarska |
| Obec, část obce | Ražanac |
| Cena | 298 991 € |
| Plocha celkem | 77 m² |
| Plocha bydlení (bytu) | 77 m² |
| Vzdálenost od moře | 320 m |
| Elektřina | |
| Voda | |
| Klimatizace |
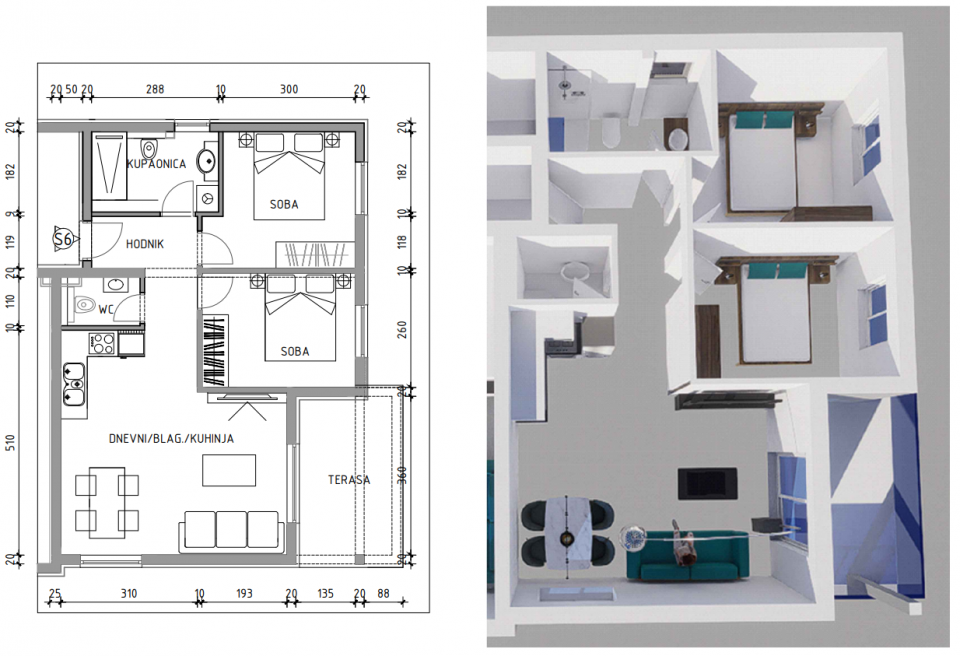
ZADAR, RAŽANAC - Novostavba! Podlahové vytápění, výtah, výhled na moře, úložný prostor...! S6. Na prodej jsou špičkové apartmány v novostavbě nacházející se v klidném a malebném místě Ražanac, ideálním pro bydlení, dovolenou nebo investici. Budova má celkem šest moderně navržených apartmánů, každý s vlastním úložným prostorem v suterénu a vlastním parkovacím místem. Jsou vzdáleny pouhých 320 metrů od oblázkové pláže s výhledem na Velebit. Budova je vybavena výtahem a všechny apartmány mají podlahové vytápění, které zaručuje příjemnou teplotu po celý rok. Každá jednotka má také vestavěnou klimatizaci ve všech místnostech, což dále přispívá ke komfortu. Apartmán S6 ve druhém patře nabízí perfektní kombinaci funkčnosti a pohodlí - skládá se ze dvou ložnic, moderní koupelny, další toalety, prostorného obývacího pokoje s kuchyní a jídelnou, kryté terasy a další střešní terasy s krásným výhledem na moře. Plánované dokončení je do konce roku 2025. Ražanac je okouzlující dalmatské městečko, které spojuje klid, přírodu a tradiční středomořský duch. Jeho pláže jsou známé svou výjimečnou čistotou a úchvatnými výhledy na mohutný Velebit, který vytváří dechberoucí scenérie. Je ideální pro každého, kdo hledá únik od shonu každodenního života a chce si užít autentickou přímořskou atmosféru. Pro více informací nebo prohlídku nás neváhejte kontaktovat – apartmány jsou připraveny k nastěhování a tato příležitost se naskytne jen zřídka.
U všech našich nabídek jsou ceny nemovitostí identické jako při koupi přímo u agentury/developera v Chorvatsku, a to díky tomu, že jsme oficiální zastoupení těchto kanceláří na Českém, Slovenském, Německém a Rakouském trhu. A to bez dodatečných navýšení za služby v českém jazyce (mimo překladů smluv ověřených notářem).
Vážení klienti, prohlídka nemovitostí, sdělení polohy a další podrobné informace je možné pouze s podepsanou smlouvou o zastoupení, která je základem pro další akce jako je nákup nemovitosti. Vše je dle Zákona o zprostředkování při koupi nemovitostí. Kupující platí zákonnou provizi za zastoupení ve výši 3 % (+ DPH) z dohodnuté ceny, a to pouze v případě koupě nemovitosti. V případě, že se koupě neuskuteční, smlouva Vás k ničemu nezavazuje, a ruší se. V případě vážného zájmu o nemovitost Vám smlouvu zašleme na požádání.
Odpovíme Vám do 24 hodin.
Nabízíme pouze prověřené reality.
Ručíme za kvalitní servis.
Pomůžeme zajistit ubytování při prohlídkách.