ZADAR, PRIVLAKA - Třípatrový apartmán s výhledem na moře. Novostavba!
| č. ev | DN-44335 |
| Typ nabídky | Prodej |
| Kategorie | Byty |
| Okresy | Zadarska |
| Obec, část obce | Privlaka |
| Cena | 250 000 € |
| Plocha celkem | 110 m² |
| Plocha bydlení (bytu) | 110 m² |
| Vzdálenost od moře | 800 m |
| Elektřina | |
| Voda | |
| Klimatizace | |
| Topení | ano |
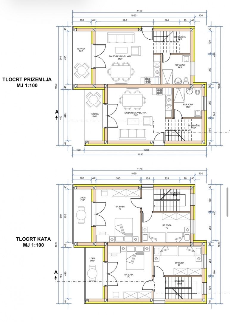
ZADAR, PRIVLAKA - Třípatrový apartmán s výhledem na moře. Novostavba! Prodává se moderní třípatrový apartmán ve výstavbě v Privlace u Zadaru o celkové rozloze přibližně 110 m², který se nachází v menším bytovém domě s celkem dvěma apartmány. Apartmán má krásný výhled na moře a nachází se v klidné lokalitě, ideální k bydlení, dovolené nebo turistickému pronájmu. V přízemí apartmánu se nachází prostorný obývací pokoj s kuchyní a jídelnou, koupelna a vstup na terasu. V prvním patře jsou dvě ložnice, koupelna a lodžie. V podkroví se nachází kuchyňský kout a velká terasa o rozloze 25 m². Vzdálenost k moři je přibližně 800 metrů, přičemž veškerá důležitá zařízení, jako jsou obchody, kavárny, restaurace a centrum města, jsou k dispozici do jednoho kilometru. Písčité pláže se nacházejí ve vzdálenosti 1 až 1,5 kilometru, centrum královského města Nin je vzdálené pouze 1,5 kilometru, zatímco město Zadar je vzdálené 17 kilometrů. Plánované dokončení prací je konec roku 2026. Nemovitost má platné stavební povolení. Privlaka je mimořádně vyhledávaná lokalita v blízkosti Zadaru, známá svými dlouhými písečnými plážemi, mělkým a teplým mořem a příjemným středomořským klimatem. Místo je ideální pro rodinný život, ale také jako investice v cestovním ruchu díky blízkosti Ninu, Zadaru, ostrovů Vir a Pag. Tato nemovitost představuje vynikající příležitost k nákupu kvalitního bytu v klidné a perspektivní lokalitě.
U všech našich nabídek jsou ceny nemovitostí identické jako při koupi přímo u agentury/developera v Chorvatsku, a to díky tomu, že jsme oficiální zastoupení těchto kanceláří na Českém, Slovenském, Německém a Rakouském trhu. A to bez dodatečných navýšení za služby v českém jazyce (mimo překladů smluv ověřených notářem).
Vážení klienti, prohlídka nemovitostí, sdělení polohy a další podrobné informace je možné pouze s podepsanou smlouvou o zastoupení, která je základem pro další akce jako je nákup nemovitosti. Vše je dle Zákona o zprostředkování při koupi nemovitostí. Kupující platí zákonnou provizi za zastoupení ve výši 3 % (+ DPH) z dohodnuté ceny, a to pouze v případě koupě nemovitosti. V případě, že se koupě neuskuteční, smlouva Vás k ničemu nezavazuje, a ruší se. V případě vážného zájmu o nemovitost Vám smlouvu zašleme na požádání.
Odpovíme Vám do 24 hodin.
Nabízíme pouze prověřené reality.
Ručíme za kvalitní servis.
Pomůžeme zajistit ubytování při prohlídkách.