ZADAR, PRIVLAKA - Luxusní penthouse s bazénem na střešní terase! S5
| č. ev | DN-35962 |
| Typ nabídky | Prodej |
| Kategorie | Byty |
| Okresy | Zadarska |
| Obec, část obce | Privlaka |
| Cena | 362 000 € |
| Plocha celkem | 90 m² |
| Plocha bydlení (bytu) | 90 m² |
| Vzdálenost od moře | 110 m |
| Elektřina | |
| Voda | |
| Klimatizace |
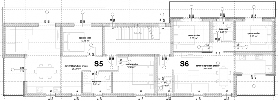
ZADAR, PRIVLAKA - Luxusní penthouse s bazénem na střešní terase! S5. Na prodej luxusní penthouse v Privlace, který se nachází ve druhém patře novostavby, s okouzlujícím výhledem na moře a jen 110 metrů od pobřeží. Tato jedinečná nemovitost nabízí dokonalou kombinaci moderního designu, pohodlí a prestiže s pečlivě promyšleným uspořádáním, které zahrnuje dvě prostorné ložnice, elegantní koupelnu, otevřenou kuchyni, jídelnu a obývací pokoj. Specialitou tohoto penthouse jsou dvě terasy - krytá terasa ideální pro každodenní požitek a velkolepá střešní terasa se soukromým bazénem, ideální pro relaxaci s nezapomenutelnými panoramatickými výhledy na moře a západy slunce. Byt je vybaven podlahovým vytápěním v celém prostoru a klimatizací ve všech místnostech, což zajišťuje maximální komfort v kteroukoli roční dobu. Dvě parkovací místa dále zvyšují praktičnost této nemovitosti, což z ní činí ideální volbu pro luxusní dům, dovolenou nebo investici do cestovního ruchu. Kontaktujte nás pro více informací a domluvte si prohlídku tohoto jedinečného penthouse!
U všech našich nabídek jsou ceny nemovitostí identické jako při koupi přímo u agentury/developera v Chorvatsku, a to díky tomu, že jsme oficiální zastoupení těchto kanceláří na Českém, Slovenském, Německém a Rakouském trhu. A to bez dodatečných navýšení za služby v českém jazyce (mimo překladů smluv ověřených notářem).
Vážení klienti, prohlídka nemovitostí, sdělení polohy a další podrobné informace je možné pouze s podepsanou smlouvou o zastoupení, která je základem pro další akce jako je nákup nemovitosti. Vše je dle Zákona o zprostředkování při koupi nemovitostí. Kupující platí zákonnou provizi za zastoupení ve výši 3 % (+ DPH) z dohodnuté ceny, a to pouze v případě koupě nemovitosti. V případě, že se koupě neuskuteční, smlouva Vás k ničemu nezavazuje, a ruší se. V případě vážného zájmu o nemovitost Vám smlouvu zašleme na požádání.
Odpovíme Vám do 24 hodin.
Nabízíme pouze prověřené reality.
Ručíme za kvalitní servis.
Pomůžeme zajistit ubytování při prohlídkách.