ZADAR, PETRČANE - Penthouse 2. řada k moři! Punta Skala! S4
| č. ev | DN-45734 |
| Typ nabídky | Prodej |
| Kategorie | Byty |
| Okresy | Zadarska |
| Obec, část obce | Zadar - Okolica |
| Cena | 1 115 075 € |
| Plocha celkem | 171 m² |
| Plocha bydlení (bytu) | 171 m² |
| Vzdálenost od moře | 25 m |
| Elektřina | |
| Voda | |
| Odpady | |
| Klimatizace | |
| Topení | ano |
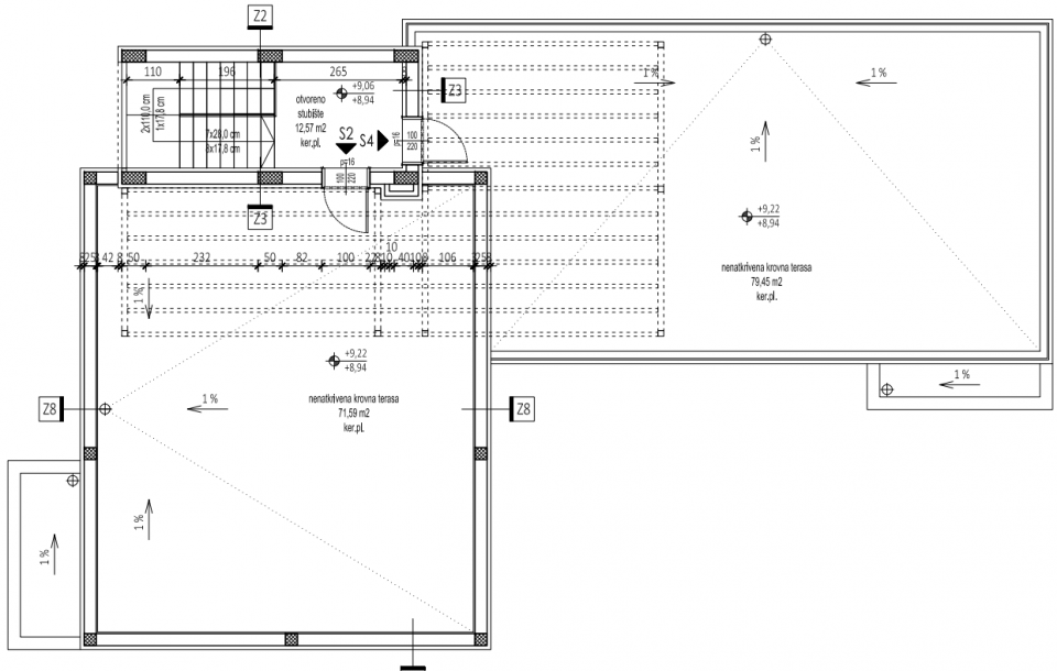
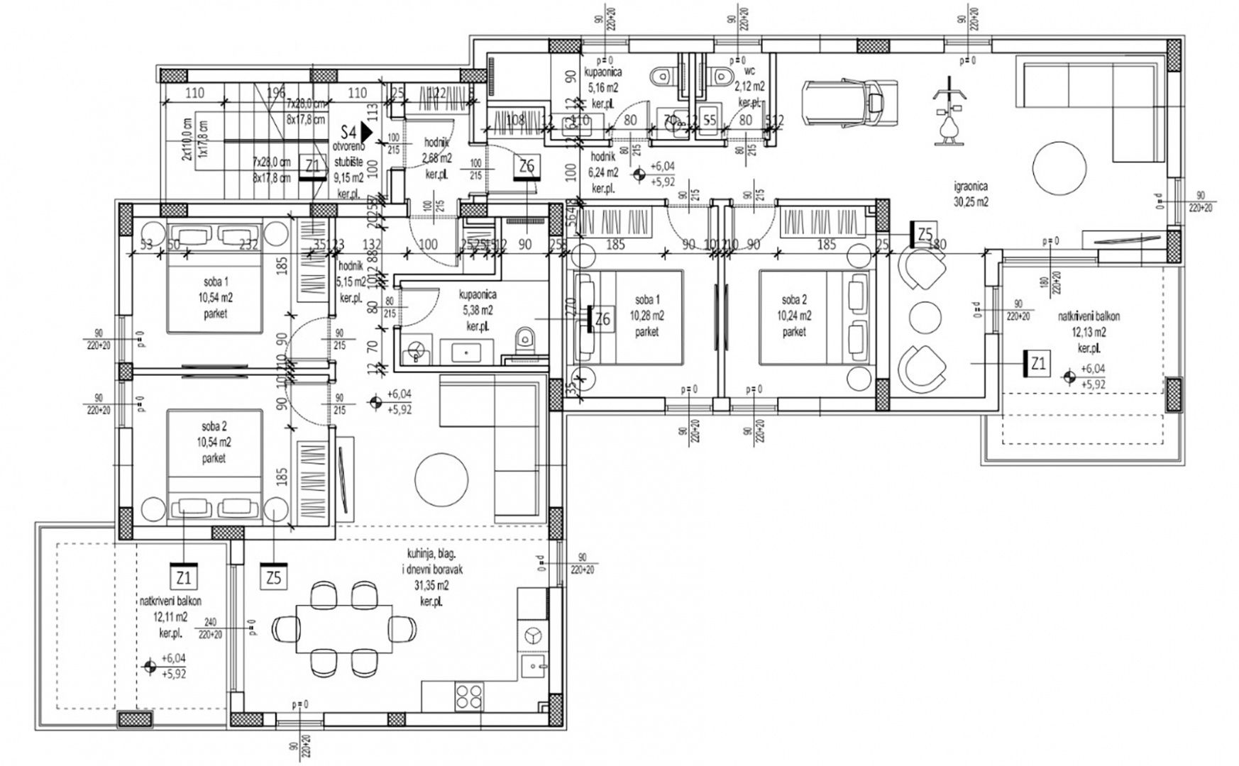
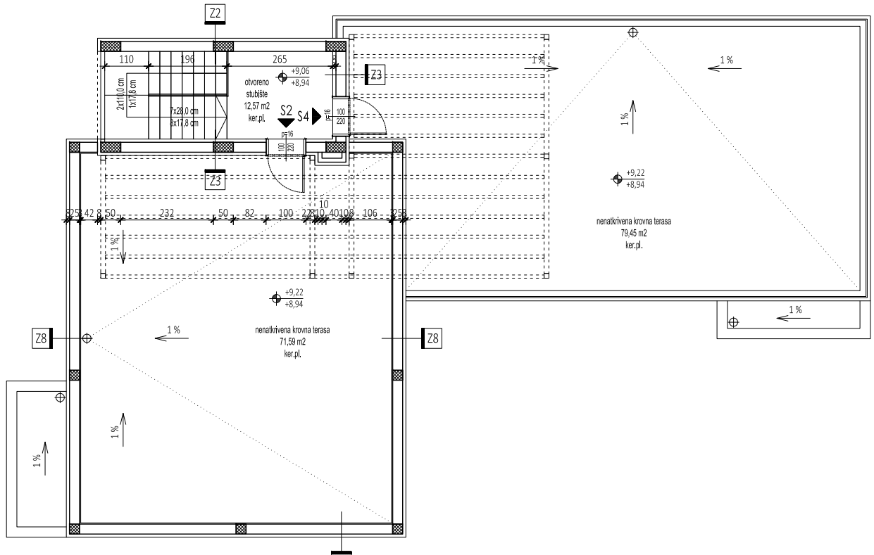
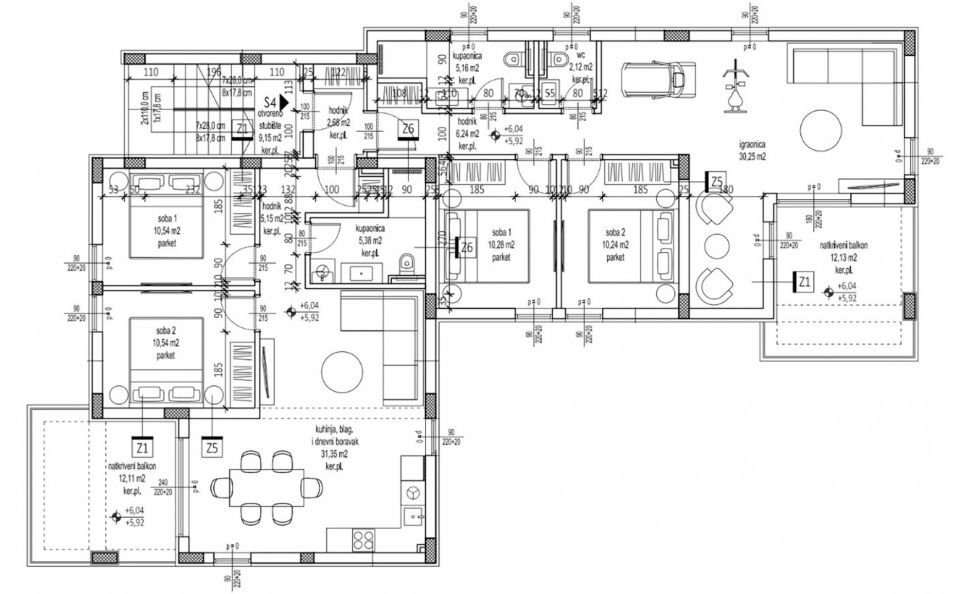
ZADAR, PETRČANE - Penthouse 2. řada u moře! Punta Skala! S4 V exkluzivní, jedinečné lokalitě se nachází mimořádná novostavba ve 2. řadě u moře! K prodeji jsou 4 luxusní apartmány, každý se 2 parkovacími místy, z nichž jedno je kryté. Apartmán S4 se nachází ve 2. patře a skládá se z: kuchyně, jídelna a obývací pokoj | 31,35 m2 herní pokoj (nebo jiný otevřený obytný prostor) | 30,25 m2 ložnice 1 | 10,54 m2 ložnice 2 | 10,54 m2 ložnice 3 | 10,28 m2 ložnice 4 | 10,24 m2 koupelna 1 | 5,38 m2 koupelna 2 | 5,16 m2 samostatná toaleta | 2,12 m2 chodba 1 | 6,24 m2 chodba 2 | 2,68 m2 chodba 3 | 5,15 m2 CELKOVÁ velikost bytu 129,93 m2. K nemovitosti náleží následující doplňkové díly a příslušenství: krytý balkon 1 | 12,11 m² krytý balkon 2 | 12,13 m² kryté parkovací místo | 13,75 m² nekryté parkovací místo | 13,75 m² střešní terasa | 79,45 m² Celková plocha penthousu S4 s doplňkovými díly a příslušenstvím je 261,12 m² a celková užitná plocha je 171,55 m². Tento exkluzivní penthouse se rozkládá na celém druhém patře budovy a nabízí maximální pohodlí a prostornost. Díky atraktivní lokalitě je ideální pro rodinný život nebo investici do luxusní nemovitosti. Byt se skládá ze čtyř prostorných ložnic, dvou elegantních koupelen a dvou obývacích pokojů s otevřeným prostorem propojených s kuchyní a jídelnou, což poskytuje dokonalou rovnováhu mezi soukromím a společným prostorem. Vizualizace zobrazuje 2 křídla, jedno navržené jako rodičovské křídlo a druhé jako dětské křídlo. Jeden pokoj v rodičovském křídle lze zařídit jako domácí kancelář. Během výstavby budovy je možné prostor rozdělit na dva samostatné byty. Všechny byty budou mít parketové podlahy a prvotřídní keramiku. Cena zahrnuje prvotřídní italskou kuchyň a také vestavěnou koupelnu. Možnost zakoupení další střešní terasy s výhledem na moře o rozloze 71,59 m². Dokončení výstavby je plánováno na konec roku 2026. S více než 152 slunečnými dny v roce je Petrčane jedním z nejslunnějších míst v zadarském regionu. Během léta se tato malebná vesnice mění v živé turistické centrum, které láká návštěvníky z celého světa. Pobřeží dlouhé více než 5 kilometrů je plné udržovaných pláží – oblázkových, písčitých a dlážděných – obklopených voňavými borovicovými lesy, které poskytují přirozený stín. Nejznámější pláže jsou Punta Radman, Žal, Punta Skala a Pinija, každá s vlastním kouzlem a vybavením pro rodiny s dětmi, sportovce a milovníky klidu. V Punta Radman a Punta Skala se nacházejí dva hotelové komplexy s širokou nabídkou ubytování, wellness a sportovních zařízení, které se vyznačují vysokou úrovní služeb a atraktivní polohou u moře.
U všech našich nabídek jsou ceny nemovitostí identické jako při koupi přímo u agentury/developera v Chorvatsku, a to díky tomu, že jsme oficiální zastoupení těchto kanceláří na Českém, Slovenském, Německém a Rakouském trhu. A to bez dodatečných navýšení za služby v českém jazyce (mimo překladů smluv ověřených notářem).
Vážení klienti, prohlídka nemovitostí, sdělení polohy a další podrobné informace je možné pouze s podepsanou smlouvou o zastoupení, která je základem pro další akce jako je nákup nemovitosti. Vše je dle Zákona o zprostředkování při koupi nemovitostí. Kupující platí zákonnou provizi za zastoupení ve výši 3 % (+ DPH) z dohodnuté ceny, a to pouze v případě koupě nemovitosti. V případě, že se koupě neuskuteční, smlouva Vás k ničemu nezavazuje, a ruší se. V případě vážného zájmu o nemovitost Vám smlouvu zašleme na požádání.
Odpovíme Vám do 24 hodin.
Nabízíme pouze prověřené reality.
Ručíme za kvalitní servis.
Pomůžeme zajistit ubytování při prohlídkách.