ZADAR, NOVI BOKANJAC - Byt ve dvou podlažích! 152m² - Zahrada a garáž!
| č. ev | DN-35835 |
| Typ nabídky | Prodej |
| Kategorie | Byty |
| Okresy | Zadarska |
| Obec, část obce | Zadar |
| Cena | 370 000 € |
| Plocha celkem | 152 m² |
| Plocha bydlení (bytu) | 152 m² |
| Vzdálenost od moře | 2 000 m |
| Elektřina | |
| Voda | |
| Odpady | |
| Klimatizace | |
| Topení | ano |
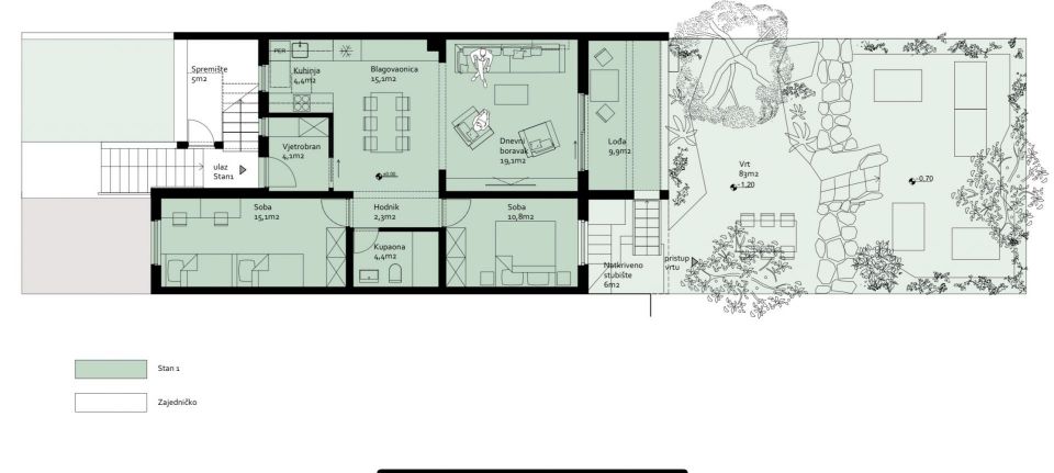
ZADAR, NOVI BOKANJAC - Byt ve dvou podlažích! - Zahrada a garáž! Prostorný dvoupokojový dvoupodlažní byt se zahradou a garáží je na prodej v lokalitě - Novi Bokanjac, Zadar V klidné části města Novi Bokanjac, v nově zrekonstruovaném řadovém domě, se nachází komfortní dvoupokojový byt o celkové ploše 152 m² včetně garáže, venkovního parkovacího stání a vlastní zahrady. Byt je dvoupodlažní a poskytuje dokonalé spojení moderního bydlení a praktičnosti. V prvním patře, který se nachází v prvním patře, se nachází prostorný dvoupokojový byt, který zahrnuje vstupní prostor, chodbu, dvě ložnice, koupelnu a prostorný obývací pokoj spojený s jídelnou a kuchyní. Z obývacího pokoje a lodžie, která je orientována na jih, je vstup na soukromou zahradu 90 m². Druhé patro, které se nachází částečně v přízemí a částečně v suterénu, se skládá z garáže, chodby, dvou pokojů, toalety a zastřešené terasy/lodžie. Tato část prostoru je ideální pro využití jako letní kuchyně, další byt nebo i obchodní prostory. Byt i celý dům prošel v roce 2024 kompletní rekonstrukcí za použití kvalitních materiálů a vybavení. Dům má novou fasádu, střechu a upravené garáže. Byt je vybaven vchodovými dveřmi odolnými proti vloupání a požáru, venkovními truhlářskými výrobky z PVC, kvalitními parketami a kvalitní keramikou. Nemovitost je napojena na městský vodovod a kanalizaci a má všechny potřebné přípojky. Garáž má venkovní parkovací stání a orientace bytu je na jih. Byt se nachází v klidné a atraktivní lokalitě, v blízkosti všech potřebných zařízení, jako jsou obchody, školy a veřejná doprava, a přitom je to jen pár minut jízdy od centra Zadaru a pláží. Tato nemovitost je ideální pro rodiny, které hledají funkční a prostorné bydlení, ale také pro ty, kteří chtějí prostor přizpůsobit potřebám svého podnikání.
U všech našich nabídek jsou ceny nemovitostí identické jako při koupi přímo u agentury/developera v Chorvatsku, a to díky tomu, že jsme oficiální zastoupení těchto kanceláří na Českém, Slovenském, Německém a Rakouském trhu. A to bez dodatečných navýšení za služby v českém jazyce (mimo překladů smluv ověřených notářem).
Vážení klienti, prohlídka nemovitostí, sdělení polohy a další podrobné informace je možné pouze s podepsanou smlouvou o zastoupení, která je základem pro další akce jako je nákup nemovitosti. Vše je dle Zákona o zprostředkování při koupi nemovitostí. Kupující platí zákonnou provizi za zastoupení ve výši 3 % (+ DPH) z dohodnuté ceny, a to pouze v případě koupě nemovitosti. V případě, že se koupě neuskuteční, smlouva Vás k ničemu nezavazuje, a ruší se. V případě vážného zájmu o nemovitost Vám smlouvu zašleme na požádání.
Odpovíme Vám do 24 hodin.
Nabízíme pouze prověřené reality.
Ručíme za kvalitní servis.
Pomůžeme zajistit ubytování při prohlídkách.