ZADAR, NIN - Pozemek 1. řada k moři s projektovou dokumentací
| č. ev | DN-18539 |
| Typ nabídky | Prodej |
| Kategorie | Stavební pozemky |
| Okresy | Zadarska |
| Obec, část obce | Nin |
| Plocha celkem | 1 003 m² |
| Vzdálenost od moře | 10 m |
| Elektřina | |
| Voda | |
| Odpady | |
| Klimatizace | |
| Topení | ano |
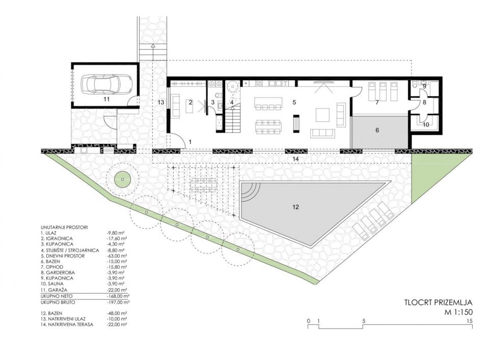
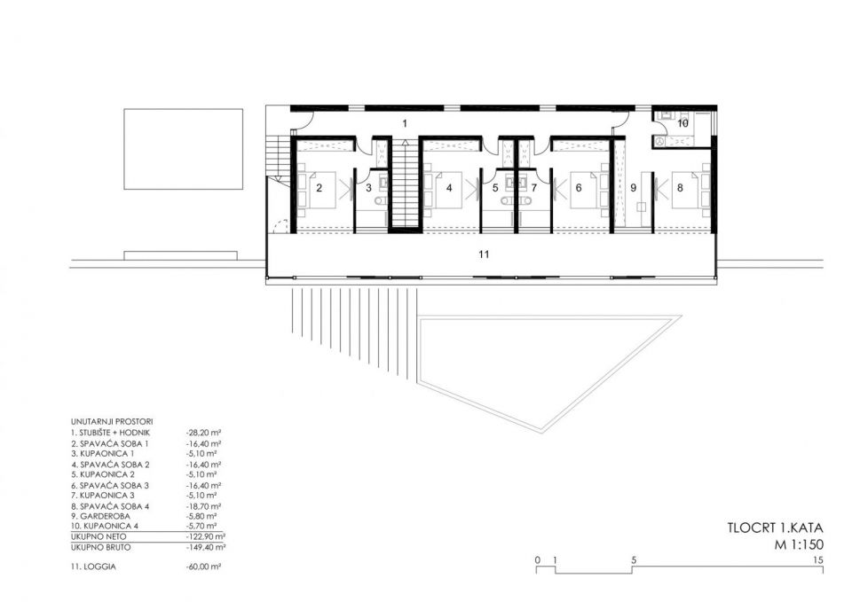
ZADAR, NIN - Pozemek 1. řada k moři s projektovou dokumentací Prodej stavebního pozemku v mimořádně atraktivní lokalitě Ninu, 1. řada k moři. Pozemek o celkové výměře 1003 m2 má šířku 23 m a délku 43 m. Dle projektu bude na pozemku postavena luxusní vila s bazénem, která se bude skládat z přízemí a horní patro. V přízemí o celkové ploše 168 m2 se nachází obývací pokoj, kuchyň a jídelna, koupelna, šatna, herna, sauna a garáž. V patře jsou čtyři ložnice s připojenými koupelnami a lodžiemi. Součástí objektu bude vnitřní i venkovní vyhřívaný bazén, podlahové vytápění a klimatizace ve všech místnostech. Pozemek se nachází v chráněné zóně, kde je povolena výstavba pouze rodinných domů, a je posledním pozemkem v zóně výstavby. Byla podána žádost o stavební povolení. Pozemek je od moře vzdálen 10 m. Historické město Nin je mimořádně oblíbenou turistickou destinací vzhledem ke krásným plážím v této oblasti a blízkosti městského centra Zadaru, které je vzdálené pouhých 15 km. V Ninu je také nejdelší písečná pláž v Chorvatsku s názvem Kraljičina plaža. V Ninské laguně je také lokalita s léčivým bahnem Peloid, jehož blahodárné vlastnosti byly známy již v římských dobách.
U všech našich nabídek jsou ceny nemovitostí identické jako při koupi přímo u agentury/developera v Chorvatsku, a to díky tomu, že jsme oficiální zastoupení těchto kanceláří na Českém, Slovenském, Německém a Rakouském trhu. A to bez dodatečných navýšení za služby v českém jazyce (mimo překladů smluv ověřených notářem).
Vážení klienti, prohlídka nemovitostí, sdělení polohy a další podrobné informace je možné pouze s podepsanou smlouvou o zastoupení, která je základem pro další akce jako je nákup nemovitosti. Vše je dle Zákona o zprostředkování při koupi nemovitostí. Kupující platí zákonnou provizi za zastoupení ve výši 3 % (+ DPH) z dohodnuté ceny, a to pouze v případě koupě nemovitosti. V případě, že se koupě neuskuteční, smlouva Vás k ničemu nezavazuje, a ruší se. V případě vážného zájmu o nemovitost Vám smlouvu zašleme na požádání.
Odpovíme Vám do 24 hodin.
Nabízíme pouze prověřené reality.
Ručíme za kvalitní servis.
Pomůžeme zajistit ubytování při prohlídkách.