ŠIBENIK, VODICE – Luxusní mezonetový apartmán se zahradou, 200 m od pláže
| č. ev | DN-43088 |
| Typ nabídky | Prodej |
| Kategorie | Byty |
| Okresy | Šibensko-kninska |
| Obec, část obce | Vodice |
| Cena | 448 800 € |
| Plocha celkem | 136 m² |
| Plocha bydlení (bytu) | 136 m² |
| Zastavěná plocha a nádvoří (dvůr) | 115 m² |
| Celková zastavěná plocha | 115 m² |
| Vzdálenost od moře | 200 m |
| Elektřina | |
| Voda | |
| Klimatizace | |
| Energetická náročnost | A - mimořádně úsporná |
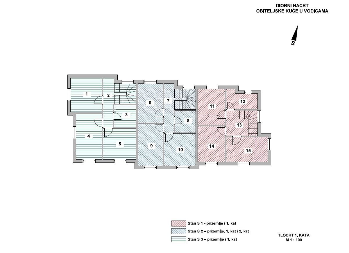
ŠIBENIK, VODICE – Luxusní mezonetový apartmán se zahradou, 200 m od pláže představuje moderní mezonetový apartmán S3, který se nachází v atraktivní lokalitě ve Vodicích, pouhých 200 metrů od moře a udržovaných pláží – nebo jen čtyři minuty chůze. Tato výjimečná nemovitost nabízí perfektní rovnováhu mezi luxusem, komfortem a funkčností, ideální pro rodinný život nebo jako investice pro turistické účely. Apartmán se rozkládá na dvou podlažích – přízemí a první patro, s celkovou čistou užitnou plochou 136,48 m², zatímco celková plocha s přilehlým vybavením je 270,34 m². V přízemí se nachází kuchyň s otevřeným konceptem, jídelna a obývací pokoj s přístupem na prostornou terasu, koupelna a vnitřní schodiště vedoucí do prvního patra. K apartmánu náleží také zahrada o rozloze 35,37 m² a zahrada o rozloze 115 m², ideální pro relaxaci a trávení času venku. V prvním patře se nacházejí tři prostorné ložnice a koupelna, které zajišťují dokonalé soukromí a pohodlí pro každého člena rodiny. Půdorys: Přízemí: Schodiště: 9,08 m² Koupelna: 5,75 m² Obývací pokoj, jídelna a kuchyň: 27,51 m² Krytá terasa: 12,33 m² Nekrytá terasa: 42,88 m² Zahrada: 35,37 m² Celková plocha zahrady: 115 m² 1. patro: Ložnice 1: 13,30 m² Ložnice 2: 14,79 m² Ložnice 3: 12,07 m² Chodba se schodištěm: 11,75 m² Koupelna: 5,88 m² K bytu náleží dvě parkovací místa a nabízí špičkové technické i estetické stavební standardy. Vybavení a vlastnosti: Vzdálenost od moře a pláže: 200 m / 4 minuty chůze Podlahové vytápění ve všech místnostech Klimatizace v každé místnosti PVC okna s trojsklem a elektrickými roletami Kvalitní tepelná izolace fasády (10 cm) Vysoce kvalitní materiály a povrchová úprava Sanitární zařízení a keramika od renomovaných výrobců Renomovaný a osvědčený dodavatel Tato moderní novostavba ve Vodicích představuje ideální příležitost pro každého, kdo hledá luxusní a funkční bydlení u moře a zároveň bezpečnou investici do kvalitní nemovitosti na pobřeží Jaderského moře. Pro veškeré potřebné informace a prohlídku této atraktivní nemovitosti nás prosím kontaktujte. Vodice jsou jedním z nejžádanějších míst k životu a dovolené na Šibenické riviéře - známé svými dlouhými promenádami u moře, udržovanými plážemi a bohatou turistickou nabídkou. Národní parky Krka a Kornati se nacházejí v blízkosti, zatímco letiště ve Splitu a Zadaru jsou vzdálena 50, respektive 85 kilometrů.
U všech našich nabídek jsou ceny nemovitostí identické jako při koupi přímo u agentury/developera v Chorvatsku, a to díky tomu, že jsme oficiální zastoupení těchto kanceláří na Českém, Slovenském, Německém a Rakouském trhu. A to bez dodatečných navýšení za služby v českém jazyce (mimo překladů smluv ověřených notářem).
Vážení klienti, prohlídka nemovitostí, sdělení polohy a další podrobné informace je možné pouze s podepsanou smlouvou o zastoupení, která je základem pro další akce jako je nákup nemovitosti. Vše je dle Zákona o zprostředkování při koupi nemovitostí. Kupující platí zákonnou provizi za zastoupení ve výši 3 % (+ DPH) z dohodnuté ceny, a to pouze v případě koupě nemovitosti. V případě, že se koupě neuskuteční, smlouva Vás k ničemu nezavazuje, a ruší se. V případě vážného zájmu o nemovitost Vám smlouvu zašleme na požádání.
Odpovíme Vám do 24 hodin.
Nabízíme pouze prověřené reality.
Ručíme za kvalitní servis.
Pomůžeme zajistit ubytování při prohlídkách.