ŠIBENIK, VODICE – Luxusní apartmán blízko pláže s výhledem na moře
| č. ev | DN-44443 |
| Typ nabídky | Prodej |
| Kategorie | Byty |
| Okresy | Šibensko-kninska |
| Obec, část obce | Vodice |
| Cena | 360 000 € |
| Plocha celkem | 89 m² |
| Plocha bydlení (bytu) | 89 m² |
| Vzdálenost od moře | 250 m |
| Elektřina | |
| Voda | |
| Odpady | |
| Klimatizace | |
| Energetická náročnost | A - mimořádně úsporná |
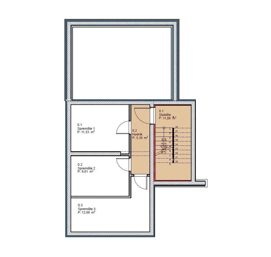
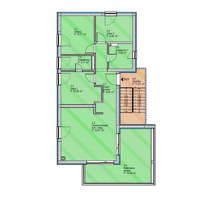
ŠIBENIK, VODICE – Luxusní apartmán v blízkosti pláže s výhledem na moře DUX zprostředkovává prodej luxusního apartmánu v novostavbě ve 2. patře malého bytového domu s celkem třemi apartmány. Mikrolokace nemovitosti se vyznačuje klidným prostředím a blízkostí pláží a promenád. Vzdálenost k první pláži je pouhých 250 metrů, zatímco centrum města je vzdálené 1000 m. Budova se nachází přímo nad promenádou spojující Tribunj a Vodice a nachází se v části Vodice, která nebyla přestavěna a kde si stále můžete vychutnat autentickou středomořskou krajinu polí, krasu, olivovníků a borovic, což činí tuto lokalitu mimořádně atraktivní a autentickou. Obytná plocha apartmánu je 69,92 m2, zatímco celková užitná plocha apartmánu je 89,42 m2. Apartmán se skládá z kuchyně, jídelny a obývacího pokoje, ze kterého je vstup na krásnou krytou terasu o rozloze 19,50 m2, která nabízí krásný výhled na moře a krajinu. Chodba s výklenkem pro vestavěnou skříň vede do tří prostorných ložnic, z nichž hlavní ložnice má vlastní koupelnu a další koupelny. Orientace bytu na jih zajišťuje dostatek přirozeného světla a byt je prosvětlený po celou denní dobu. K bytu patří také velká skladovací místnost v suterénu budovy o rozloze 12,66 m2 a dvě parkovací místa ve dvoře budovy s přípravou pro nabíječky elektromobilů. Vybavení tohoto bytu zahrnuje: klimatizaci ve všech místnostech, podlahové vytápění v koupelnách, chodbách a obývacím prostoru, vysoce kvalitní venkovní tesařské práce Gealan s moskytiérami a elektrickými roletami, bezpečnostní vstupní dveře s kódovým ovládáním, špičkovou italskou keramiku Marazzi, baterie a sprchy Hansgrohe, sprchové vaničky a kabiny renomované značky Nord, přípravu pro nabíječku elektromobilů s parkovacím místem ve dvoře budovy. Budova je kompletně dokončena a má kolaudační povolení, takže je možné i financování prostřednictvím úvěru! VODICE – Okouzlující město nočního života a pláží Vodice je turistická destinace ležící 10 kilometrů severně od Šibeniku. Je oblíbená u mladých návštěvníků, kteří hledají živé místo. Vodice se pyšní skvělými hotely, plážemi a bohatým nočním životem. Název „Vodice“ se poprvé zmiňuje v písemných pracích v roce 1402, ačkoli je známo, že zde lidé žili již v římských dobách. Místo bylo pojmenováno „Vodice“ kvůli hojnosti vody a studní. Nedaleko se nachází malý ostrov Prvić, město Split je vzdálené 69 km, Zadar 59 km a nejbližší letiště 49 km. Pro další informace nebo pro domluvení prohlídky nás neváhejte kontaktovat.
U všech našich nabídek jsou ceny nemovitostí identické jako při koupi přímo u agentury/developera v Chorvatsku, a to díky tomu, že jsme oficiální zastoupení těchto kanceláří na Českém, Slovenském, Německém a Rakouském trhu. A to bez dodatečných navýšení za služby v českém jazyce (mimo překladů smluv ověřených notářem).
Vážení klienti, prohlídka nemovitostí, sdělení polohy a další podrobné informace je možné pouze s podepsanou smlouvou o zastoupení, která je základem pro další akce jako je nákup nemovitosti. Vše je dle Zákona o zprostředkování při koupi nemovitostí. Kupující platí zákonnou provizi za zastoupení ve výši 3 % (+ DPH) z dohodnuté ceny, a to pouze v případě koupě nemovitosti. V případě, že se koupě neuskuteční, smlouva Vás k ničemu nezavazuje, a ruší se. V případě vážného zájmu o nemovitost Vám smlouvu zašleme na požádání.
Odpovíme Vám do 24 hodin.
Nabízíme pouze prověřené reality.
Ručíme za kvalitní servis.
Pomůžeme zajistit ubytování při prohlídkách.