RIJEKA, PEĆINE - pozemek 2. řada k moři 3072 m2 pro sportovní centrum s garáží / hotel k pronájmu
| č. ev | DN-38273 |
| Typ nabídky | Prodej |
| Kategorie | Stavební pozemky |
| Okresy | Primorsko-goranska |
| Obec, část obce | Rijeka |
| Cena | 3 500 € |
| Cena za m2 | 1 €/m² |
| Plocha celkem | 3 072 m² |
| Elektřina | |
| Voda | |
| Odpady |
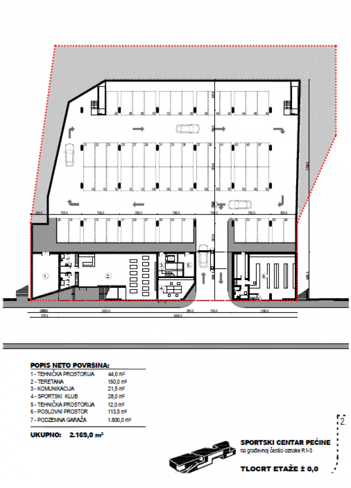
RIJEKA, PEĆINE - pozemek 2. řada k moři 3072 m2 pro sportovní centrum s garážemi / hotel k pronájmu Pro lokalitu byl vytvořen koncepční návrh, který navrhuje výstavbu SPORTOVNÍHO CENTRA PEĆINE s podzemní garáží, hlavní budovou a sportovním hřištěm v Rijece, osada Pećine. Předmětná oblast se nachází v působnosti ÚPÚ městské oblasti Pećine a má územní označení R1-3. Dle DPÚ zóna zahrnuje plánovaný účel R1 - Sportovně rekreační účel - SPORT. Stavební pozemek s územním určením má podle ÚPÚ celkovou výměru 3 072,0 m², přičemž největší povolená zastavěná plocha pozemku je 2 445,0 m². Maximální povolený počet podlaží je P+1 s maximálním limitem výšky budovy celkem 8,0 m. SOUČASNÝ STAV: Předmětná zóna v podstatě zahrnuje rovinatou plošinu cca 1,5 m nad ulicí, na které je upraveno sportovní hřiště, konkrétně dva tenisové kurty. Součástí areálu je kromě udržovaného sportoviště také sportovní a stravovací zařízení. Na jihozápadní straně je pozemek vymezen ulicí, která je cca 1,5 m pod úrovní plošiny sportoviště. Severozápadní a část jihovýchodní strany je vymezena veřejnou pěší zónou - veřejnými schodišti. Na severovýchodní straně a částečně na jihovýchodní straně je ohraničeno útesem. PLÁNOVANÝ STAV: Tento koncepční návrh navrhuje výstavbu sportovního centra Pećine a podzemní garáže pro celkem 59 parkovacích míst. Na střeše garáže je plánováno uspořádání sportovní plochy a části tribun. Dle kartografického znázornění 4.STAVEBNÍ PODMÍNKY je plánována výstavba stavebního pozemku s územním označením R1-3, přízemí + 1 budova na regulační čáře o celkové podlahové ploše 490,0 m² a celkové hrubé ploše 780,0 m². Plánovaná část objektu je plánována pro umístění sportovních a rekreačních zařízení, jako je klubový areál, šatny, tělocvična, stravovací a obchodní prostory. Pro rozšíření stavebního pozemku s vjezdem z ulice Šetalište, divize XIII. je plánována podzemní garáž. Na střeše garáže se buduje sportovní hřiště s upravenými tribunami. Seznam čistých oblastí: 1 - Technická místnost 44,0 m² 2 - Polomek tělocvičny 1 150,0 m² 3 - Komunikace 21,5 m² 4 - Sports Club 28,0 m² 5 - Technická místnost 12,0 m² 6 - Kancelář 113,5 m² 7 - podzemní garáže 1 800,0 m² - Pasáž a 67,5 můstku Pokoje 19,0 m² 13- Atrium 113,5 m²x0,5 14- Cateringová oblast 170,0 m² 15- Terasa 26,0 m²0,5 16- Sportovní pole 17- celkem 2 608,5 m2- stavební půda pro seriózní investory- v rámci docházky- v rámci docházky) a v rámci přízvuk) a je v rámci přízvuk) a je v rámci přízvuk) a je v přímém přístupu) každodenní život. Nemovitost, ze které dojdete k moři a na pláž za pouhou minutu! PEĆINE: Četné vily se zelenými nádvořími, krásně upravené parky, řada pláží a koupališť a zajímavá historie jsou rysy, které zdobí tuto čtvrť Rijeky nacházející se v daleké jihovýchodní části města. Bývalé místo pro život bohatých zdobí letní domy podél pobřeží obklopené svěžími květinovými zahradami, zatímco v pozdějším období byly postaveny bytové domy. První velké nákupní centrum v Rijece, zábavní park pro děti, házenkářský a tenisový klub, sportovní kluby, poloha, blízkost centra města, hotel a tři ubytovny jsou jen některé z rysů této čtvrti, která nabízí život s relaxací a rekreací.
U všech našich nabídek jsou ceny nemovitostí identické jako při koupi přímo u agentury/developera v Chorvatsku, a to díky tomu, že jsme oficiální zastoupení těchto kanceláří na Českém, Slovenském, Německém a Rakouském trhu. A to bez dodatečných navýšení za služby v českém jazyce (mimo překladů smluv ověřených notářem).
Vážení klienti, prohlídka nemovitostí, sdělení polohy a další podrobné informace je možné pouze s podepsanou smlouvou o zastoupení, která je základem pro další akce jako je nákup nemovitosti. Vše je dle Zákona o zprostředkování při koupi nemovitostí. Kupující platí zákonnou provizi za zastoupení ve výši 3 % (+ DPH) z dohodnuté ceny, a to pouze v případě koupě nemovitosti. V případě, že se koupě neuskuteční, smlouva Vás k ničemu nezavazuje, a ruší se. V případě vážného zájmu o nemovitost Vám smlouvu zašleme na požádání.
Odpovíme Vám do 24 hodin.
Nabízíme pouze prověřené reality.
Ručíme za kvalitní servis.
Pomůžeme zajistit ubytování při prohlídkách.