RIJEKA, KOSTRÉNA - exkluzivní mezonetový byt 147m2 novostavba s krásným výhledem na moře a bazénem + zahrada 151,75m2 - S1-C
| č. ev | DN-44549 |
| Typ nabídky | Prodej |
| Kategorie | Byty |
| Okresy | Primorsko-goranska |
| Obec, část obce | Kostrena |
| Cena | 617 400 € |
| Plocha celkem | 147 m² |
| Plocha bydlení (bytu) | 147 m² |
| Zastavěná plocha a nádvoří (dvůr) | 151 m² |
| Celková zastavěná plocha | 151 m² |
| Elektřina | |
| Voda | |
| Odpady | |
| Klimatizace | |
| Energetická náročnost | A - mimořádně úsporná |
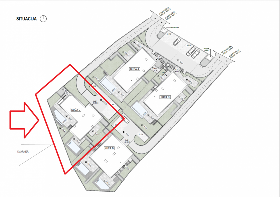
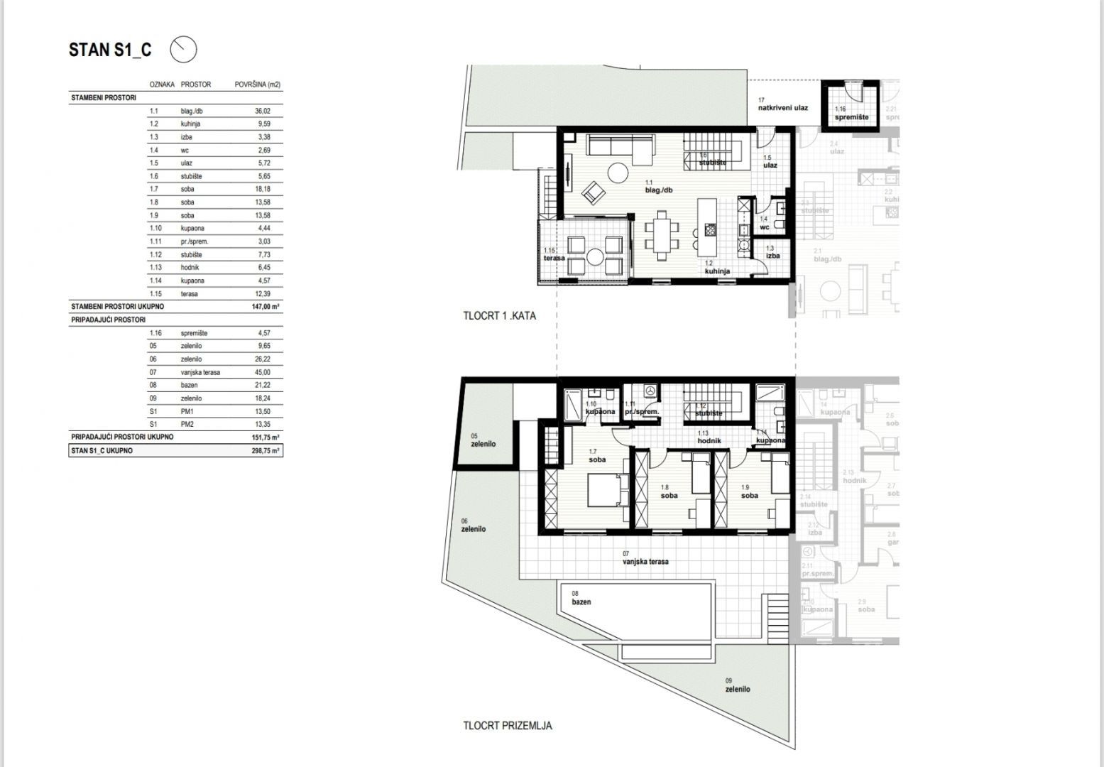
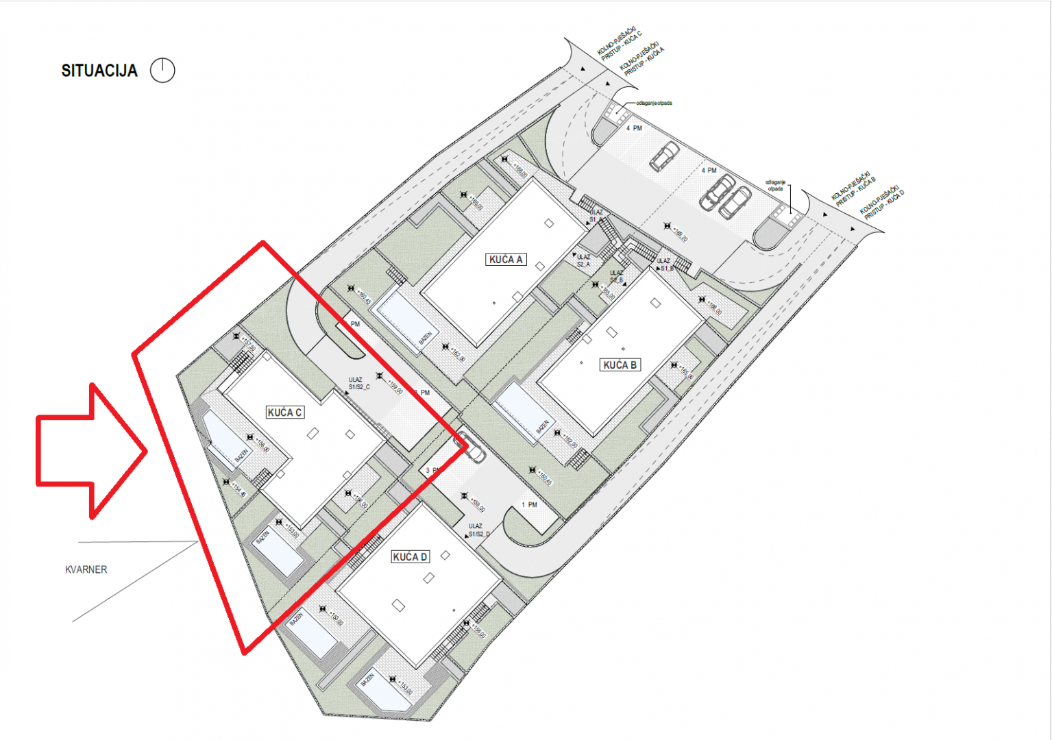
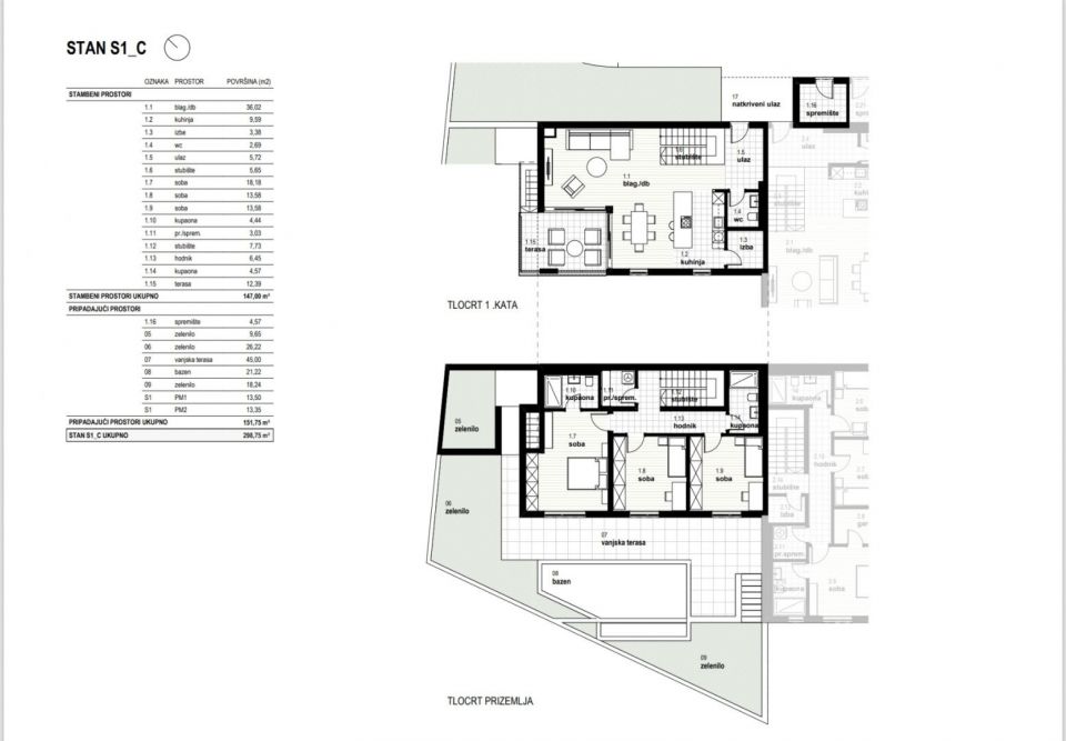
RIJEKA, KOSTRENA - exkluzivní mezonetový byt 147m2 novostavba s krásným výhledem na moře a bazén + zahrada 151,75m2 - S1-C Nabízíme nemovitost, která vám nabízí moderní design a eleganci, komfort a špičkové vybavení a nachází se v krásné klidné lokalitě v blízkosti MHD, škol, školek, nákupních center a deset minut jízdy od Rijeky. Komplex 4 bytových domů s celkem 8 byty se nachází severně od Jaderské magistrály v oblasti "Zelená Kostrena", odkud je krásný výhled na celý Kvarner. V bezprostřední blízkosti se nachází 10 kilometrů udržovaných turistických, cyklistických a fitness stezek, které procházejí nejvyššími částmi Kostreny od vrcholu Solin po vrchol Sopalj. Přístup k domům je zajištěn z horní silnice, kde je plánováno uspořádání a rozšíření stávající silnice. K každému domu patří čtyři venkovní parkovací místa, respektive dvě parkovací místa na bytovou jednotku. Každý dům se skládá ze dvou bytů. Byty na horních dvou pozemcích se nacházejí nad sebou, zatímco byty na spodních dvou pozemcích se nacházejí vedle sebe. Každý byt má část zahrady. DŮM C byt S1 - C: BYDLENÍ: - obývací pokoj / jídelna 36,02 - kuchyň 9,59 - ložnice 3,38 - toaleta 2,69 - vstup 5,72 - schodiště 5,65 - pokoj 18,18 - pokoj 13,58 - pokoj 13,58 - koupelna 4,44 - prádelna / úložná místnost 3,03 - schodiště 7,73 - chodba 6,45 - koupelna 4,57 - terasa 12,39 CELKEM BYDLENÍ: 147,00 m² PŘIDRUŽENÉ PROSTORY - úložná místnost 4,57 - zelená plocha 9,65 - zelená plocha 26,22 - venkovní terasa 45,00 - bazén 21,22 - zeleň 18,24 - parkovací místo 1 13,50 - parkovací místo 2 13,35 PŘIDRUŽENÉ PROSTORY CELKEM: 151,75 m² BYT S1-C CELKEM: 298,75 m² Tento luxusní byt je navržen pro maximální pohodlí. VYBAVENÍ: Dům, ve kterém se byt nachází, je kvalitně postavený a luxusně vybavený, veškeré instalované materiály, podlahové a stěnové krytiny jsou nejvyšších standardů. - 10cm silná fasádní izolace - podlahové vytápění - tepelná čerpadla - vysoce kvalitní hliníkové truhlářské práce. Byt má vlastní zahradu a 2 parkovací místa. CENA: Uvedená cena se vztahuje na kompletně dokončený objekt na klíč, bez nábytku. Cena zahrnuje DPH, kupující je osvobozen od placení daně z nemovitosti. V případě koupě na společnost registrovanou v Chorvatsku je po prodeji možné plné vrácení DPH. Čistá a uklizená nemovitost. Jistě krásná nemovitost pro luxusní rodinný život, ale vhodná i jako investice v podobě elitní turistiky. JEDINEČNÁ NEMOVITOST, KTERÁ URČITĚ STOJÍ ZA VAŠI POZORNOST NA SKVĚLÉM MÍSTĚ!!! KOSTRENA Kostrena je staré oblíbené přímořské město, poprvé zmíněné na počátku 15. století. Svou první obecní nezávislost získala v roce 1874, ale udržela si ji velmi krátce, pouze dva roky. Je rozdělena na dvě části, sv. Lucie a sv. Barbory, podle názvů dvou kostelů, které se v její oblasti nacházejí. Kostrena se nachází v bezprostřední blízkosti města Rijeka, ohraničená zálivy Martinšćica a Bakar. Poloostrov Kostrena je dlouhý asi 10 kilometrů a mírně se svažuje k moři. Po celé své délce se nacházejí krásné pláže, které v létě navštěvují tisíce plavců. Nejznámější a nejnavštěvovanější jsou ty v zátoce Žurkovo, dále Smokvinovo, Svežanj, Spužvina, Podražica, Nova voda a Perilo. Kostrena se skládá z asi dvaceti osad, z nichž mnohé byly pojmenovány po rodinách, a dnes jsou nejlidnatější Vrh Martinšćice, Glavani, Sv. Lucija, Rožmanići, Doričići a Paveki. Tento region se vyznačuje charakteristickou krasovou oblastí se středomořskou vegetací a slavnou kostrenskou gromačí a mírným podnebím, které občas ustupuje silným poryvům bóry. Vážení potenciální kupující, nájemníci a pronajímatelé, prohlídka nemovitosti, která vás zajímá a o kterou máte zájem, je možná pouze a výhradně s podpisem Smlouvy o realitním zprostředkování, a to z důvodu ochrany vlastníka nemovitosti před návštěvami neregistrovaných osob, a v souladu se zákonem o ochraně osobních údajů a zákonem o realitním zprostředkování. Při prohlídce každé nemovitosti je potenciální kupující/nájemce/nájemce povinen vyplnit a podepsat Smlouvu o realitním zprostředkování, která uvádí následující: - základní informace o potenciálním kupujícím/nájemci/nájemci - základní informace o realitní kanceláři - výše provize realitní kanceláře Provize realitní kanceláře pro kupujícího činí 3 % (+25 % DPH) z celkové sjednané kupní ceny. Provize realitní kanceláře pro nájemce činí jedno měsíční nájemné (+25 % DPH).
U všech našich nabídek jsou ceny nemovitostí identické jako při koupi přímo u agentury/developera v Chorvatsku, a to díky tomu, že jsme oficiální zastoupení těchto kanceláří na Českém, Slovenském, Německém a Rakouském trhu. A to bez dodatečných navýšení za služby v českém jazyce (mimo překladů smluv ověřených notářem).
Vážení klienti, prohlídka nemovitostí, sdělení polohy a další podrobné informace je možné pouze s podepsanou smlouvou o zastoupení, která je základem pro další akce jako je nákup nemovitosti. Vše je dle Zákona o zprostředkování při koupi nemovitostí. Kupující platí zákonnou provizi za zastoupení ve výši 3 % (+ DPH) z dohodnuté ceny, a to pouze v případě koupě nemovitosti. V případě, že se koupě neuskuteční, smlouva Vás k ničemu nezavazuje, a ruší se. V případě vážného zájmu o nemovitost Vám smlouvu zašleme na požádání.
Odpovíme Vám do 24 hodin.
Nabízíme pouze prověřené reality.
Ručíme za kvalitní servis.
Pomůžeme zajistit ubytování při prohlídkách.