RIJEKA, KOSTENA - exkluzivní mezonetový byt 209,14 m2 novostavba s krásným výhledem na moře a bazén + zahrada 356,39 m2 - S2-A
| č. ev | DN-41823 |
| Typ nabídky | Prodej |
| Kategorie | Byty |
| Okresy | Primorsko-goranska |
| Obec, část obce | Kostrena |
| Cena | 878 400 € |
| Plocha celkem | 209 m² |
| Plocha bydlení (bytu) | 209 m² |
| Zastavěná plocha a nádvoří (dvůr) | 356 m² |
| Celková zastavěná plocha | 356 m² |
| Elektřina | |
| Voda | |
| Odpady | |
| Klimatizace | |
| Energetická náročnost | A - mimořádně úsporná |
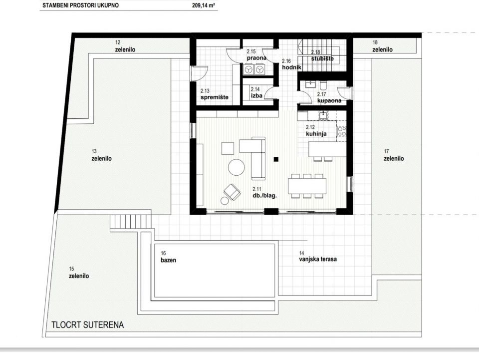
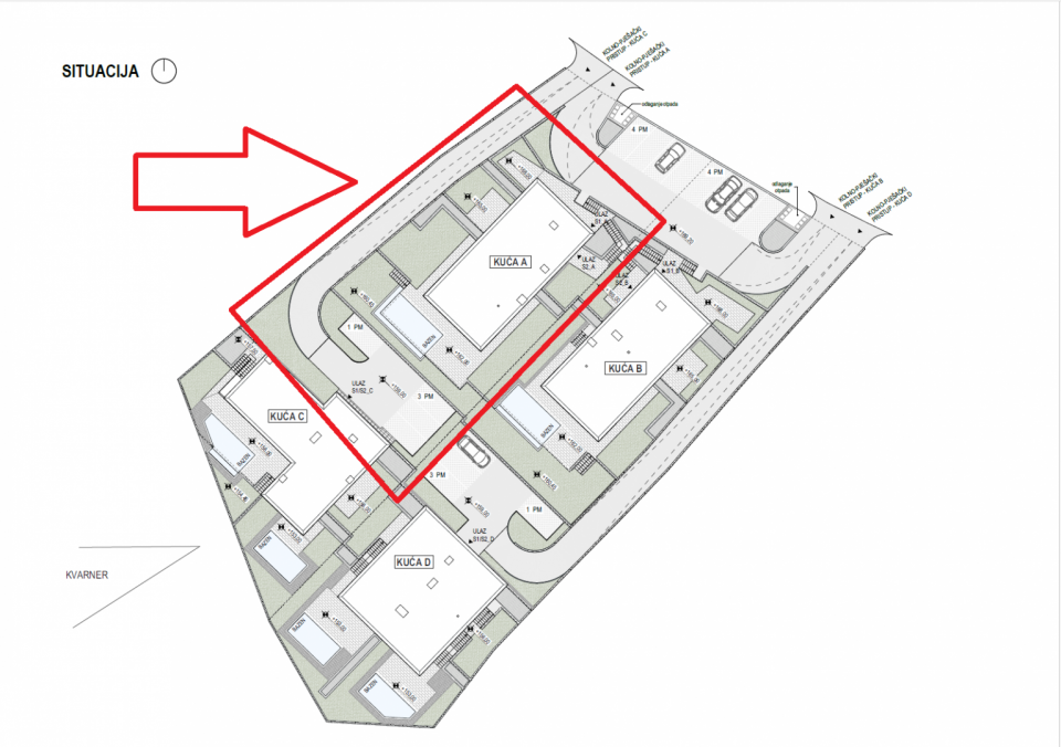
RIJEKA, KOSTRENA - exkluzivní dvoupodlažní byt 209,14 m2, novostavba s krásným výhledem na moře a bazén + zahrada 356,39 m2 - S2-A Nabízíme nemovitost, která Vám nabízí moderní design a eleganci, komfort a špičkové vybavení a nachází se v krásné, klidné lokalitě v blízkosti MHD, škol, školek, nákupních center a deset minut jízdy od Rijeky. Komplex 4 bytových domů s celkem 8 apartmány se nachází severně od Jadranské magistrály v oblasti "Zelena Kostrena" odkud je krásný výhled na celý Kvarnerský záliv. V bezprostřední blízkosti se nachází 10 kilometrů dobře udržovaných turistických, cyklistických a fitness stezek, které procházejí nejvyššími částmi Kostrena od vrcholu Solin až po vrchol Sopalj. Přístup k domům je řešen z horní komunikace, kde je plánována úprava a rozšíření stávající komunikace. Každý dům má čtyři venkovní parkovací stání, nebo dvě parkovací stání na bytovou jednotku. Každý dům se skládá ze dvou apartmánů. Byty na horních dvou pozemcích jsou umístěny nad sebou, byty na spodních dvou pozemcích jsou umístěny vedle sebe. Ke každému bytu náleží část zahrady. DŮM A byt S2 - A: OBYTNÉ PROSTORY: - pokoj 21,91 - pokoj 14,20 - pokoj 14,20 - pokoj 14,20 - chodba 6,16 - šatna 6,17 - koupelna 5,68 - koupelna 4,59 - vchod 12,05 - krytá terasa / jídelna 26,73 - jídelna 26,73 - jídelna šatna 2,89 - prádelna 3,84 - předsíň 4,58 - koupelna 3,93 - schodiště 5,43 - krytý vchod 3,31 BYTOVÉ PROSTORY CELKEM (m2): 209,14 m² DRUHOVÉ PROSTORY: - komora 6,48 - zeleň venkovní 10 - terasa 10 - zeleň - zeleň 49,11 - venkovní terasa 59,12 - zeleň 59,20 - bazén 30,84 - zeleň 36,54 - zeleň 3,33 - zeleň 17,82 - vstupní hala 15,28 - zeleň 7,25 - parkovací stání 3 14,26 - parkovací stání 4ACED6.1 PART MENT S2-A CELKOVÁ PLOCHA: 565,53 m² Tento luxusní apartmán je navržen pro maximální pohodlí. VYBAVENÍ: Dům, ve kterém se byt nachází, je kvalitně postavený a luxusně vybavený, veškeré vestavěné materiály, podlahové a stěnové krytiny jsou na nejvyšší úrovni. - 10cm silná fasádní izolace - podlahové vytápění - tepelná čerpadla - špičkové hliníkové truhlářství. K bytu náleží vlastní zahrada a 2 parkovací stání. CENA: Uvedená cena se vztahuje na kompletně dokončené zařízení na klíč, bez nábytku. Cena je včetně DPH, kupující je osvobozen od placení daně z nemovitých věcí. V případě nákupu od společnosti registrované v Chorvatsku je po prodeji možné vrácení DPH v plné výši. Čistý a uklizený majetek. Určitě krásná nemovitost pro luxusní rodinný život, ale vhodná i jako investice v podobě elitní turistiky. JEDINEČNÁ NEMOVITOST URČITĚ STOJÍ ZA VAŠI POZORNOST VE SKVĚLÉ MÍSTĚ!!! KOSTRÉNA Kostrena je staré oblíbené přímořské město, poprvé zmíněno na začátku 15. století. První obecní samostatnost získala v roce 1874, ale udržela si ji velmi krátce, pouhé dva roky. Dělí se na dvě části, sv. Lucii a sv. Barbory, podle názvů dvou kostelů, které v jeho areálu existují. Kostrena se nachází v bezprostřední blízkosti města Rijeka, obklopeného zálivy Martinšćica a Bakar. Poloostrov Kostrena je asi 10 kilometrů dlouhý a mírně se svažuje k pobřeží. Po celé její délce jsou krásné pláže, které v létě navštěvují tisíce plavců. Nejznámější a nejnavštěvovanější jsou ty v zátoce Žurkovo, dále Smokvinovo, Svežanj, Spužvina, Podražica, Nova voda a Perilo. Kostrena se skládá z asi dvaceti osad, z nichž mnohé byly pojmenovány po rodinách, a dnes jsou nejlidnatější Vrh Martinšćice, Glavani, Sv. Lucija, Rožmanići, Doričići a Paveki. Charakteristickým znakem této oblasti je charakteristická krasová oblast se středomořskými rostlinami a slavnou Kostrena gromača, stejně jako mírné klima, které někdy ustupuje silným poryvům větru bóra.
U všech našich nabídek jsou ceny nemovitostí identické jako při koupi přímo u agentury/developera v Chorvatsku, a to díky tomu, že jsme oficiální zastoupení těchto kanceláří na Českém, Slovenském, Německém a Rakouském trhu. A to bez dodatečných navýšení za služby v českém jazyce (mimo překladů smluv ověřených notářem).
Vážení klienti, prohlídka nemovitostí, sdělení polohy a další podrobné informace je možné pouze s podepsanou smlouvou o zastoupení, která je základem pro další akce jako je nákup nemovitosti. Vše je dle Zákona o zprostředkování při koupi nemovitostí. Kupující platí zákonnou provizi za zastoupení ve výši 3 % (+ DPH) z dohodnuté ceny, a to pouze v případě koupě nemovitosti. V případě, že se koupě neuskuteční, smlouva Vás k ničemu nezavazuje, a ruší se. V případě vážného zájmu o nemovitost Vám smlouvu zašleme na požádání.
Odpovíme Vám do 24 hodin.
Nabízíme pouze prověřené reality.
Ručíme za kvalitní servis.
Pomůžeme zajistit ubytování při prohlídkách.