RIJEKA, DRENOVA - stavební pozemek 1100m2 pro výstavbu bytových domů - byty/rodinné domy
| č. ev | DN-33892 |
| Typ nabídky | Prodej |
| Kategorie | Stavební pozemky |
| Okresy | Primorsko-goranska |
| Obec, část obce | Rijeka |
| Cena | 75 000 € |
| Cena za m2 | 68 €/m² |
| Plocha celkem | 1 100 m² |
| Elektřina | |
| Voda |
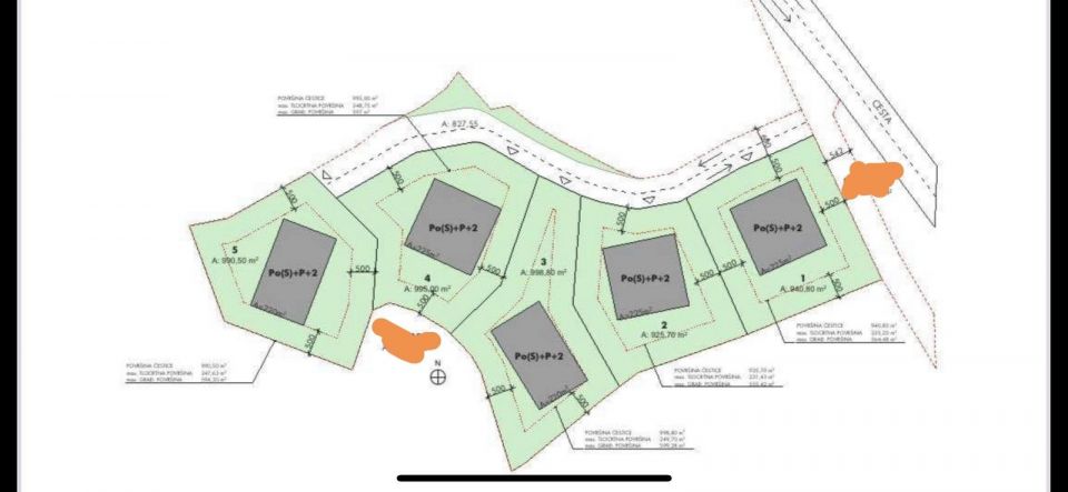
RIJEKA, DRENOVA - stavební pozemek 1100m2 pro výstavbu bytových domů - byty / rodinný dům Stavební pozemek o velikosti 6500 m2 je rozdělen na 5 pozemků, aby si případný mohl aktuálně vybrat pozemek, jaký chce. Na pozemku lze postavit bytový dům nebo rodinný dům. Obytný dům může mít maximálně 8 bytů, P(0) + S +2. Hrubá zastavěná plocha na objekt je cca 600m2. Konfigurace terénu je v úpadku/má několik klesajících kaskád/zcela rovinatá. Pole se nachází v klidné a tiché poloze a přímo u zpevněné cesty. Veškeré inženýrské sítě na pole. Čistý a uklizený majetek. Dobrá příležitost pro investory, kteří se zabývají výstavbou bytových domů - bytů, ale i pro ty, kteří si chtějí postavit dům v krásném a klidném prostředí. DRENOVA: Pokud chcete bydlet 'naplno', Drenova je čtvrť v Rijece, na kterou byste měli myslet při výběru nemovitosti. Své jméno dostal podle dřínu, lesního ovocného stromu, který roste v lesích dřínu. Nachází se na okraji města a představuje ideální kombinaci městského a venkovského prostředí. Historicky se skládá ze dvou celků (Horní Drenove a Donje Drenove), dnes spojených do jedné městské části. Příroda je něco, co většina čtvrtí postrádá, a tato část města se vyznačuje pokrokem, takže jen pár kroků od svého pozemku se můžete vydat na pěší túru, trail running, sportovní lezení nebo jednoduchou relaxační procházku. Zmíněná zeleň zajišťuje Drenové přídomek nejklidnějšího osídlení a motto místní rady – „Drenova – zelené plíce města“. V oblasti Drenova se nachází Základní škola „Fran Franković“, která je pojmenována po jednom z nejvýznamnějších obyvatel Drenova. Úspěšně funguje i pobočka Městské knihovny Rijeka. Nezanedbatelnou výhodou Drenové je, že je bohatá na veškeré potřebné zázemí pro život - vzdělávací instituce, zdravotní středisko, městskou knihovnu a řadu sportovních, rekreačních a zábavních zařízení s dobrým dopravním spojením do města i příměstské části oblasti. V této části města probíhá společenská, podporovaná výstavba bytových domů, zároveň jsou v nabídce rodinné domy s dvory a oplocenými zahradami.
U všech našich nabídek jsou ceny nemovitostí identické jako při koupi přímo u agentury/developera v Chorvatsku, a to díky tomu, že jsme oficiální zastoupení těchto kanceláří na Českém, Slovenském, Německém a Rakouském trhu. A to bez dodatečných navýšení za služby v českém jazyce (mimo překladů smluv ověřených notářem).
Vážení klienti, prohlídka nemovitostí, sdělení polohy a další podrobné informace je možné pouze s podepsanou smlouvou o zastoupení, která je základem pro další akce jako je nákup nemovitosti. Vše je dle Zákona o zprostředkování při koupi nemovitostí. Kupující platí zákonnou provizi za zastoupení ve výši 3 % (+ DPH) z dohodnuté ceny, a to pouze v případě koupě nemovitosti. V případě, že se koupě neuskuteční, smlouva Vás k ničemu nezavazuje, a ruší se. V případě vážného zájmu o nemovitost Vám smlouvu zašleme na požádání.
Odpovíme Vám do 24 hodin.
Nabízíme pouze prověřené reality.
Ručíme za kvalitní servis.
Pomůžeme zajistit ubytování při prohlídkách.