RIJEKA, CENTRUM - Mezonetový byt 104 m2, se zahradou a parkováním
| č. ev | DN-41771 | 
| Typ nabídky | Prodej | 
| Kategorie | Byty | 
| Okresy | Primorsko-goranska | 
| Obec, část obce | Rijeka | 
| Cena | 215 000 € | 
| Plocha celkem | 104 m² | 
| Plocha bydlení (bytu) | 104 m² | 
| Elektřina | |
| Odpady | |
| Klimatizace | |
| Topení | ano | 
| Energetická náročnost | X - Nedodáno | 
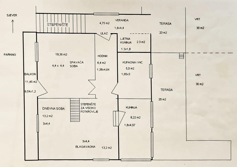
RIJEKA, CENTRUM - Mezonetový byt 104 m2, se zahradou a parkováním PŘÍLEŽITOST PÁR MINUT OD CENTRA! K prodeji je mezonetový byt o rozloze 104 m2, který se nachází na výborném místě v Rijece. Byt se nachází v prvním patře a v podkroví domu s novou fasádou a střechou. Do prvního patra kamenného domu, které je zároveň prvním patrem bytu, vede soukromé venkovní schodiště. V tomto patře se nachází vstupní hala, koupelna, velká ložnice s přístupem na balkon, vybavená kuchyň s jídelnou a obývací pokoj, rovněž s přístupem na balkon. Vnitřní dřevěné schodiště spojuje první patro s podkrovím, kde se nacházejí dvě velké ložnice a hala, kterou lze zařídit jako pracovnu nebo šatnu. Zvláštní hodnotu této nemovitosti dodává terasa o rozloze 40 m2, která se nachází v zadní části domu, je kompletně oplocená a skrytá před pohledy. Na pozemku jsou také k dispozici až 3 parkovací místa, což je v centru města skutečná rarita. Mezipodlažní konstrukce je betonová, zatímco podkroví je dřevěná. Nová střecha je zateplena kamennou vlnou. Byt je klimatizován, k vytápění jsou dodatečně instalovány elektrické panely Glamox a v jídelně se používají kamna. Nemovitost je ihned k nastěhování a prodává se zařízená. Drobná rekonstrukce je žádoucí, s možností si prostor zařídit dle vlastních představ. Ideální pro malou rodinu nebo jako investice k pronájmu, vzhledem k výborné lokalitě! ***
U všech našich nabídek jsou ceny nemovitostí identické jako při koupi přímo u agentury/developera v Chorvatsku, a to díky tomu, že jsme oficiální zastoupení těchto kanceláří na Českém, Slovenském, Německém a Rakouském trhu. A to bez dodatečných navýšení za služby v českém jazyce (mimo překladů smluv ověřených notářem).
Vážení klienti, prohlídka nemovitostí, sdělení polohy a další podrobné informace je možné pouze s podepsanou smlouvou o zastoupení, která je základem pro další akce jako je nákup nemovitosti. Vše je dle Zákona o zprostředkování při koupi nemovitostí. Kupující platí zákonnou provizi za zastoupení ve výši 3 % (+ DPH) z dohodnuté ceny, a to pouze v případě koupě nemovitosti. V případě, že se koupě neuskuteční, smlouva Vás k ničemu nezavazuje, a ruší se. V případě vážného zájmu o nemovitost Vám smlouvu zašleme na požádání.
 
Odpovíme Vám do 24 hodin.
Nabízíme pouze prověřené reality.
Ručíme za kvalitní servis.
Pomůžeme zajistit ubytování při prohlídkách.
 
 
 
 
 
 
 
 
 
 
 
 
 
 
 
 
 
 
 
 
 
 
 
 
 
 
 
 
 
 
 
 
 
 
 
 
 
 
 
 
 
 
 
 
 
 
 
 
 
 
 
 
 
 
 
 
 
 
 
 
 
 
 
 
 
 
 
