OSTROV PAG, POVLJANA - PŘÍLEŽITOST! Nově postavený apartmán u moře!
| č. ev | DN-45616 |
| Typ nabídky | Prodej |
| Kategorie | Byty |
| Okresy | Zadarska |
| Obec, část obce | Povljana |
| Cena | 165 000 € |
| Plocha celkem | 36 m² |
| Plocha bydlení (bytu) | 36 m² |
| Vzdálenost od moře | 300 m |
| Elektřina | |
| Odpady | |
| Klimatizace |
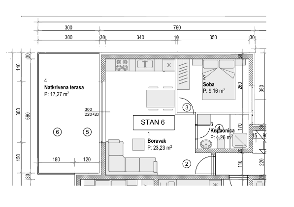
OSTROV PAG, POVLJANA - PŘÍLEŽITOST! Nově postavený apartmán u moře! ATRAKTIVNÍ NOVOSTAVBA – 300 m od moře, Povljana (ostrov Pag) Prodává se moderní apartmán označený jako "Apartmán 6", který se nachází v 1. patře exkluzivní novostavby v klidné a slunné části Povljany. Tato nemovitost představuje perfektní kombinaci funkčnosti a středomořského životního stylu. Základní charakteristiky: Plocha apartmánu: 36,65 m² (maximální využití půdorysu) Terasa: Prostorná krytá terasa o rozloze 17,27 m² – ideální pro užívání si letních večerů. Parkování: Soukromé parkovací místo (12,15 m²) je zahrnuto v ceně. Lokace: Klidná ulice, pouhých 300 metrů snadné chůze od křišťálově čistého moře. Dispozice pokojů: Interiér apartmánu je navržen moderně a vzdušně: Obývací pokoj s kuchyní a jídelním koutem (23,23 m²) Pohodlná ložnice (9,16 m²) Koupelna (4,26 m²) Proč si vybrat Povljanu a ostrov Pag? Povljana se nachází v jižní části ostrova Pag a je skutečným klenotem pro ty, kteří hledají klid, čisté moře a nedotčenou přírodu. Místo nabízí veškeré vybavení potřebné pro život a turistiku - od vynikajících restaurací a obchodů až po dobře udržované promenády. Vynikající spojení: Silniční dostupnost: Pažský most umožňuje rychlý příjezd autem v kteroukoli roční dobu. Letecké spojení: Letiště Zadar je vzdálené jen hodinu jízdy. Námořní linky: Trajektová linka Žigljen–Prizna a rychlolodní linky do Rijeky, Rabu a Lošině. Investiční potenciál: Vzhledem ke své poloze a kvalitě provedení je apartmán vynikající příležitostí k vysoce výnosnému turistickému pronájmu nebo jako soukromá oáza pro rodinnou dovolenou.
U všech našich nabídek jsou ceny nemovitostí identické jako při koupi přímo u agentury/developera v Chorvatsku, a to díky tomu, že jsme oficiální zastoupení těchto kanceláří na Českém, Slovenském, Německém a Rakouském trhu. A to bez dodatečných navýšení za služby v českém jazyce (mimo překladů smluv ověřených notářem).
Vážení klienti, prohlídka nemovitostí, sdělení polohy a další podrobné informace je možné pouze s podepsanou smlouvou o zastoupení, která je základem pro další akce jako je nákup nemovitosti. Vše je dle Zákona o zprostředkování při koupi nemovitostí. Kupující platí zákonnou provizi za zastoupení ve výši 3 % (+ DPH) z dohodnuté ceny, a to pouze v případě koupě nemovitosti. V případě, že se koupě neuskuteční, smlouva Vás k ničemu nezavazuje, a ruší se. V případě vážného zájmu o nemovitost Vám smlouvu zašleme na požádání.
Odpovíme Vám do 24 hodin.
Nabízíme pouze prověřené reality.
Ručíme za kvalitní servis.
Pomůžeme zajistit ubytování při prohlídkách.