OSTROV PAG, MANDRE - Moderní novostavba s výhledem na moře 80 metrů od pláže! S8
| č. ev | DN-42871 |
| Typ nabídky | Prodej |
| Kategorie | Byty |
| Okresy | Zadarska |
| Obec, část obce | Kolan |
| Cena | 294 480 € |
| Plocha celkem | 73 m² |
| Plocha bydlení (bytu) | 73 m² |
| Vzdálenost od moře | 80 m |
| Elektřina | |
| Voda | |
| Klimatizace |
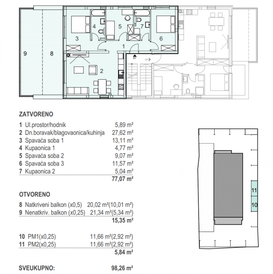
OSTROV PAG, MANDRE - Moderní novostavba s výhledem na moře 80 metrů od pláže! S8 Atraktivní apartmán S8 na prodej v novostavbě nacházející se v Mandre, pouhých 80 metrů od krásné pláže. Budova obsahuje celkem osm moderních apartmánů, postavených s důrazem na kvalitu, pohodlí a moderní životní styl. Apartmán S8 se nachází ve druhém patře a skládá se ze dvou ložnic, koupelny s podlahovým vytápěním, prostorného obývacího pokoje s kuchyní a jídelním koutem a kryté terasy s výhledem na moře, ideální pro relaxaci za teplých letních večerů. K apartmánu náleží také dvě parkovací místa. Tato novostavba představuje dokonalou kombinaci moderního designu a středomořského kouzla - ideální pro dovolenou, ale také jako investice k pronájmu během turistické sezóny. Mandre je malebná rybářská vesnice na ostrově Pag, známá svým čistým mořem, udržovanými plážemi a klidnou atmosférou. Ostrov Pag těší svou jedinečnou přírodou, bohatou gastronomickou nabídkou, pažským sýrem a vínem a autentickým dalmatským duchem. Pro více informací a prohlídku této nemovitosti nás neváhejte kontaktovat - váš nový domov u moře na vás čeká v Mandre!
U všech našich nabídek jsou ceny nemovitostí identické jako při koupi přímo u agentury/developera v Chorvatsku, a to díky tomu, že jsme oficiální zastoupení těchto kanceláří na Českém, Slovenském, Německém a Rakouském trhu. A to bez dodatečných navýšení za služby v českém jazyce (mimo překladů smluv ověřených notářem).
Vážení klienti, prohlídka nemovitostí, sdělení polohy a další podrobné informace je možné pouze s podepsanou smlouvou o zastoupení, která je základem pro další akce jako je nákup nemovitosti. Vše je dle Zákona o zprostředkování při koupi nemovitostí. Kupující platí zákonnou provizi za zastoupení ve výši 3 % (+ DPH) z dohodnuté ceny, a to pouze v případě koupě nemovitosti. V případě, že se koupě neuskuteční, smlouva Vás k ničemu nezavazuje, a ruší se. V případě vážného zájmu o nemovitost Vám smlouvu zašleme na požádání.
Odpovíme Vám do 24 hodin.
Nabízíme pouze prověřené reality.
Ručíme za kvalitní servis.
Pomůžeme zajistit ubytování při prohlídkách.