OSTROV KRK, DOBRINJ - Nová vila s bazénem, dřevěnými pergolami a středomořskou zahradou
| č. ev | DN-46432 |
| Typ nabídky | Prodej |
| Kategorie | Domy |
| Okresy | Primorsko-goranska |
| Obec, část obce | Dobrinj |
| Cena | 1 200 000 € |
| Plocha celkem | 170 m² |
| Zastavěná plocha a nádvoří (dvůr) | 500 m² |
| Celková zastavěná plocha | 500 m² |
| Vzdálenost od moře | 1 000 m |
| Elektřina | |
| Klimatizace | |
| Energetická náročnost | X - Nedodáno |
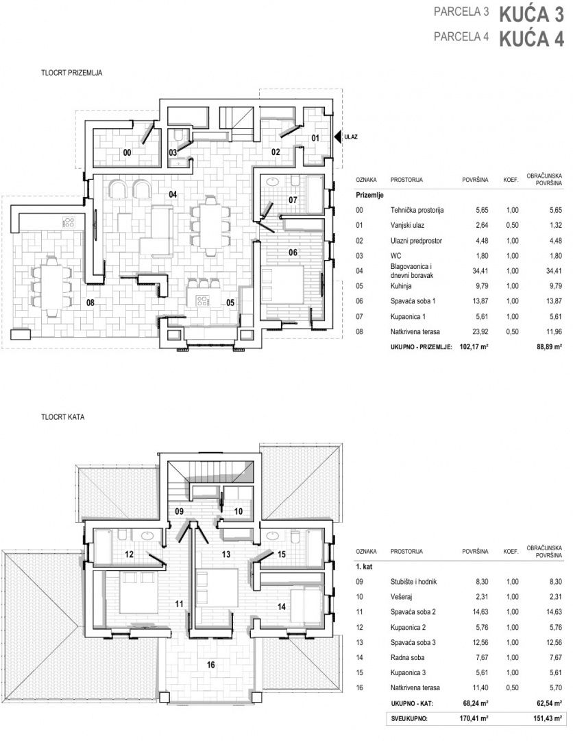
OSTROV KRK, DOBRINJ - Nová vila s bazénem, dřevěnými pergolami a středomořskou zahradou Představujeme vám exkluzivní příležitost na ostrově Krk! Moderní samostatně stojící vila se nachází v klidné vesnici nedaleko Šila, v luxusním komplexu šesti vil. Je určena pro kupující, kteří hledají dokonalou kombinaci středomořské tradice, moderního designu a naprostého soukromí. Vila je navržena jako moderní dvoupatrový dům s maximálním využitím prostoru, orientovaný na jih, plný přirozeného světla díky velkým proskleným stěnám. Rozložení místností je funkčně řešeno a pokrývá plochu 170,41 m2: - vstupní prostor: krytý venkovní vchod, vstupní hala, ložnice s koupelnou, toaleta pro hosty - obývací pokoj: prostorný obývací pokoj s jídelním koutem a kuchyní a vstupem na krytou terasu - spací prostor v prvním patře: dvě ložnice, každá s vlastní koupelnou "en-suite" a vstupem na krytou terasu, prádelna; Jeden pokoj má další místnost, kterou lze využít jako pracovnu nebo šatnu - další venkovní úložný prostor / technická místnost Zahrada. 500 m2. Je zařízena v autentickém středomořském stylu s kamennými detaily a pečlivě plánovaným osvětlením. Centrální místo zaujímá soukromý bazén o rozloze 24 m2, ideální pro letní osvěžení. Kromě grilu a upravených zelených ploch vila nabízí také tři soukromá parkovací místa. Kámen a dřevo dominují exteriéru, které poskytují přirozenou izolaci a domorodé kouzlo. Masivní dřevěné trámy na terasách vytvářejí přirozený stín a rozpoznatelnou středomořskou atmosféru. Špičkový standard vybavení. - vytápění a chlazení: podlahové vytápění v celém domě, klimatizace ve všech místnostech. - zabezpečení: alarm, video dohled a bezpečnostní dveře. - materiály: vysoce kvalitní PVC truhlářství, špičková keramika a sanitární keramika od renomovaných výrobců. Vila se prodává na klíč (plánované dokončení v roce 2027). Výhody lokality a investice. Vila, která se nachází 2700 metrů od moře, nabízí klid bez turistického hluku a zároveň je vynikající příležitostí k investici do turistického pronájmu. Vzhledem k tomu, že DPH je zahrnuta v ceně, je kupující osvobozen od placení daně z nemovitosti. Architektura, která představuje tradiční stavbu v moderním hávu. Žádný kompromis mezi tradicí a moderním luxusem. Jste jen krok od svého nového domova, kde byl každý detail pečlivě vybrán, aby vám poskytl tu nejlepší atmosféru a pobyt v tomto jedinečném příběhu. Kontaktujte nás s důvěrou a domluvte si soukromou schůzku. ***
U všech našich nabídek jsou ceny nemovitostí identické jako při koupi přímo u agentury/developera v Chorvatsku, a to díky tomu, že jsme oficiální zastoupení těchto kanceláří na Českém, Slovenském, Německém a Rakouském trhu. A to bez dodatečných navýšení za služby v českém jazyce (mimo překladů smluv ověřených notářem).
Vážení klienti, prohlídka nemovitostí, sdělení polohy a další podrobné informace je možné pouze s podepsanou smlouvou o zastoupení, která je základem pro další akce jako je nákup nemovitosti. Vše je dle Zákona o zprostředkování při koupi nemovitostí. Kupující platí zákonnou provizi za zastoupení ve výši 3 % (+ DPH) z dohodnuté ceny, a to pouze v případě koupě nemovitosti. V případě, že se koupě neuskuteční, smlouva Vás k ničemu nezavazuje, a ruší se. V případě vážného zájmu o nemovitost Vám smlouvu zašleme na požádání.
Odpovíme Vám do 24 hodin.
Nabízíme pouze prověřené reality.
Ručíme za kvalitní servis.
Pomůžeme zajistit ubytování při prohlídkách.