OSTROV KRK, BRZAC - Dvojdomek moderního designu s bazénem 40m2
| č. ev | DN-33288 |
| Typ nabídky | Prodej |
| Kategorie | Domy |
| Okresy | Primorsko-goranska |
| Obec, část obce | Krk |
| Cena | 650 000 € |
| Plocha celkem | 158 m² |
| Vzdálenost od moře | 750 m |
| Elektřina | |
| Klimatizace | |
| Topení | ano |
| Energetická náročnost | X - Nedodáno |
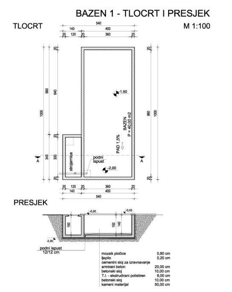
OSTROV KRK, BRZAC - Dvojdům moderního designu s bazénem 40m2 Hledáte jedinečnou nemovitost pro dovolenou, bydlení nebo investici? Tento rozestavěný dvojdům s plánovaným dokončením v létě 2025 je pro vás ideální! Nachází se na klidném místě, 750 m od moře, nabízí vše, co potřebujete pro dokonalé pohodlí. Rozkládá se na 158 m2 a nabízí dokonale řešený interiér! V přízemí se nachází prostorný obývací pokoj s kuchyní a jídelnou ve stylu open space se vstupem na krásnou krytou terasu. Dále je zde jedna ložnice s koupelnou, prádelna a sauna se sprchou! Chcete soukromí a luxus? V patře na vás čekají tři ložnice, každá s vlastní koupelnou a jedna má dokonce přístup na vlastní lodžii – ideální místo pro ranní kávu s výhledem na moře! Dvůr je skutečná oáza! Užijete si vyhřívaný bazén o velikosti 40 m2 se sluneční terasou a grilem. Dvě parkovací místa jsou v ceně! Kvalita provedení je na nejvyšší úrovni - podlahové vytápění s tepelným čerpadlem, klimatizace ve všech místnostech, PVC truhlářství, alarm a video dohled, vyhřívaný bazén s vlastním tepelným čerpadlem. Bezpečnost a pohodlí na každém rohu! V ceně je zahrnuto DPH a kupující neplatí daň z prodeje nemovitosti! Nenechte si ujít tuto příležitost – jen krůček od vás a vyberte si možnost zařídit si domov podle vlastního vkusu!
U všech našich nabídek jsou ceny nemovitostí identické jako při koupi přímo u agentury/developera v Chorvatsku, a to díky tomu, že jsme oficiální zastoupení těchto kanceláří na Českém, Slovenském, Německém a Rakouském trhu. A to bez dodatečných navýšení za služby v českém jazyce (mimo překladů smluv ověřených notářem).
Vážení klienti, prohlídka nemovitostí, sdělení polohy a další podrobné informace je možné pouze s podepsanou smlouvou o zastoupení, která je základem pro další akce jako je nákup nemovitosti. Vše je dle Zákona o zprostředkování při koupi nemovitostí. Kupující platí zákonnou provizi za zastoupení ve výši 3 % (+ DPH) z dohodnuté ceny, a to pouze v případě koupě nemovitosti. V případě, že se koupě neuskuteční, smlouva Vás k ničemu nezavazuje, a ruší se. V případě vážného zájmu o nemovitost Vám smlouvu zašleme na požádání.
Odpovíme Vám do 24 hodin.
Nabízíme pouze prověřené reality.
Ručíme za kvalitní servis.
Pomůžeme zajistit ubytování při prohlídkách.