OSTROV CRES, MĚSTO CRES - skvělá novostavba na skvělém místě, přímo v centru 50m od moře
| č. ev | DN-44375 |
| Typ nabídky | Prodej |
| Kategorie | Byty |
| Okresy | Primorsko-goranska |
| Obec, část obce | Cres |
| Cena | 435 000 € |
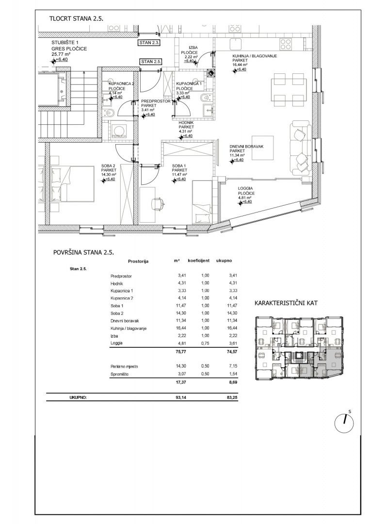
| Plocha celkem | 93 m² |
| Plocha bydlení (bytu) | 93 m² |
| Vzdálenost od moře | 50 m |
| Elektřina | |
| Voda | |
| Odpady | |
| Klimatizace | |
| Energetická náročnost | A - mimořádně úsporná |
OSTROV CRES, MĚSTO CRES - byt 2+kk + obývací pokoj v prvotřídní novostavbě na skvělém místě, centrum města 50 metrů od moře. Prodáváme dvoupokojový byt s obývacím pokojem označeným 2,5 ve druhém patře prvotřídní novostavby bytového domu na fenomenálním a jedinečném místě. Byt se skládá ze vstupní haly, technické místnosti, toalety pro hosty, koupelny, obývacího prostoru s otevřeným prostorem, kuchyní a jídelnou s přístupem na lodžii a dvou ložnic, s celkovou čistou obytnou plochou 75,77 m2. K bytu náleží jedno garážové parkovací místo o rozloze 14,30 m2 a také úložný prostor v garáži o rozloze 3,07 m2. Tato krásná obytná a obchodní budova s výtahem a podzemní garáží je v první fázi výstavby a je navržena pro 14 bytových jednotek s jednou a dvěma ložnicemi. Byty budou prodávány na klíč, vybavení bytů bude na vysoké úrovni, včetně podlahového vytápění, invertorových klimatizací, prvotřídních podlahových krytin a parket, koupelen s vanou a špičkové sanitární keramiky od renomovaných výrobců. Vzácnost v nabídce, unikátní lokalita.
U všech našich nabídek jsou ceny nemovitostí identické jako při koupi přímo u agentury/developera v Chorvatsku, a to díky tomu, že jsme oficiální zastoupení těchto kanceláří na Českém, Slovenském, Německém a Rakouském trhu. A to bez dodatečných navýšení za služby v českém jazyce (mimo překladů smluv ověřených notářem).
Vážení klienti, prohlídka nemovitostí, sdělení polohy a další podrobné informace je možné pouze s podepsanou smlouvou o zastoupení, která je základem pro další akce jako je nákup nemovitosti. Vše je dle Zákona o zprostředkování při koupi nemovitostí. Kupující platí zákonnou provizi za zastoupení ve výši 3 % (+ DPH) z dohodnuté ceny, a to pouze v případě koupě nemovitosti. V případě, že se koupě neuskuteční, smlouva Vás k ničemu nezavazuje, a ruší se. V případě vážného zájmu o nemovitost Vám smlouvu zašleme na požádání.
Odpovíme Vám do 24 hodin.
Nabízíme pouze prověřené reality.
Ručíme za kvalitní servis.
Pomůžeme zajistit ubytování při prohlídkách.