OPATIJA, POBRI - zahájena výstavba 100m2 SE STAVEBNÍM POVOLENÍM!!! + zahrada 1200m2
| č. ev | DN-36470 |
| Typ nabídky | Prodej |
| Kategorie | Domy |
| Okresy | Primorsko-goranska |
| Obec, část obce | Opatija - Okolica |
| Cena | 220 000 € |
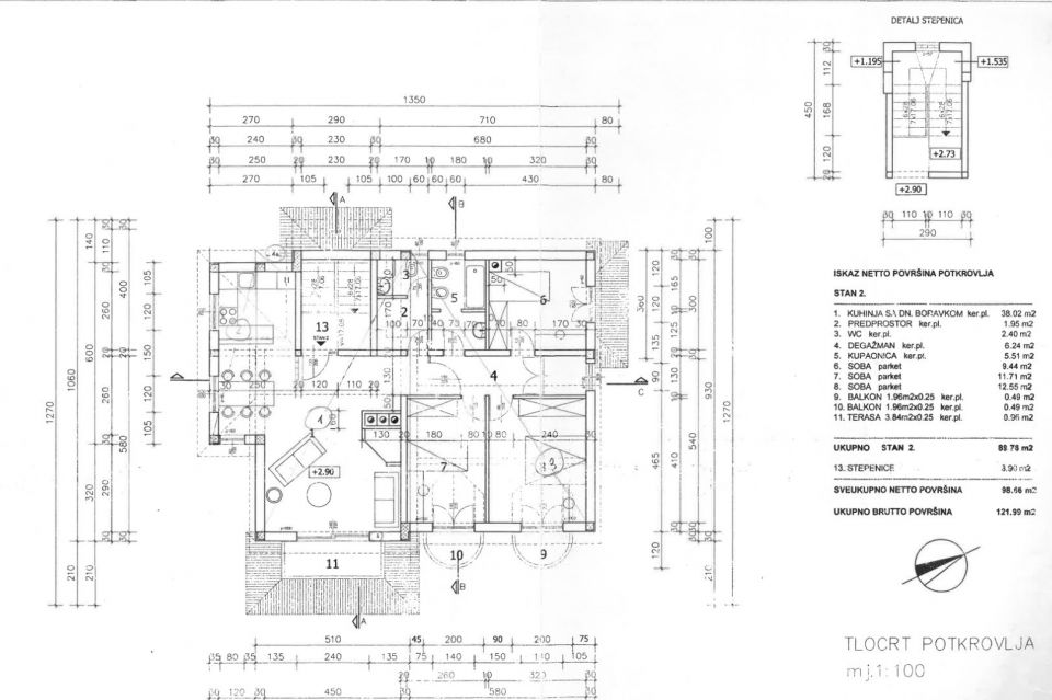
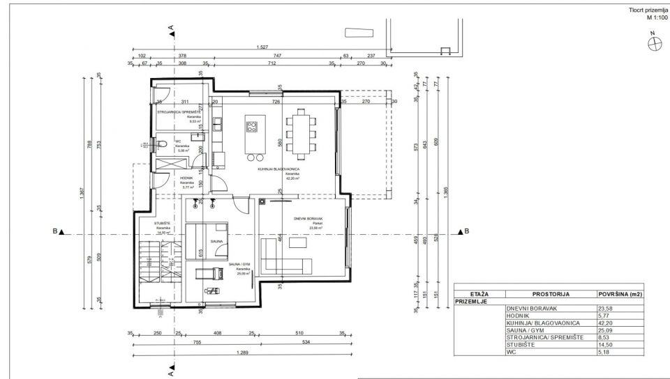
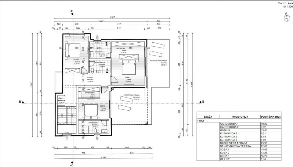
| Plocha celkem | 100 m² |
| Zastavěná plocha a nádvoří (dvůr) | 1 200 m² |
| Celková zastavěná plocha | 1 200 m² |
| Elektřina | |
| Voda | |
| Odpady |
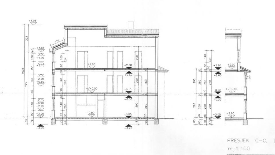
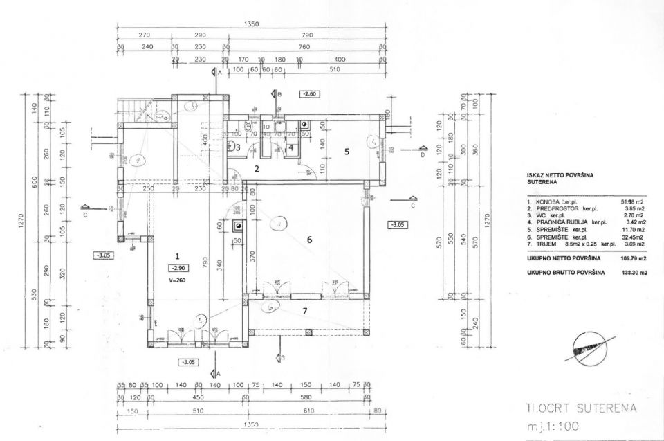
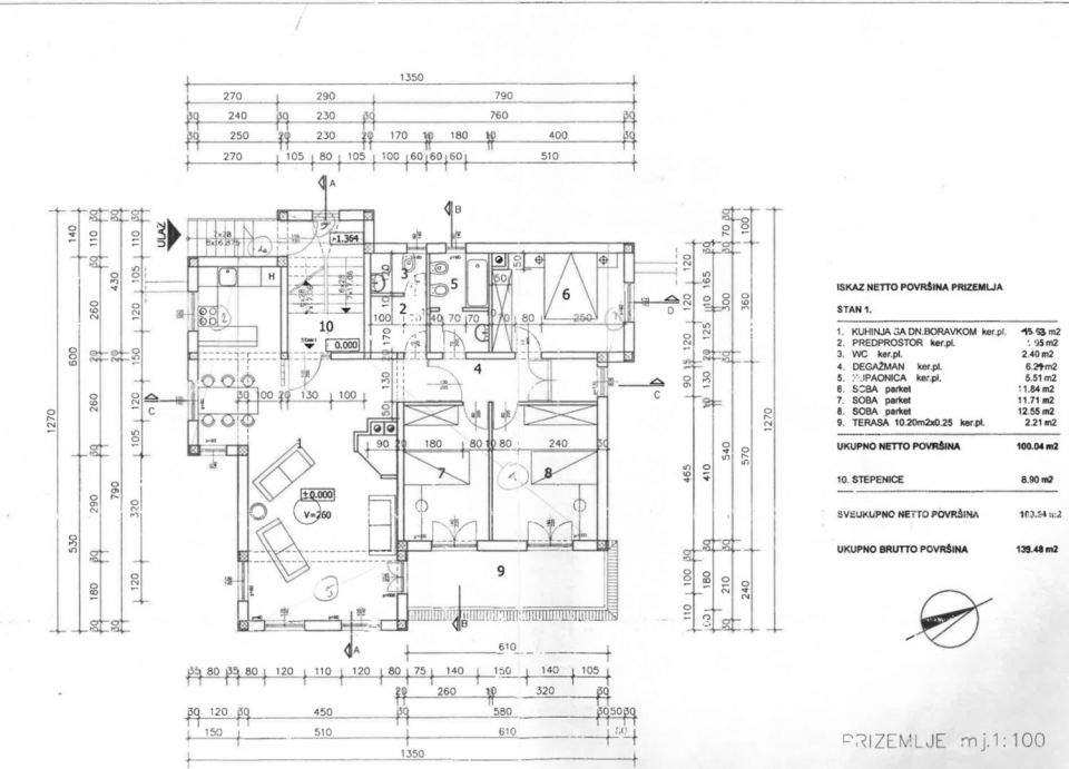
POBRI - zahájená stavba 100m2 + zahrada 1200m2 Dům má v současné době pouze přízemí o celkové ploše 100 m2. Na pozemek jsou 2 projekty, jeden projekt na rodinný dům/vilu s bazénem a druhý projekt na objekt se 3 byty. Velká zahrada, i 1200m2. Má částečný výhled na moře a jižní orientaci. Čistý a uklizený majetek. Tato nemovitost je vzdušnou čarou 1,15 km od moře nebo 3,2 km autem (cca 8 min.). Dobrá příležitost pro investory, kteří se zabývají výstavbou bytů, ale i pro ty, kteří by si rádi postavili dům k pronájmu - rekreační dům s bazénem nebo rodinný dům v klidném, tichém prostředí. OPATIJA: Opatija, krásné pobřežní město na pobřeží Jaderského moře, je známým turistickým cílem turistů z celého světa. Město je obklopeno krásnou přírodou, na úpatí hory Učka. Nemovitosti v Opatiji nabízí neocenitelný výhled na moře a okolní ostrovy Krk a Cres. Opatija je obklopena půvabnými městečky se starými domy zasazenými v úzkých uličkách bohatých na historii. Ulice města Opatija jsou tvořeny nemovitostmi, které vynikají svou specifickou architekturou a vilami, které pocházejí z období Habsburků. Široký výběr pláží, křišťálově čisté moře a různé turistické služby jsou klíčovými faktory, které činí z Opatije perfektní turistickou destinaci uznávanou sousedními zeměmi jako vynikající investiční volbu. Ceny nemovitostí v této oblasti rostou, obsazenost pronájmů je výborná, což způsobilo návratnost investice 5 až 10 % a přilákalo zahraniční investory.
U všech našich nabídek jsou ceny nemovitostí identické jako při koupi přímo u agentury/developera v Chorvatsku, a to díky tomu, že jsme oficiální zastoupení těchto kanceláří na Českém, Slovenském, Německém a Rakouském trhu. A to bez dodatečných navýšení za služby v českém jazyce (mimo překladů smluv ověřených notářem).
Vážení klienti, prohlídka nemovitostí, sdělení polohy a další podrobné informace je možné pouze s podepsanou smlouvou o zastoupení, která je základem pro další akce jako je nákup nemovitosti. Vše je dle Zákona o zprostředkování při koupi nemovitostí. Kupující platí zákonnou provizi za zastoupení ve výši 3 % (+ DPH) z dohodnuté ceny, a to pouze v případě koupě nemovitosti. V případě, že se koupě neuskuteční, smlouva Vás k ničemu nezavazuje, a ruší se. V případě vážného zájmu o nemovitost Vám smlouvu zašleme na požádání.
Odpovíme Vám do 24 hodin.
Nabízíme pouze prověřené reality.
Ručíme za kvalitní servis.
Pomůžeme zajistit ubytování při prohlídkách.