OPATIJA, PAVLOVAC - byt v novostavbě nedaleko Opatije, 180m2 s výhledem na moře a střešní terasou
| č. ev | DN-24459 |
| Typ nabídky | Prodej |
| Kategorie | Byty |
| Okresy | Primorsko-goranska |
| Obec, část obce | Matulji |
| Cena | 459 000 € |
| Plocha celkem | 141 m² |
| Plocha bydlení (bytu) | 141 m² |
| Vzdálenost od moře | 2 500 m |
| Elektřina | |
| Voda | |
| Odpady | |
| Klimatizace | |
| Topení | ano |
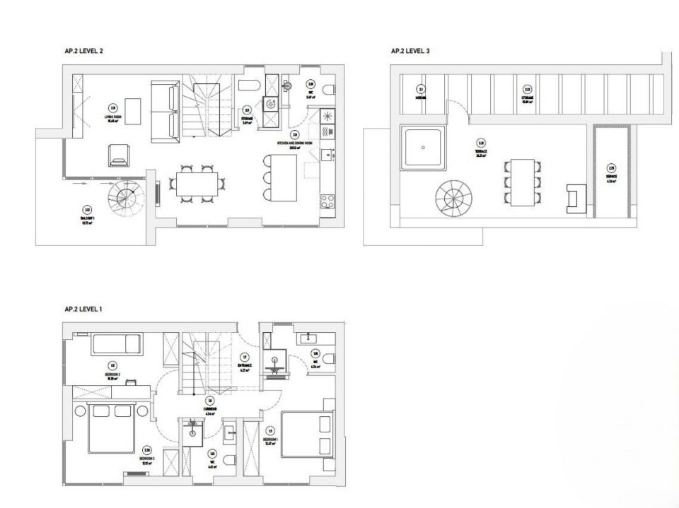
OPATIJA, PAVLOVAC - apartmán v novostavbě u Opatije 180m2 s výhledem na moře a střešní terasou Tento moderní bytový dům pouze se třemi apartmány dokonale spojuje komfort a kvalitu, nachází se ve výborné lokalitě, která nabízí vše, co potřebujete pro příjemný život nebo relaxaci. Za pouhých 15 minut chůze nebo pár minut jízdy autem jste na krásných plážích a podél mořského pobřeží. Do centra Opatije dojedete za pouhých 5 minut a do centra Rijeky za 10 minut. Byt číslo 2 se STŘEŠNÍ TERASOU o celkové výměře 179,2 m2 se rozprostírá v prvním a druhém patře a disponuje i podkrovím, poskytujícím dostatek prostoru pro pohodlné bydlení. V prvním patře je vstupní prostor a chodba s elegantním schodištěm, prostorná hlavní ložnice s vlastní koupelnou a další dvě ložnice, které sdílejí společnou koupelnu. Druhé patro nabízí komoru, další toaletu a prostorný obývací pokoj s moderní kuchyní a jídelnou, se vstupem na balkon 14,1 m2 s krásným výhledem na moře. Přes balkon vede schodiště do podkroví, kde je další úložný prostor a prostorná střešní terasa 31,4 m2 - ideální místo, kde si můžete vychutnat nádherný výhled na celý Kvarner a odpočinout si u šálku kávy ráno nebo večer. K tomuto bytu náleží také jedno parkovací místo. Byty jsou pečlivě navrženy s důrazem na kvalitu a vybaveny špičkovými materiály: Hliníkové venkovní truhlářské výrobky, které poskytují vynikající izolaci Systém vytápění/chlazení na bázi tepelného čerpadla pro vaše pohodlí po celý rok Vchodové dveře proti vloupání Použití vysoce kvalitních materiálů Tento apartmán poskytuje dokonalou rovnováhu mezi pohodlím, krásným výhledem na moře a výbornou polohou, což z něj činí ideální volbu pro bydlení nebo investici.
U všech našich nabídek jsou ceny nemovitostí identické jako při koupi přímo u agentury/developera v Chorvatsku, a to díky tomu, že jsme oficiální zastoupení těchto kanceláří na Českém, Slovenském, Německém a Rakouském trhu. A to bez dodatečných navýšení za služby v českém jazyce (mimo překladů smluv ověřených notářem).
Vážení klienti, prohlídka nemovitostí, sdělení polohy a další podrobné informace je možné pouze s podepsanou smlouvou o zastoupení, která je základem pro další akce jako je nákup nemovitosti. Vše je dle Zákona o zprostředkování při koupi nemovitostí. Kupující platí zákonnou provizi za zastoupení ve výši 3 % (+ DPH) z dohodnuté ceny, a to pouze v případě koupě nemovitosti. V případě, že se koupě neuskuteční, smlouva Vás k ničemu nezavazuje, a ruší se. V případě vážného zájmu o nemovitost Vám smlouvu zašleme na požádání.
Odpovíme Vám do 24 hodin.
Nabízíme pouze prověřené reality.
Ručíme za kvalitní servis.
Pomůžeme zajistit ubytování při prohlídkách.