OPATIJA, MOŠĆENIČKA DRAGA- stavební pozemek 960m2 SE STAVEBNÍM POVOLENÍM!! pro vilu s bazénem a výhledem na moře
| č. ev | DN-36915 |
| Typ nabídky | Prodej |
| Kategorie | Stavební pozemky |
| Okresy | Primorsko-goranska |
| Obec, část obce | Mošćenička Draga |
| Cena | 325 000 € |
| Cena za m2 | 338 €/m² |
| Plocha celkem | 960 m² |
| Elektřina | |
| Voda |
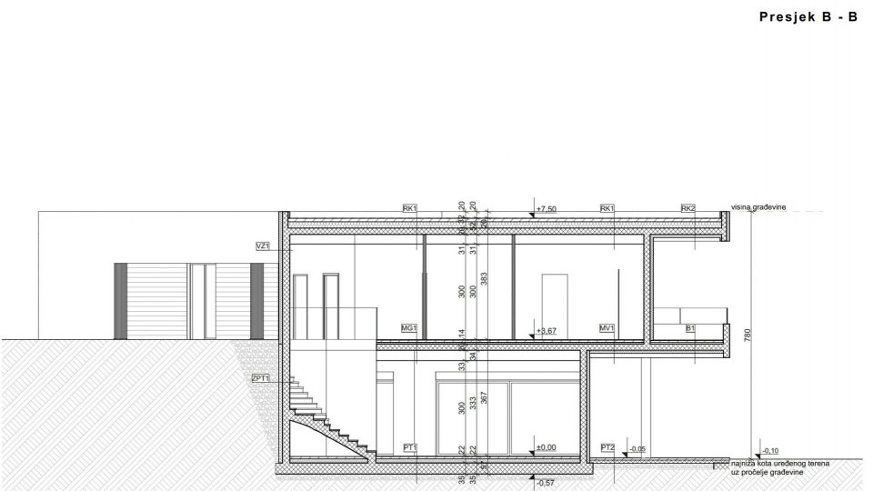
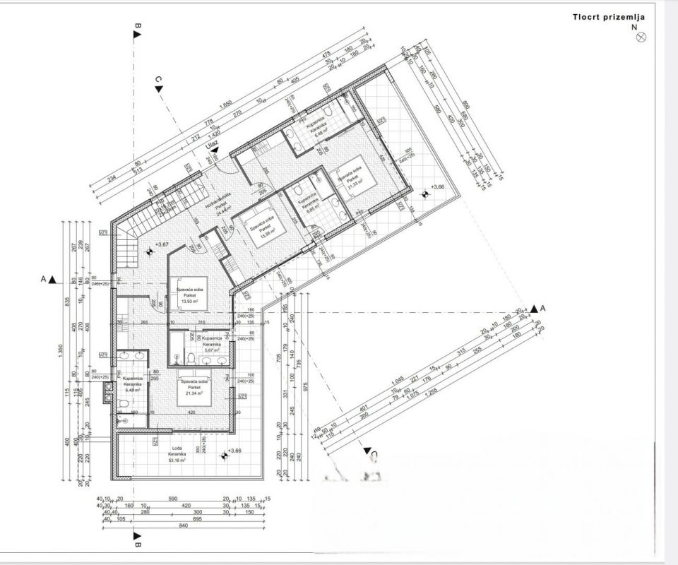
OPATIJA RIVIERA - pozemek se stavebním povolením na vilu s bazénem a výhledem na moře Prodej stavebního pozemku 960 m² v Mošćenička Draga, ideální pro stavbu luxusní vily s bazénem. Terén se nachází v klidné lokalitě, obklopen zelení, s krásným výhledem na moře a ostrov Cres. Pozemek je uklizený a připravený k výstavbě. Nachází se 1 km od centra Mošćenička Draga a jedné z nejkrásnějších pláží Opatijské riviéry. Bylo vyřízeno stavební povolení a byly zaplaceny příspěvky na služby a vodu. Přístup je zajištěn po asfaltové komunikaci, veškeré inženýrské sítě jsou přivedeny k pozemku. Projekt počítá s výstavbou luxusní vily o dvou podlažích o celkové ploše 250 m². Součástí vily bude 53 m² lodžie a 71 m² krytá terasa. V přízemí se nachází obývací pokoj, kuchyň s jídelnou, sauna, koupelna, prádelna, strojovna a krytá terasa. V patře jsou plánovány čtyři ložnice, každá s vlastní koupelnou. Před domem je plánován bazén o velikosti 50 m². K vytápění je plánováno podlahové vytápění pomocí elektrického tepelného čerpadla, chlazení zajistí autonomní multisplitový systém klimatizace. Projekt vily splňuje všechna kritéria pro pětihvězdičkovou kategorizaci. Je zde možnost odkoupení sousedního pozemku, na který je rovněž získáno povolení pro identickou stavbu. Tento pozemek představuje vynikající příležitost pro investory, kteří se zabývají výstavbou luxusních vil k pronájmu, ale i pro ty, kteří si chtějí postavit vlastní rekreační dům v klidném a přírodním prostředí. Nemovitost je vzdálena 1,2 km od moře vzdušnou čarou nebo 1,4 km autem, což je přibližně 4 minuty jízdy. Pro sjednání prohlídky nemovitosti volejte důvěryhodného agenta - konzultace v němčině možná.
U všech našich nabídek jsou ceny nemovitostí identické jako při koupi přímo u agentury/developera v Chorvatsku, a to díky tomu, že jsme oficiální zastoupení těchto kanceláří na Českém, Slovenském, Německém a Rakouském trhu. A to bez dodatečných navýšení za služby v českém jazyce (mimo překladů smluv ověřených notářem).
Vážení klienti, prohlídka nemovitostí, sdělení polohy a další podrobné informace je možné pouze s podepsanou smlouvou o zastoupení, která je základem pro další akce jako je nákup nemovitosti. Vše je dle Zákona o zprostředkování při koupi nemovitostí. Kupující platí zákonnou provizi za zastoupení ve výši 3 % (+ DPH) z dohodnuté ceny, a to pouze v případě koupě nemovitosti. V případě, že se koupě neuskuteční, smlouva Vás k ničemu nezavazuje, a ruší se. V případě vážného zájmu o nemovitost Vám smlouvu zašleme na požádání.
Odpovíme Vám do 24 hodin.
Nabízíme pouze prověřené reality.
Ručíme za kvalitní servis.
Pomůžeme zajistit ubytování při prohlídkách.