OPATIJA, MOŠĆENIČKA DRAGA- stavební pozemek 1920m2 SE 2 STAVEBNÍMI POVOLENÍMI!! pro 2 vily s bazénem a výhledem na moře
| č. ev | DN-36917 |
| Typ nabídky | Prodej |
| Kategorie | Stavební pozemky |
| Okresy | Primorsko-goranska |
| Obec, část obce | Mošćenička Draga |
| Cena | 625 000 € |
| Cena za m2 | 325 €/m² |
| Plocha celkem | 1 920 m² |
| Elektřina | |
| Voda |
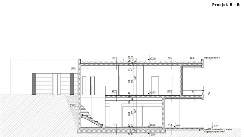
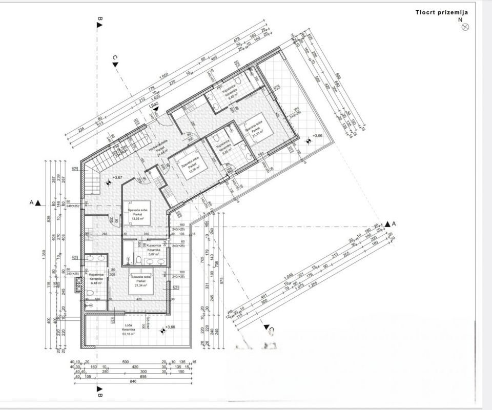
OPATIJA RIVIERA - atraktivní pozemek se stavebním povolením na výstavbu dvou vil s bazénem a výhledem na moře Prodej stavebního pozemku 1920 m² v Mošćenička Draga s platným stavebním povolením na výstavbu dvou luxusních vil s bazénem. K pozemku je kompletní projektová dokumentace, zaplacené příspěvky na spotřebu energií a vody, což umožňuje okamžité zahájení stavby. Každá vila je navržena ve dvou podlažích o celkové ploše 250 m², s lodžií 53 m² a zastřešenou terasou 71 m². V přízemí každé vily je obývací pokoj, kuchyň s jídelnou, sauna, koupelna, prádelna, strojovna a krytá terasa. V patře jsou čtyři ložnice, každá s vlastní koupelnou. Před každou vilou je plánován bazén o velikosti 50 m². Vily jsou navrženy tak, aby splňovaly všechna kritéria pro kategorizaci 5 hvězdiček. K vytápění se počítá s podlahovým vytápěním s elektrickým tepelným čerpadlem, o chlazení se bude starat autonomní multisplitová klimatizace. Pozemek se nachází na klidném místě, obklopen zelení, s krásným výhledem na moře a ostrov Cres a je jen 1 km od centra Mošćenička Draga a nejkrásnějších pláží Opatijské riviéry. Příjezd k pozemku je zajištěn po asfaltové komunikaci, veškeré přípojky inženýrských sítí jsou vyvedeny na terén. Tento pozemek představuje výbornou příležitost pro investory, kteří se zabývají výstavbou luxusních nájemních domů, ale i pro ty, kteří si chtějí postavit rekreační dům s bazénem nebo rodinný dům v klidném a tichém prostředí. Pozemek je kompletně vyklizený a připravený k výstavbě, nemovitost je čistá a uklizená. Nemovitost je vzdálena pouze 1,2 km vzdušnou čarou od moře nebo 1,4 km autem (cca 4 minuty jízdy), což z této lokality činí velmi atraktivní investici. Pro sjednání prohlídky nemovitosti volejte důvěryhodného agenta - konzultace v němčině možná.
U všech našich nabídek jsou ceny nemovitostí identické jako při koupi přímo u agentury/developera v Chorvatsku, a to díky tomu, že jsme oficiální zastoupení těchto kanceláří na Českém, Slovenském, Německém a Rakouském trhu. A to bez dodatečných navýšení za služby v českém jazyce (mimo překladů smluv ověřených notářem).
Vážení klienti, prohlídka nemovitostí, sdělení polohy a další podrobné informace je možné pouze s podepsanou smlouvou o zastoupení, která je základem pro další akce jako je nákup nemovitosti. Vše je dle Zákona o zprostředkování při koupi nemovitostí. Kupující platí zákonnou provizi za zastoupení ve výši 3 % (+ DPH) z dohodnuté ceny, a to pouze v případě koupě nemovitosti. V případě, že se koupě neuskuteční, smlouva Vás k ničemu nezavazuje, a ruší se. V případě vážného zájmu o nemovitost Vám smlouvu zašleme na požádání.
Odpovíme Vám do 24 hodin.
Nabízíme pouze prověřené reality.
Ručíme za kvalitní servis.
Pomůžeme zajistit ubytování při prohlídkách.