OPATIJA, MATULJI - Dvojdomek se střešní terasou - soukromí, funkčnost a panoramatický výhled
| č. ev | DN-47291 |
| Typ nabídky | Prodej |
| Kategorie | Domy |
| Okresy | Primorsko-goranska |
| Obec, část obce | Matulji |
| Cena | 750 000 € |
| Plocha celkem | 167 m² |
| Elektřina | |
| Voda | |
| Odpady | |
| Klimatizace | |
| Energetická náročnost | A - mimořádně úsporná |
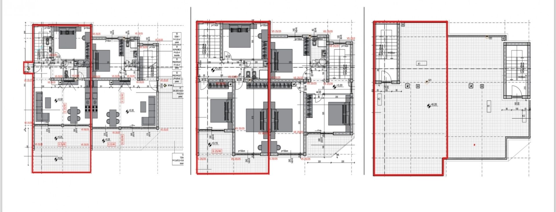
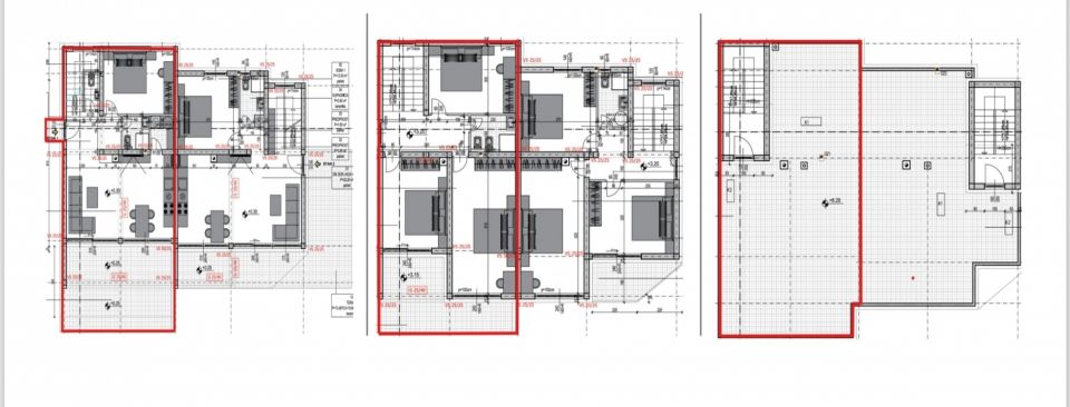
OPATIJA, MATULJI - Dvojdomek se střešní terasou - soukromí, funkčnost a panoramatický výhled Tento moderní dvojdomek nabízí dokonalou kombinaci současné architektury, funkčního uspořádání a dodatečného venkovního komfortu, který povyšuje kvalitu bydlení na vyšší úroveň. Každá bytová jednotka je uspořádána na třech podlažích s jasně oddělenými obytnými a soukromými zónami, což zajišťuje maximální pohodlí a soukromí v každodenním životě. Přízemí je navrženo jako vzdušný otevřený obytný prostor, kde se kuchyň, jídelna a obývací pokoj prolínají do jednoho harmonického celku, přirozeně propojeného s venkovním prostorem. Na stejném patře se nachází také jedna ložnice a koupelna, což dále zvyšuje funkčnost prostoru a flexibilitu využití. Ve druhém patře se nacházejí tři pohodlné ložnice a další koupelna, pečlivě uspořádané tak, aby zajistily soukromí a příjemný každodenní život pro všechny členy rodiny. Třetí patro představuje klíčovou hodnotu této nemovitosti – prostornou střešní terasu s otevřeným výhledem na moře, která v praxi funguje jako rozšíření obytného prostoru a ideální zóna pro relaxaci, socializaci a užívání si středomořské atmosféry. Další balkony a soukromý venkovní prostor dodávají pocit prostornosti a života ve skutečném domě. Nemovitost je vybavena tepelným čerpadlem, podlahovým vytápěním, klimatizací, videovrátným, bezpečnostními dveřmi a zabezpečenými parkovacími místy, což zaručuje vysokou úroveň zabezpečení a pohodlí. Jedná se o dům, který kombinuje moderní design, kvalitní zpracování a dlouhodobou hodnotu – ideální volba pro kupující, kteří hledají více než standardní bydlení. OPATIJA: Opatija, krásné pobřežní město ležící na pobřeží Jaderského moře, je známou turistickou destinací pro turisty z celého světa. Město je obklopeno krásnou přírodou, na úpatí hory Učka. Nemovitosti v Opatiji nabízejí neocenitelné výhledy na moře a okolní ostrovy Krk a Cres. Opatija je obklopena okouzlujícími městečky se starými domy nacházejícími se v úzkých uličkách bohatých na historii. Ulice Opatije jsou lemovány nemovitostmi, které vynikají svou specifickou architekturou a vilami z habsburského období. Široký výběr pláží, křišťálově čisté moře a rozmanité turistické služby jsou klíčovými faktory, díky nimž je Opatija perfektní turistickou destinací, kterou sousední země uznávají jako vynikající investiční volbu. Ceny nemovitostí v této oblasti rostou, obsazenost k pronájmu je vynikající, což způsobilo návratnost investice 5 % až 10 % a přilákalo zahraniční investory.
U všech našich nabídek jsou ceny nemovitostí identické jako při koupi přímo u agentury/developera v Chorvatsku, a to díky tomu, že jsme oficiální zastoupení těchto kanceláří na Českém, Slovenském, Německém a Rakouském trhu. A to bez dodatečných navýšení za služby v českém jazyce (mimo překladů smluv ověřených notářem).
Vážení klienti, prohlídka nemovitostí, sdělení polohy a další podrobné informace je možné pouze s podepsanou smlouvou o zastoupení, která je základem pro další akce jako je nákup nemovitosti. Vše je dle Zákona o zprostředkování při koupi nemovitostí. Kupující platí zákonnou provizi za zastoupení ve výši 3 % (+ DPH) z dohodnuté ceny, a to pouze v případě koupě nemovitosti. V případě, že se koupě neuskuteční, smlouva Vás k ničemu nezavazuje, a ruší se. V případě vážného zájmu o nemovitost Vám smlouvu zašleme na požádání.
Odpovíme Vám do 24 hodin.
Nabízíme pouze prověřené reality.
Ručíme za kvalitní servis.
Pomůžeme zajistit ubytování při prohlídkách.