OPATIJA, IČIĆI - stavební pozemek 2800m2 S LOKALNÍM POVOLENÍM!! A s výhledem na moře pro obytný dům - byty / apartmány
| č. ev | DN-41434 |
| Typ nabídky | Prodej |
| Kategorie | Stavební pozemky |
| Okresy | Primorsko-goranska |
| Obec, část obce | Opatija - Okolica |
| Cena | 550 000 € |
| Cena za m2 | 392 €/m² |
| Plocha celkem | 1 400 m² |
| Elektřina | |
| Voda | |
| Odpady |
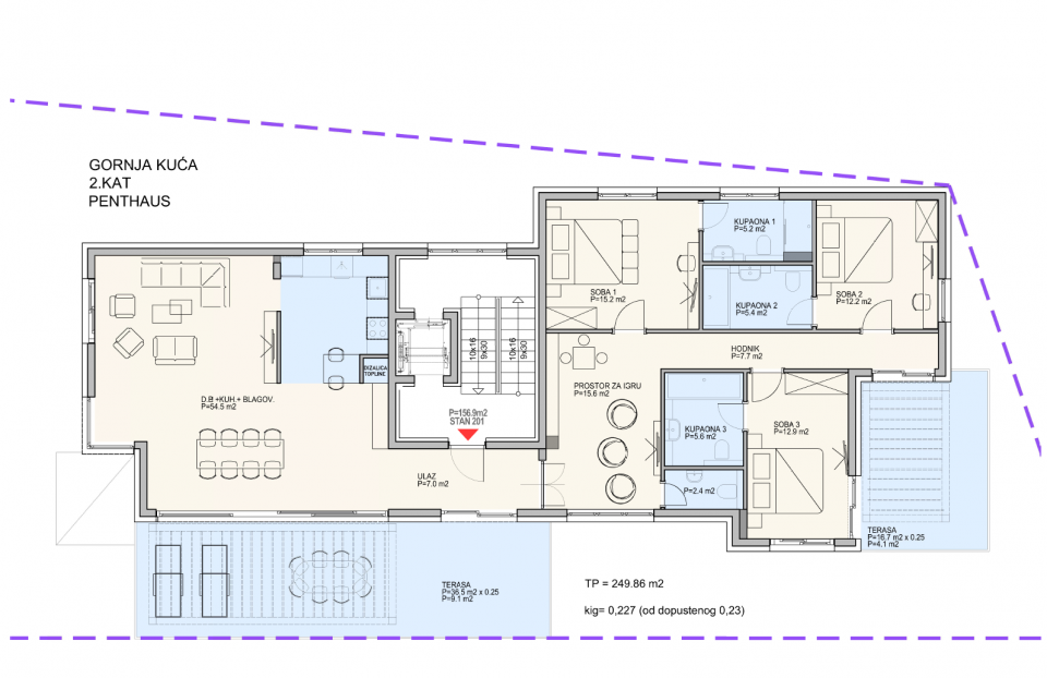
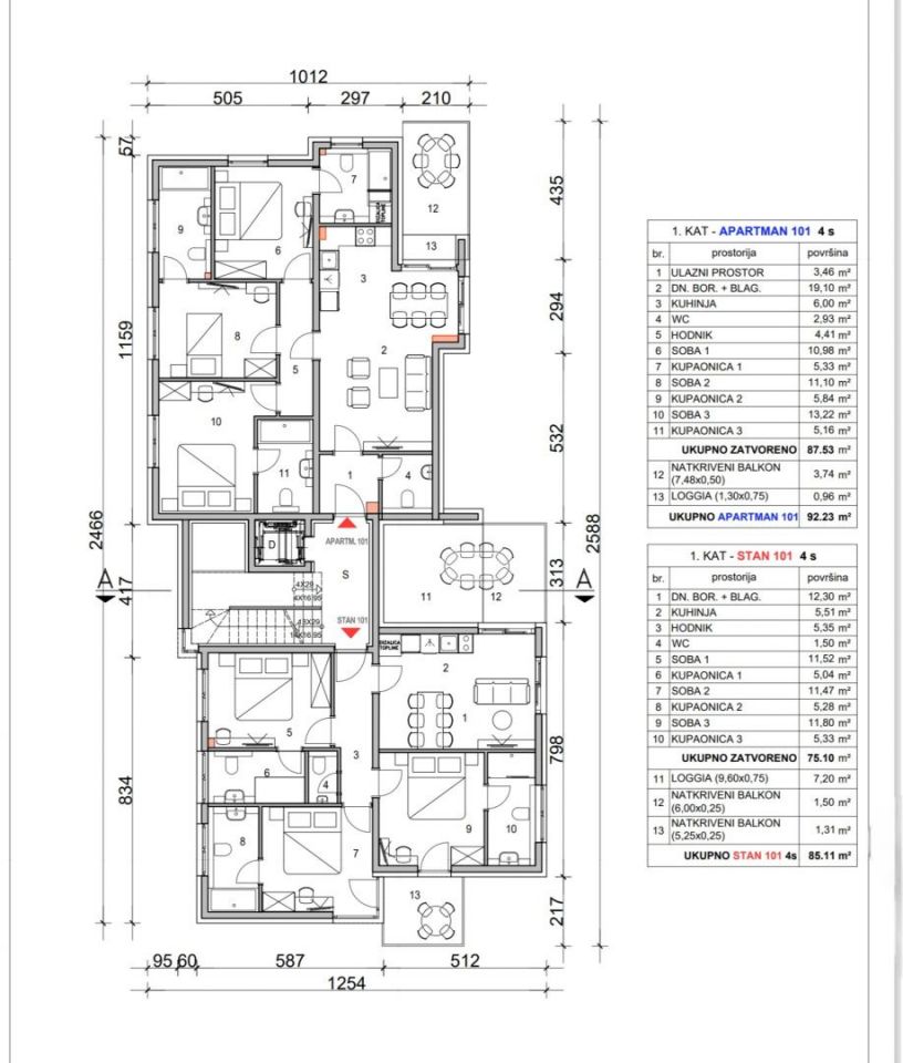
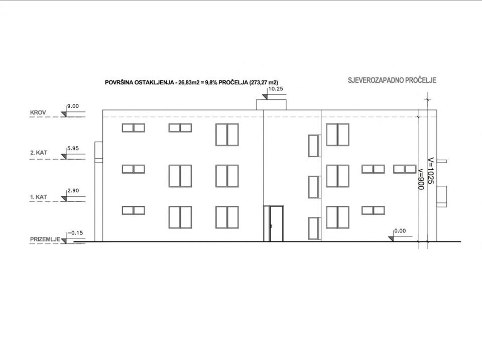
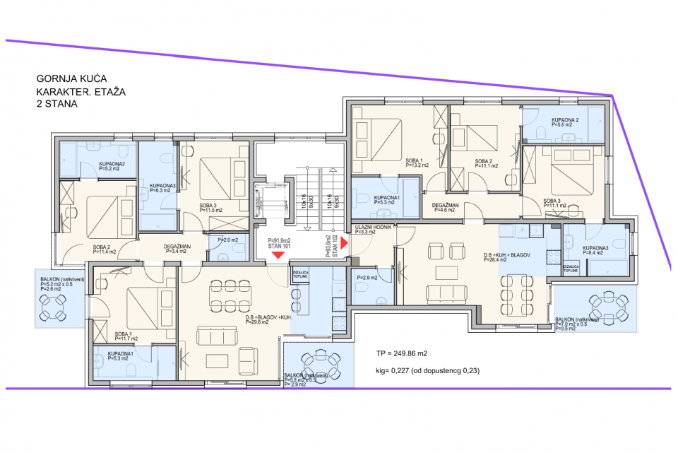
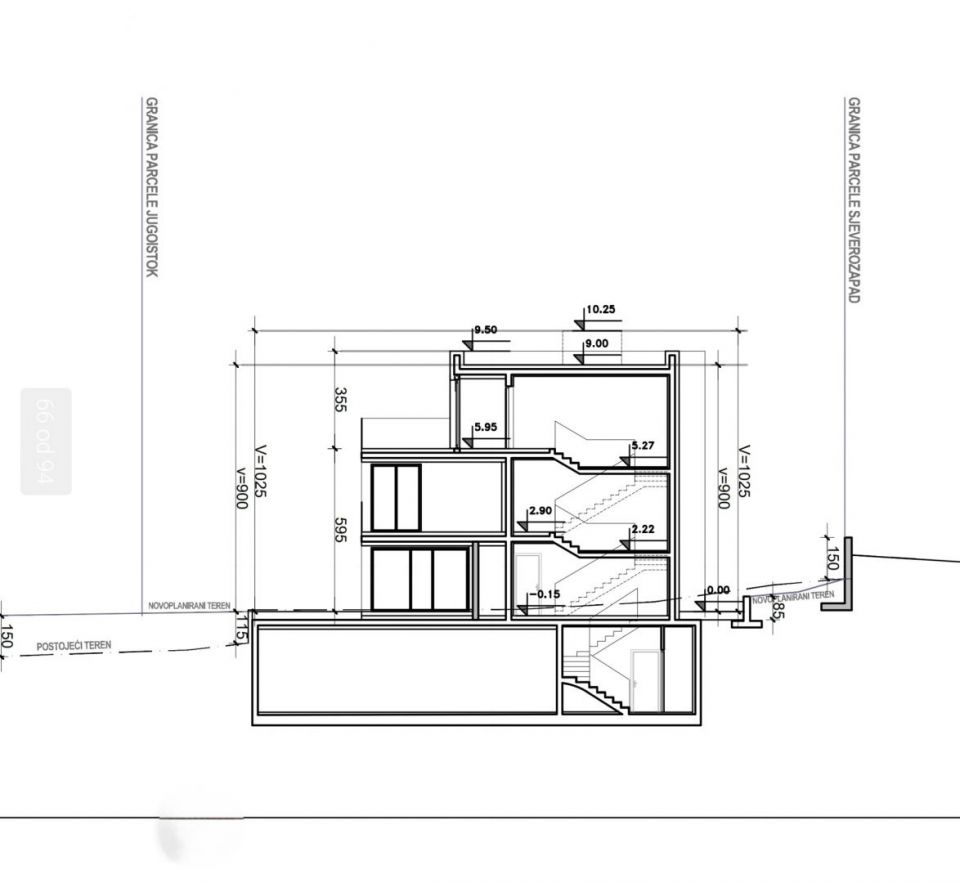
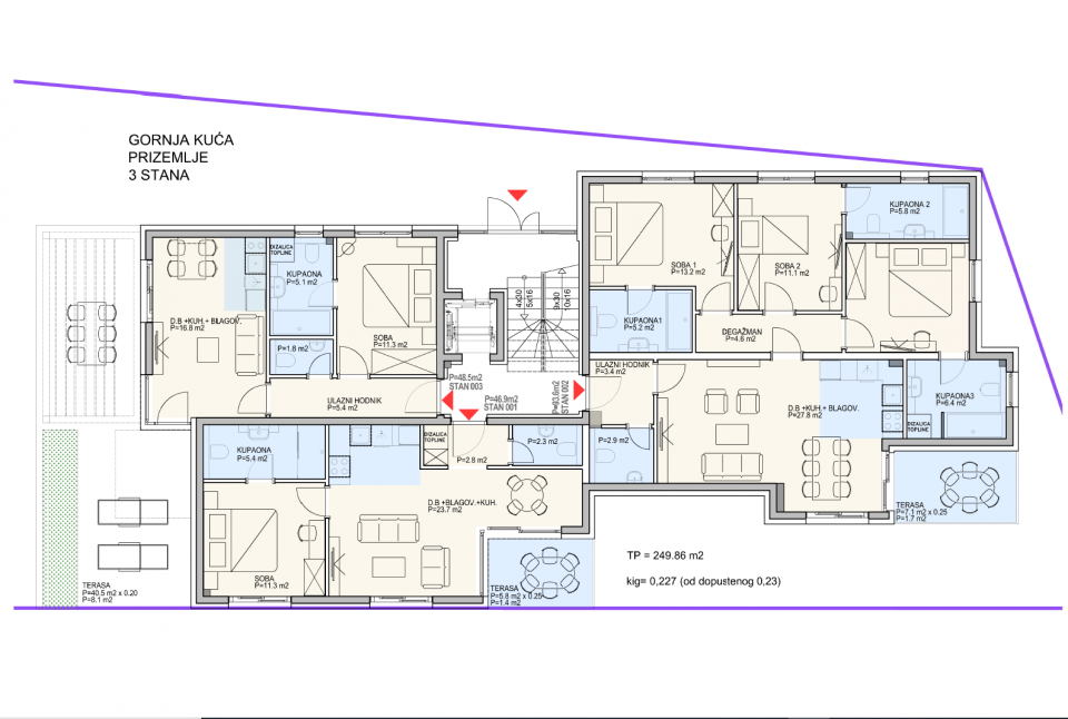
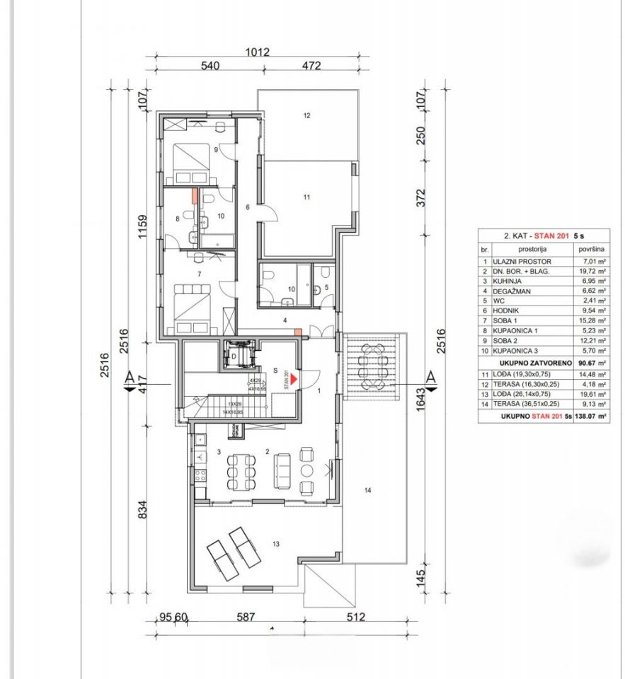
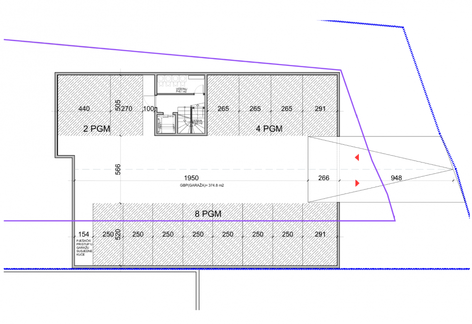
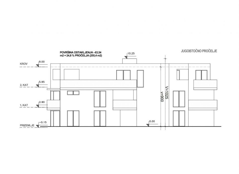
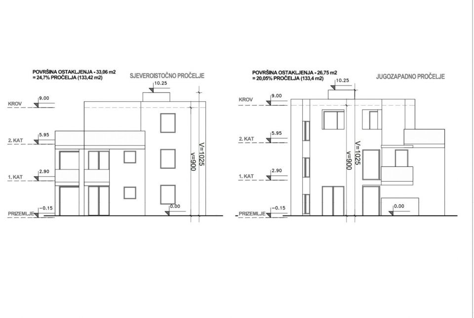
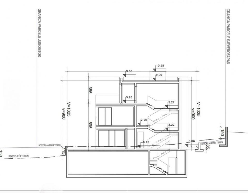
OPATIJA, IČIĆI - stavební pozemek 2800m2 S LOKALNÍM POVOLENÍM!! A s výhledem na moře pro obytný dům - byty / apartmány Pozemek v přírodě se skládá ze 2 pozemků, každý cca 1400m2 a na jeden z těchto pozemků bylo získáno povolení k umístění objektu 1131m2 (BRP) + bazén na druhém pozemku (který má také cca 1400m2). zatím není povolení, ale byla podána žádost o povolení umístění, povolení pro projekt, který je hotový a to samé, co je na prvním pozemku. Povolení k umístění bylo získáno na stavbu, která se skládá (podle projektu na obrázcích): - SKLEP o celkové ploše 381 m2 - garážové stání s parkovacími stáními + prostor pro nádrže + wellness (nebo jiný obsah na přání potenciálního kupce) - PŘÍZEMÍ - celková plocha 250m2 – 3 byty (dva byty 1F+DB a jeden byt 2F+DB) - 1.NP celková plocha 250m2 – 2 byty – (dva byty 3B+DB) - 2.NP celková plocha 250m2 – 1 penthouse (3F+DB) ) Stavební pozemek je vzdálen od moře vzdušnou čarou 700 m, má výhled na moře a jižní orientaci. Konfigurace terénu je zcela rovinatá. Pole se nachází v klidné a tiché poloze a přímo u zpevněné cesty. Veškeré inženýrské sítě na pole. Čistý a uklizený majetek. Pozemek je vyklizený a připravený k výstavbě. Budoucí nemovitost na tomto pozemku by měla výhled na moře i z přízemí, ale z prvního patra by byl panoramatický otevřený výhled na moře, celý Kvarnerský záliv a ostrovy. Stavební pozemek patří právnické osobě (společnosti), která je otevřena pouze pro tento projekt, existuje tedy i možnost odkoupení celé společnosti společně s pozemkem. Tato nemovitost je 700 m od moře vzdušnou čarou nebo 1,6 km autem (cca 4 minuty). Dobrá příležitost pro investory, kteří se zabývají výstavbou bytových domů-bytů-bytů REALITY VE VÝBORNÉ A JEDINEČNÉ LOKALitě S VELKÝM POTENCIÁLEM!!! IČIĆI: Ičići je malé turistické městečko s asi 800 obyvateli, které se nachází na severním Jadranu, v Kvarnerském zálivu. Místo je 5 km od Opatije a 15 km od Rijeky. Nachází se na úpatí hory Učka, která je vysoká 1 401 mil a její prostředí bylo pro svou jedinečnost a přírodní krásy vyhlášeno přírodním parkem. Obyvatelstvo se zabývá především cestovním ruchem a stravovací činností. Díky své výhodné poloze se Ičići během let vyvinulo ve skutečnou turistickou destinaci s četnými nabídkami, takže kromě bohaté nabídky stravování nabízí možnost provozování různých sportů, výletů, nočních výletů. Z Ičiće je nádherný výhled na dva největší chorvatské ostrovy Krk a Cres, které lze navštívit i lodí. Toto místo je známé především díky skvěle vybavené ACI Marina. Díky rozmanitosti ubytovacích (hotely, apartmány, obytné vozy) a sportovních a rekreačních zařízení (tenisové kurty, vodní sporty, plachtění...) zde našel prostor pro rozvoj námořní turistika. Cestou z Ičiće do Učky narazíte na malé středověké městečko Veprinac, které má vlastní právo a sahá až do roku 1500. Nedaleko se nachází parkoviště Ičići, které se nachází v blízkosti pláže, nedaleko tenisových kurtů. Hlavní turistickou atrakcí Ičiće je rozhodně pláž. Nachází se v samém centru města a skládá se z betonové a písčité části. Každý rok se investuje do zkrášlování pláže, a proto pláž rok co rok získává modrou vlajku. Vstup je zdarma a dostupný pro každého. Pláž je z jedné strany ohraničena ACI Marina, na druhé straně je menší přístav, který existuje již od dob města Ičići a který se rozvíjel souběžně s městem. Tento přístav přijímá menší lodě a připomíná, že Ičići je přímořské místo. Za zmínku stojí, že Ičići prochází slavná Lungomare, pobřežní promenáda postavená rakouským císařem Františkem Josefem I. v roce 1885. Tato krásně zdobená pobřežní promenáda je dlouhá 12 km a táhne se od Voloski do Lovranu a Ičići je téměř v polovině cesty. V noci je decentně osvětlená, takže jsou vytvořeny podmínky pro romantické procházky. Město Ičići je spojeno s ostatními městy meziměstskými a městskými autobusy. Takzvané „Slavnosti rybářů“ pořádané v letních měsících jsou známé zejména v přímořských městech. Ičići má také své festivaly, o kterých jsou místní i turisté informováni několik dní předem prostřednictvím četných plakátů. OPATIJA: Opatija, krásné pobřežní město na pobřeží Jaderského moře, je známou turistickou destinací pro turisty z celého světa. Město je obklopeno krásnou přírodou, na úpatí hory Učka. Nemovitosti v Opatiji nabízí neocenitelný výhled na moře a okolní ostrovy Krk a Cres. Opatija je obklopena půvabnými městečky se starými domy umístěnými v úzkých uličkách bohatých na historii. Ulice města Opatija jsou tvořeny nemovitostmi, které vynikají svou specifickou architekturou a vilami, které pocházejí z období Habsburků. Velký výběr pláží, křišťálově čisté moře a různé turistické služby jsou klíčovými faktory, které dělají z Opatije perfektní turistickou destinaci uznávanou sousedními zeměmi jako vynikající investiční volbu. Ceny nemovitostí v této oblasti rostou, obsazenost pronájmů je výborná, což má za následek návratnost investice 5 % až 10 % a přilákání zahraničních investorů.
U všech našich nabídek jsou ceny nemovitostí identické jako při koupi přímo u agentury/developera v Chorvatsku, a to díky tomu, že jsme oficiální zastoupení těchto kanceláří na Českém, Slovenském, Německém a Rakouském trhu. A to bez dodatečných navýšení za služby v českém jazyce (mimo překladů smluv ověřených notářem).
Vážení klienti, prohlídka nemovitostí, sdělení polohy a další podrobné informace je možné pouze s podepsanou smlouvou o zastoupení, která je základem pro další akce jako je nákup nemovitosti. Vše je dle Zákona o zprostředkování při koupi nemovitostí. Kupující platí zákonnou provizi za zastoupení ve výši 3 % (+ DPH) z dohodnuté ceny, a to pouze v případě koupě nemovitosti. V případě, že se koupě neuskuteční, smlouva Vás k ničemu nezavazuje, a ruší se. V případě vážného zájmu o nemovitost Vám smlouvu zašleme na požádání.
Odpovíme Vám do 24 hodin.
Nabízíme pouze prověřené reality.
Ručíme za kvalitní servis.
Pomůžeme zajistit ubytování při prohlídkách.