OPATIJA, IČIĆI - pozemek se stavebním povolením pro luxusní budovu, 5 apartmánů a panoramatickým výhledem na moře
| č. ev | DN-40704 |
| Typ nabídky | Prodej |
| Kategorie | Stavební pozemky |
| Okresy | Primorsko-goranska |
| Obec, část obce | Opatija - Okolica |
| Cena | 600 000 € |
| Cena za m2 | 665 €/m² |
| Plocha celkem | 902 m² |
| Vzdálenost od moře | 900 m |
| Elektřina | |
| Voda | |
| Odpady |
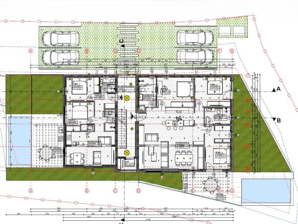
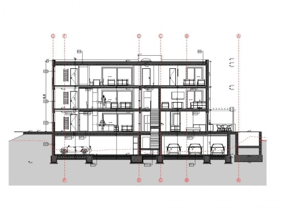
OPATIJA, IČIĆI – pozemek se stavebním povolením pro luxusní budovu, 5 apartmánů a panoramatickým výhledem na moře V atraktivní mikrolokaci v Ičići, pouhé 3 minuty jízdy nad pláží, je k dispozici stavební pozemek s vydaným povolením pro výstavbu moderního bytového domu s celkem pěti apartmány, podzemní garáží a dvěma bazény. Celkový projekt se vyznačuje funkčními a tržně atraktivními dispozicemi a panoramatickým výhledem na moře ze všech jednotek. Pozemek má pravidelný, téměř čtvercový tvar a rovinatou konfiguraci, což výrazně usnadňuje výstavbu. Umístění budovy zajišťuje zcela otevřený výhled na moře, protože svažitý terén se nachází bezprostředně pod pozemkem – bez nutnosti vysokých opěrných zdí nebo složitých zemních prací. Projekt nabízí: - Podzemní garáž s úložnými prostory a parkovacími místy, - Dva apartmány v přízemí, každý s vlastním bazénem a zahradou, - Dva apartmány v prvním patře, - Exkluzivní penthouse v celém horním patře. - Všechny apartmány mají optimální půdorysy, přizpůsobené jak pro kvalitní bydlení, tak i pro pronájem nebo další prodej. Každá terasa nabízí ničím nerušený výhled na moře. Pozemek se prodává s platným stavebním povolením a kompletní projektovou dokumentací, což umožňuje budoucímu investorovi okamžitě zahájit práce bez administrativních průtahů. Mikrolokace: Nachází se v klidné, zastavěné ulici s kvalitní čtvrtí, pouhé 3 minuty od moře a 8 minut jízdy autem do centra Opatije. Pozemek se nachází téměř na okraji stavební zóny, což zaručuje další úroveň klidu, soukromí a přírodního prostředí - zeleň na jedné straně, moře na druhé. Ideální pro investory, developery nebo soukromé kupce, kteří chtějí rozvíjet atraktivní projekt v jedné z nejvyhledávanějších destinací na chorvatském pobřeží - Opatiji. Pro domluvení prohlídky nemovitosti volejte s důvěrou makléře
U všech našich nabídek jsou ceny nemovitostí identické jako při koupi přímo u agentury/developera v Chorvatsku, a to díky tomu, že jsme oficiální zastoupení těchto kanceláří na Českém, Slovenském, Německém a Rakouském trhu. A to bez dodatečných navýšení za služby v českém jazyce (mimo překladů smluv ověřených notářem).
Vážení klienti, prohlídka nemovitostí, sdělení polohy a další podrobné informace je možné pouze s podepsanou smlouvou o zastoupení, která je základem pro další akce jako je nákup nemovitosti. Vše je dle Zákona o zprostředkování při koupi nemovitostí. Kupující platí zákonnou provizi za zastoupení ve výši 3 % (+ DPH) z dohodnuté ceny, a to pouze v případě koupě nemovitosti. V případě, že se koupě neuskuteční, smlouva Vás k ničemu nezavazuje, a ruší se. V případě vážného zájmu o nemovitost Vám smlouvu zašleme na požádání.
Odpovíme Vám do 24 hodin.
Nabízíme pouze prověřené reality.
Ručíme za kvalitní servis.
Pomůžeme zajistit ubytování při prohlídkách.