OPATIJA, IČIĆI - pozemek pro vilu se stavebním povolením 300m2 v blízkosti pláže a Opatije
| č. ev | DN-25359 |
| Typ nabídky | Prodej |
| Kategorie | Stavební pozemky |
| Okresy | Primorsko-goranska |
| Obec, část obce | Opatija - Okolica |
| Cena | 300 000 € |
| Cena za m2 | 219 €/m² |
| Plocha celkem | 1 368 m² |
| Vzdálenost od moře | 1 800 m |
| Elektřina | |
| Voda | |
| Odpady |
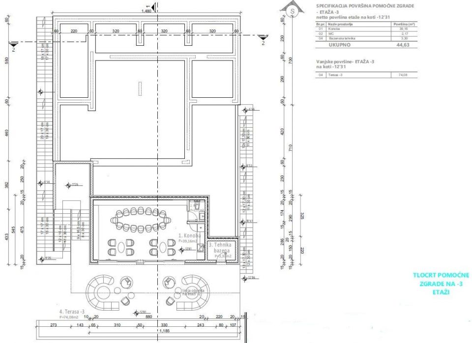
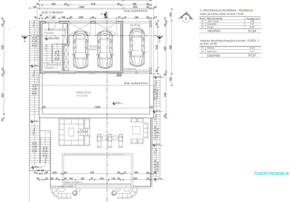
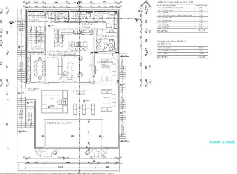
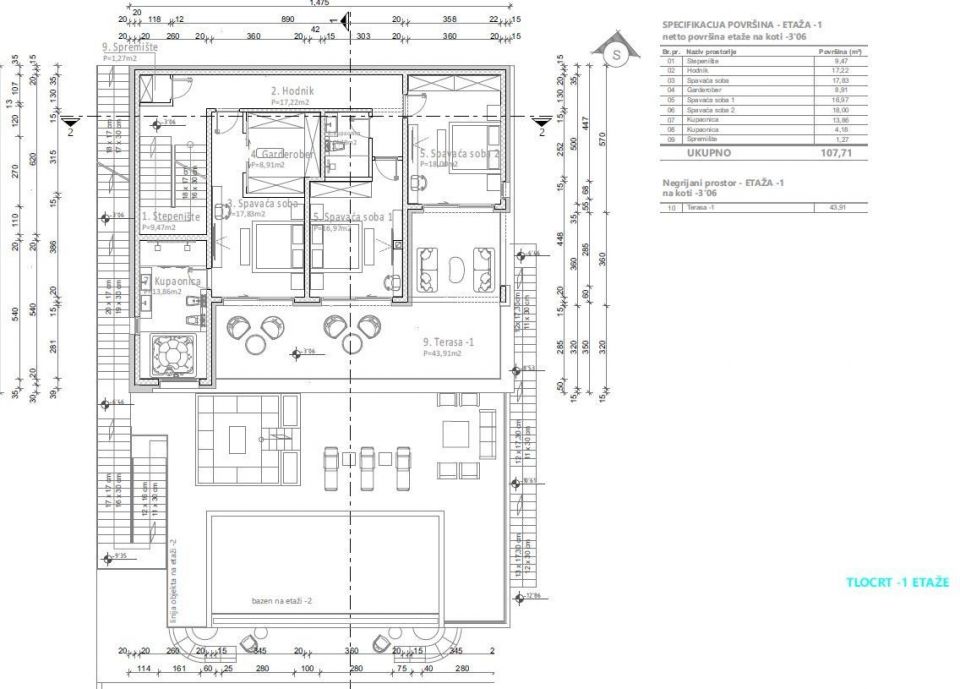
OPATIJA, IČIĆI - pozemek pro vilu se stavebním povolením 300m2 v blízkosti pláže a Opatije V nabídce DUX vyzdvihujeme krásný pozemek u Opatije se stavebním povolením na vilu 300m2. Stavební pozemek se nachází mírně do kopce nad pláží Ičići, jen 3 minuty jízdy od pláže na místo. Stavební pozemek je o velikosti 1386 m2 a je vydáno stavební povolení na vilu o 3 podlažích s čistou obytnou plochou 287,75 m2 a hrubou plochou 363,31 m2. Vstup do plánované vily je z horní strany, protože terén konfigurace je z kopce, takže vstup je v přízemí, - dále v patře -1 a patře -2 + suterén. Dům se skládá z: Vstup - Přízemí, chodba 75m2 Patro - 1 - 3 ložnice, koupelny + terasa 135m2 Patro - 2 - open space obývací pokoj 154m2 + bazén a prostředí 65m2. Suterén s tavernou a vybavením bazénu 45m2 Poloha budoucího domu je ideální pro vilu, kvalitní a klidné prostředí, luxusní domy v sousedství, obklopené zelení Učka a KRÁSNÝM PŘÍMÝM VÝHLEDEM NA MOŘE a celý Kvarner. Kolem pozemku je zelený pás. Z kopce k moři to trvá 10 minut chůze, do kopce 15 minut. Cesta na pláž trvá 3 minuty a do centra Opatije je to pouhých 8 minut autem. Projekt byl pojat velmi exkluzivně, pro kvalitní rezidenční využití s kvalitními materiály. K pozemku je elektřina, voda a výborná cesta. Stavba může začít zítra!
U všech našich nabídek jsou ceny nemovitostí identické jako při koupi přímo u agentury/developera v Chorvatsku, a to díky tomu, že jsme oficiální zastoupení těchto kanceláří na Českém, Slovenském, Německém a Rakouském trhu. A to bez dodatečných navýšení za služby v českém jazyce (mimo překladů smluv ověřených notářem).
Vážení klienti, prohlídka nemovitostí, sdělení polohy a další podrobné informace je možné pouze s podepsanou smlouvou o zastoupení, která je základem pro další akce jako je nákup nemovitosti. Vše je dle Zákona o zprostředkování při koupi nemovitostí. Kupující platí zákonnou provizi za zastoupení ve výši 3 % (+ DPH) z dohodnuté ceny, a to pouze v případě koupě nemovitosti. V případě, že se koupě neuskuteční, smlouva Vás k ničemu nezavazuje, a ruší se. V případě vážného zájmu o nemovitost Vám smlouvu zašleme na požádání.
Odpovíme Vám do 24 hodin.
Nabízíme pouze prověřené reality.
Ručíme za kvalitní servis.
Pomůžeme zajistit ubytování při prohlídkách.