OPATIJA, CENTRUM - pozemek 921m2, v centru Opatije se stavebním povolením na vilu s bazénem, panoramatický výhled na moře
| č. ev | DN-24515 |
| Typ nabídky | Prodej |
| Kategorie | Stavební pozemky |
| Okresy | Primorsko-goranska |
| Obec, část obce | Opatija |
| Cena | 1 000 000 € |
| Cena za m2 | 1 085 €/m² |
| Plocha celkem | 921 m² |
| Vzdálenost od moře | 800 m |
| Elektřina | |
| Voda | |
| Odpady |
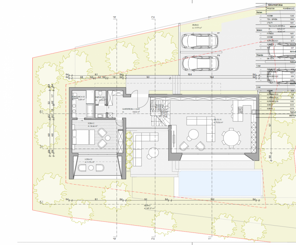
OPATIJA, CENTRUM - pozemek 921m2, v centru Opatije se stavebním povolením na vilu s bazénem, panoramatický výhled na moře Z nabídky Dux vyzdvihujeme unikátní pozemek se stavebním povolením na stavbu vily s bazénem 399 m2 obytné plochy, přímo nad centrem Opatije. Má neuvěřitelný panoramatický výhled na moře. Stavební pozemek se nachází u státní silnice a má fantastický přístup. Projekt vily je moderního stylu s nekonečným bazénem a je důležité zdůraznit, že pozemek se nachází v exkluzivní osadě nad centrem Opatije. Voda, elektřina a kanalizace k pozemku. Vzduchová linka k moři je 450 metrů. Konfigurace terénu je velmi mírně do kopce, bez větších výkopů. Vlastnictví 1/1 bez věcného břemene. Zaručený výhled a soukromí.
U všech našich nabídek jsou ceny nemovitostí identické jako při koupi přímo u agentury/developera v Chorvatsku, a to díky tomu, že jsme oficiální zastoupení těchto kanceláří na Českém, Slovenském, Německém a Rakouském trhu. A to bez dodatečných navýšení za služby v českém jazyce (mimo překladů smluv ověřených notářem).
Vážení klienti, prohlídka nemovitostí, sdělení polohy a další podrobné informace je možné pouze s podepsanou smlouvou o zastoupení, která je základem pro další akce jako je nákup nemovitosti. Vše je dle Zákona o zprostředkování při koupi nemovitostí. Kupující platí zákonnou provizi za zastoupení ve výši 3 % (+ DPH) z dohodnuté ceny, a to pouze v případě koupě nemovitosti. V případě, že se koupě neuskuteční, smlouva Vás k ničemu nezavazuje, a ruší se. V případě vážného zájmu o nemovitost Vám smlouvu zašleme na požádání.
Odpovíme Vám do 24 hodin.
Nabízíme pouze prověřené reality.
Ručíme za kvalitní servis.
Pomůžeme zajistit ubytování při prohlídkách.