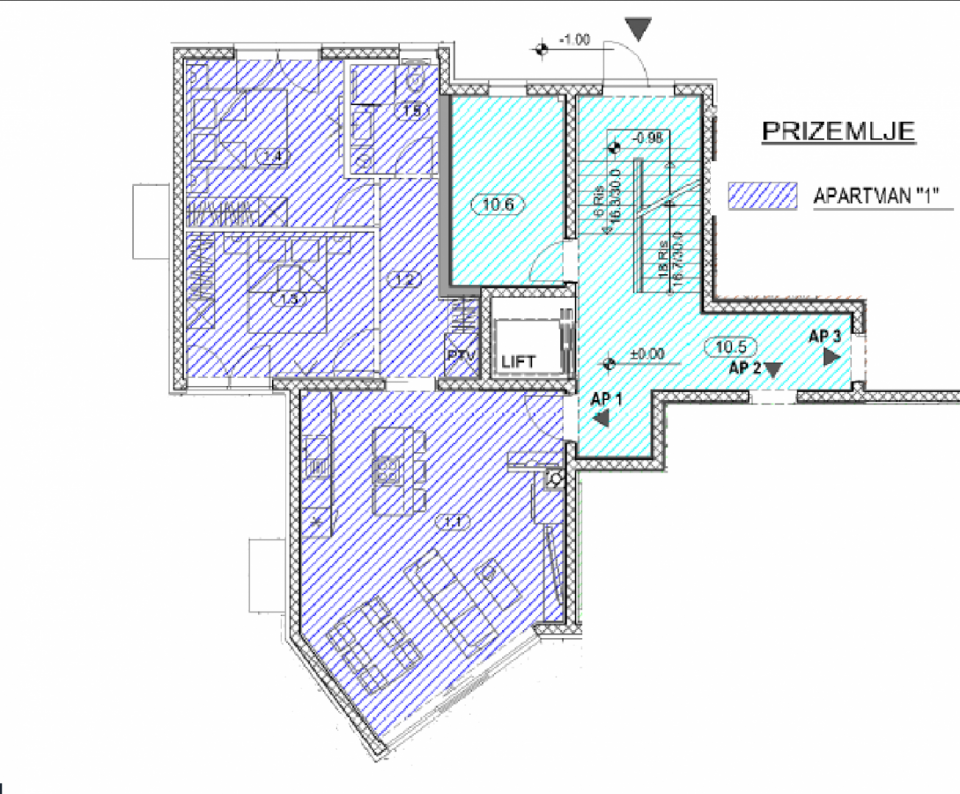
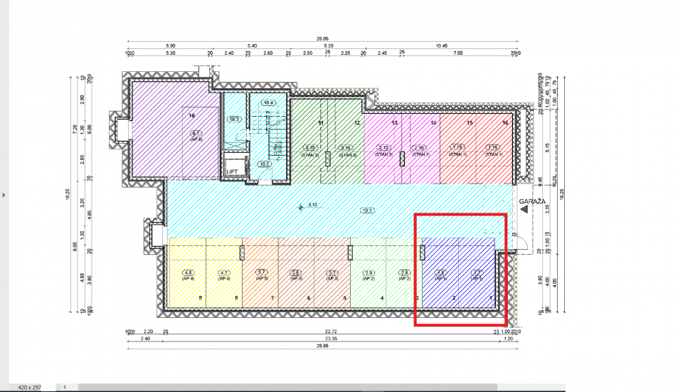
OPATIJA, CENTRUM - novostavba apartmánu 65,02 m2 s panoramatickým výhledem na moře + prostředí 91,54 m2 - APARTMÁN 1
| č. ev | DN-21975 |
| Typ nabídky | Prodej |
| Kategorie | Byty |
| Okresy | Primorsko-goranska |
| Obec, část obce | Opatija |
| Plocha celkem | 65 m² |
| Plocha bydlení (bytu) | 65 m² |
| Zastavěná plocha a nádvoří (dvůr) | 91 m² |
| Celková zastavěná plocha | 91 m² |
| Elektřina | |
| Voda | |
| Odpady | |
| Klimatizace |
OPATIJA, CENTRUM - nově postavený apartmán 65,02 m2 s panoramatickým výhledem na moře + okolí 91,54 m2 - APARTMÁN 1 Byt se skládá z: Předsíň Kuchyně / jídelna / obývací pokoj Koupelna Pokoj 1 Pokoj 2 Byt se nachází v tiché a tiché lokalitě, přesto v bezprostřední blízkosti veškeré potřebné občanské vybavenosti pro kvalitní život. Byt je orientován na jih s velkými prosklenými stěnami ve všech místnostech na jižní stranu, takže z těchto místností je panoramatický výhled na celý Kvarnerský záliv. Byt sestává z velkého obývacího pokoje, který je koncipován jako prostorný otevřený prostor se vstupem na terasu, kuchyně, 2 ložnic, 1 koupelny a chodby. Budova, ve které se byt nachází, je kvalitně postavená a luxusně vybavená, veškeré instalované materiály, podlahové a stěnové krytiny jsou na nejvyšší úrovni. - fasádní kamenná vlna o tloušťce 10 cm - podlahové vytápění - tepelná čerpadla - kvalitní hliníkové tesařské práce. Budova, ve které se byt nachází, se skládá z celkem 9 bytů. V domě je výtah, k bytu náleží 2 parkovací stání v garáži (Parkovací stání 1 - 12,37m2 a Parkovací stání 2 - 11,98m2 = celkem 24,35m2). Čistý a uklizený majetek. Určitě krásná nemovitost pro luxusní rodinný život, ale vhodná i jako investice v podobě elitní turistiky. Tato nemovitost je vzdálena 450 m od moře a pláže vzdušnou čarou nebo 1,4 km autem (asi 3 minuty). JEDINEČNÁ NEMOVITOST, KTERÁ ROZHODNĚ STOJÍ ZA VAŠI POZORNOST VE SKVĚLÉ MÍSTĚ!!! Opatija: Opatija, krásné pobřežní město na pobřeží Jaderského moře, je známým turistickým cílem turistů z celého světa. Město je obklopeno krásnou přírodou, na úpatí hory Učka. Nemovitosti v Opatiji nabízí neocenitelný výhled na moře a okolní ostrovy Krk a Cres. Opatija je obklopena půvabnými městečky se starými domy umístěnými v úzkých uličkách bohatých na historii. Ulice města Opatija jsou tvořeny nemovitostmi, které vynikají svou specifickou architekturou a vilami, které pocházejí z období Habsburků. Velký výběr pláží, křišťálově čisté moře a různé turistické služby jsou klíčovými faktory, které dělají z Opatije perfektní turistickou destinaci uznávanou sousedními zeměmi jako vynikající investiční volbu.
U všech našich nabídek jsou ceny nemovitostí identické jako při koupi přímo u agentury/developera v Chorvatsku, a to díky tomu, že jsme oficiální zastoupení těchto kanceláří na Českém, Slovenském, Německém a Rakouském trhu. A to bez dodatečných navýšení za služby v českém jazyce (mimo překladů smluv ověřených notářem).
Vážení klienti, prohlídka nemovitostí, sdělení polohy a další podrobné informace je možné pouze s podepsanou smlouvou o zastoupení, která je základem pro další akce jako je nákup nemovitosti. Vše je dle Zákona o zprostředkování při koupi nemovitostí. Kupující platí zákonnou provizi za zastoupení ve výši 3 % (+ DPH) z dohodnuté ceny, a to pouze v případě koupě nemovitosti. V případě, že se koupě neuskuteční, smlouva Vás k ničemu nezavazuje, a ruší se. V případě vážného zájmu o nemovitost Vám smlouvu zašleme na požádání.
Odpovíme Vám do 24 hodin.
Nabízíme pouze prověřené reality.
Ručíme za kvalitní servis.
Pomůžeme zajistit ubytování při prohlídkách.