OPATIJA, CENTRUM - nově postavený apartmán 156,85 m2 s panoramatickým výhledem na moře - APARTMÁN 2
| č. ev | DN-21967 |
| Typ nabídky | Prodej |
| Kategorie | Byty |
| Okresy | Primorsko-goranska |
| Obec, část obce | Opatija |
| Plocha celkem | 156 m² |
| Plocha bydlení (bytu) | 156 m² |
| Elektřina | |
| Voda | |
| Odpady | |
| Klimatizace |
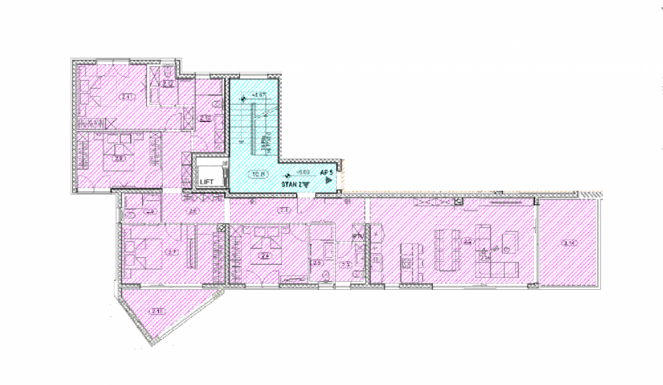
OPATIJA, CENTAR - novostavba apartmán 156,85 m2 s panoramatickým výhledem na moře - APARTMÁN 2 Apartmán se skládá z: Vstupní chodba Kuchyň / jídelna / obývací pokoj Koupelna 1 Koupelna 2 Koupelna 3 Koupelna 4 Koupelna 5 Pokoj 1 Pokoj 2 Pokoj 3 Pokoj 4 Krytý balkon Lodžie Stan se nachází v klidné a tiché lokalitě, přesto v bezprostřední blízkosti veškeré občanské vybavenosti pro kvalitní život. Byt je orientován na jih s velkými prosklenými stěnami ve všech místnostech na jižní stranu, takže z těchto místností je panoramatický výhled na celý Kvarnerský záliv. Byt sestává z velkého obývacího pokoje, který je řešený jako prostorný otevřený prostor se vstupem na terasu, kuchyně, 4 ložnic, 4 koupelen, toalety pro hosty, šatny a předsíně. Budova, ve které se byt nachází, je kvalitně postavená a luxusně vybavená, veškeré instalované materiály, podlahové a stěnové krytiny jsou na nejvyšší úrovni. - fasádní kamenná vlna o tloušťce 10 cm - podlahové vytápění - tepelná čerpadla - kvalitní hliníkové tesařské práce. Budova, ve které se byt nachází, se skládá z celkem 9 bytů. V domě je výtah, k bytu jsou 2 parkovací stání v garáži a 1 venkovní stání (Garážové stání 13 - 12,61 m2 a Garážové stání 14 - 12,56 m2 = celkem 25,17 m2, a Venkovní stání P2 - 12,50 m2) . Čistý a uklizený majetek. Určitě krásná nemovitost pro luxusní rodinný život, ale vhodná i jako investice v podobě elitní turistiky. Tato nemovitost je vzdálena 450 m od moře a pláže vzdušnou čarou nebo 1,4 km autem (asi 3 minuty). JEDINEČNÁ NEMOVITOST, KTERÁ ROZHODNĚ STOJÍ ZA VAŠI POZORNOST VE SKVĚLÉ MÍSTĚ!!! Opatija: Opatija, krásné pobřežní město na pobřeží Jaderského moře, je známým turistickým cílem turistů z celého světa. Město je obklopeno krásnou přírodou, na úpatí hory Učka. Nemovitosti v Opatiji nabízí neocenitelný výhled na moře a okolní ostrovy Krk a Cres. Opatija je obklopena půvabnými městečky se starými domy umístěnými v úzkých uličkách bohatých na historii. Ulice města Opatija jsou tvořeny nemovitostmi, které vynikají svou specifickou architekturou a vilami, které pocházejí z období Habsburků. Velký výběr pláží, křišťálově čisté moře a různé turistické služby jsou klíčovými faktory, které dělají z Opatije perfektní turistickou destinaci uznávanou sousedními zeměmi jako vynikající investiční volbu.
U všech našich nabídek jsou ceny nemovitostí identické jako při koupi přímo u agentury/developera v Chorvatsku, a to díky tomu, že jsme oficiální zastoupení těchto kanceláří na Českém, Slovenském, Německém a Rakouském trhu. A to bez dodatečných navýšení za služby v českém jazyce (mimo překladů smluv ověřených notářem).
Vážení klienti, prohlídka nemovitostí, sdělení polohy a další podrobné informace je možné pouze s podepsanou smlouvou o zastoupení, která je základem pro další akce jako je nákup nemovitosti. Vše je dle Zákona o zprostředkování při koupi nemovitostí. Kupující platí zákonnou provizi za zastoupení ve výši 3 % (+ DPH) z dohodnuté ceny, a to pouze v případě koupě nemovitosti. V případě, že se koupě neuskuteční, smlouva Vás k ničemu nezavazuje, a ruší se. V případě vážného zájmu o nemovitost Vám smlouvu zašleme na požádání.
Odpovíme Vám do 24 hodin.
Nabízíme pouze prověřené reality.
Ručíme za kvalitní servis.
Pomůžeme zajistit ubytování při prohlídkách.