OPATIJA, CENTRUM - dvoupatrový penthouse 543 m2 s panoramatickým výhledem na moře a střešní terasou S2
| č. ev | DN-32677 |
| Typ nabídky | Prodej |
| Kategorie | Byty |
| Okresy | Primorsko-goranska |
| Obec, část obce | Opatija |
| Cena | 2 550 000 € |
| Plocha celkem | 543 m² |
| Plocha bydlení (bytu) | 543 m² |
| Elektřina | |
| Voda | |
| Odpady | |
| Klimatizace | |
| Topení | ano |
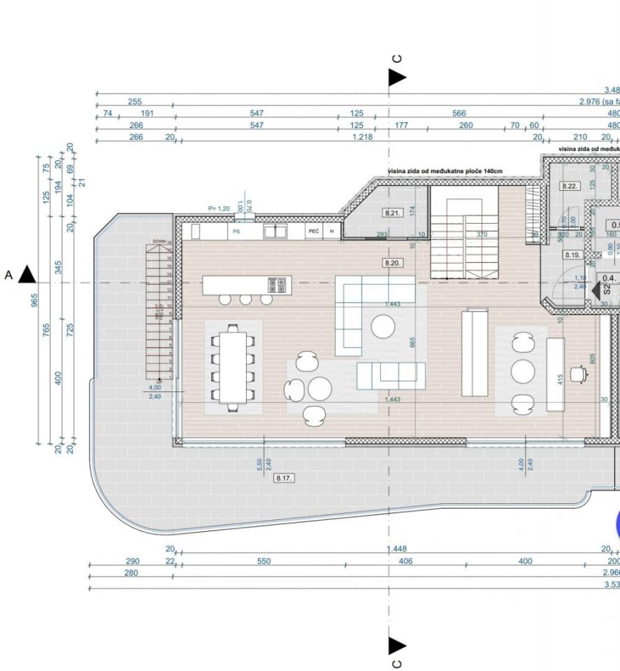
OPATIJA, CENTRUM - dvoupatrový penthouse 543m2 s panoramatickým výhledem na moře a střešní terasou S2 Byt se skládá ze 3 chodeb, schodiště, obývacího pokoje, kuchyně, 4 ložnic, 4 koupelen, komory, balkonu a střešní terasy (219m2). Byt je orientován na jih s krásným výhledem, který je doslova panoramatický na celý Kvarnerský záliv a všechny ostrovy!! Budova, ve které se byt nachází, je kvalitně postavená a luxusně vybavená, veškeré instalované materiály, podlahové a stěnové krytiny jsou na nejvyšší úrovni. - fasádní kamenná vlna o tloušťce 10 cm - podlahové vytápění - tepelná čerpadla - kvalitní hliníkové tesařské práce. Určitě krásná nemovitost pro luxusní rodinný život, ale vhodná i jako investice v podobě elitní turistiky. Čistý a uklizený majetek. Tato nemovitost je 420 m od moře vzdušnou čarou nebo 870 m autem (cca 1 min.) a cca 5 min. JEDINEČNÁ NEMOVITOST, KTERÁ ROZHODNĚ STOJÍ ZA VAŠI POZORNOST VE SKVĚLÉ MÍSTĚ!!! Opatija: Opatija, krásné pobřežní město na pobřeží Jaderského moře, je známým turistickým cílem turistů z celého světa. Město je obklopeno krásnou přírodou, na úpatí hory Učka. Nemovitosti v Opatiji nabízí neocenitelný výhled na moře a okolní ostrovy Krk a Cres. Opatija je obklopena půvabnými městečky se starými domy umístěnými v úzkých uličkách bohatých na historii. Ulice města Opatija jsou tvořeny nemovitostmi, které vynikají svou specifickou architekturou a vilami, které pocházejí z období Habsburků. Velký výběr pláží, křišťálově čisté moře a různé turistické služby jsou klíčovými faktory, které dělají z Opatije perfektní turistickou destinaci uznávanou sousedními zeměmi jako vynikající investiční volbu. Ceny nemovitostí v této oblasti rostou, obsazenost pronájmů je výborná, což má za následek návratnost investice 5 % až 10 % a přilákání zahraničních investorů.
U všech našich nabídek jsou ceny nemovitostí identické jako při koupi přímo u agentury/developera v Chorvatsku, a to díky tomu, že jsme oficiální zastoupení těchto kanceláří na Českém, Slovenském, Německém a Rakouském trhu. A to bez dodatečných navýšení za služby v českém jazyce (mimo překladů smluv ověřených notářem).
Vážení klienti, prohlídka nemovitostí, sdělení polohy a další podrobné informace je možné pouze s podepsanou smlouvou o zastoupení, která je základem pro další akce jako je nákup nemovitosti. Vše je dle Zákona o zprostředkování při koupi nemovitostí. Kupující platí zákonnou provizi za zastoupení ve výši 3 % (+ DPH) z dohodnuté ceny, a to pouze v případě koupě nemovitosti. V případě, že se koupě neuskuteční, smlouva Vás k ničemu nezavazuje, a ruší se. V případě vážného zájmu o nemovitost Vám smlouvu zašleme na požádání.
Odpovíme Vám do 24 hodin.
Nabízíme pouze prověřené reality.
Ručíme za kvalitní servis.
Pomůžeme zajistit ubytování při prohlídkách.