MATULJI, KASTAV, RUBEŠI - stavební pozemek 1900m2 s rozestavěnou budovou 600m2 se 3 prostornými apartmány s panoramatickým výhledem na moře a podzemní garáží
| č. ev | DN-34671 |
| Typ nabídky | Prodej |
| Kategorie | Stavební pozemky |
| Okresy | Primorsko-goranska |
| Obec, část obce | Kastav |
| Cena | 710 000 € |
| Cena za m2 | 373 €/m² |
| Plocha celkem | 1 900 m² |
| Zastavěná plocha a nádvoří (dvůr) | 1 900 m² |
| Celková zastavěná plocha | 1 900 m² |
| Elektřina | |
| Voda | |
| Klimatizace |
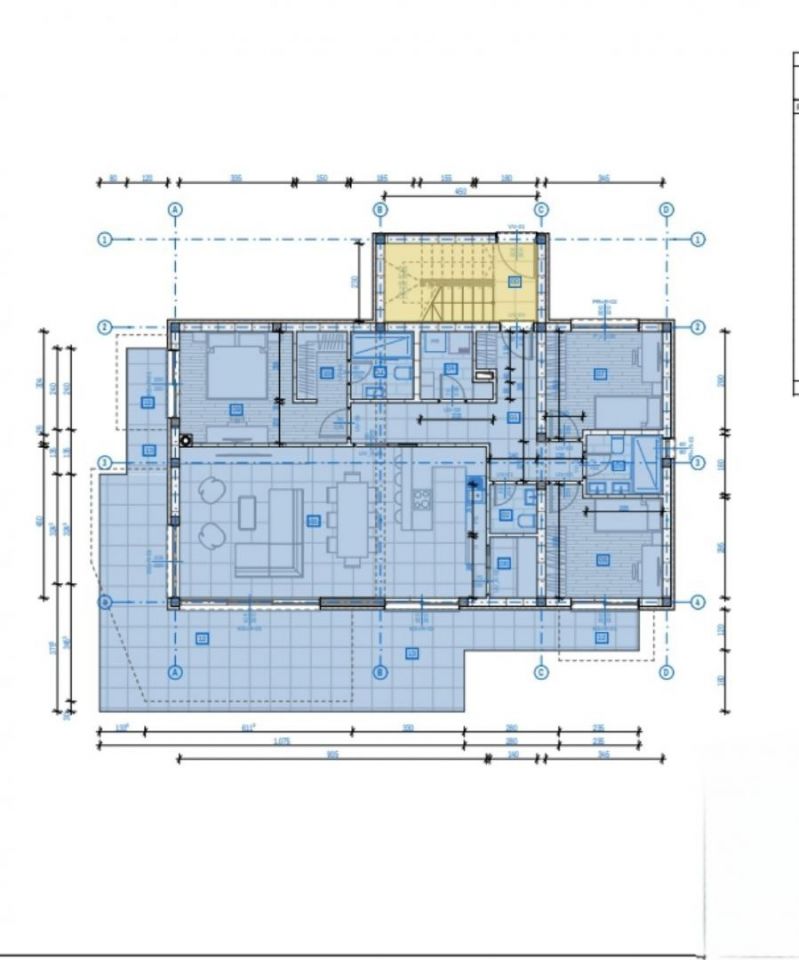
MATULJI, KASTAV, RUBEŠI - stavební pozemek 1900m2 s rozestavěnou budovou 600m2 se 3 prostornými apartmány s panoramatickým výhledem na moře a podzemní garáží Mimořádná příležitost ke koupi rozestavěného objektu se 3 bytovými jednotkami a podzemní garáží na pozemku cca 900m2. Dále k prodeji přilehlý pozemek cca 1000m2 na kterém lze postavit i stejnou stavbu. Budova se skládá ze 3 apartmánů, přičemž každý apartmán má rozlohu 106 m2 a skládá se ze tří ložnic, 2 koupelen, prostorného obývacího pokoje s jídelnou a otevřené kuchyně. Zvláštností každého bytu je prostorný krytý balkon o velikosti 28 m2, který nabízí krásný výhled a ideální místo k odpočinku. Dále ke každému bytu náleží komora 6m2 a jedno parkovací stání v garáži a dvě parkovací stání v exteriérové části vily. Budova je v současné době ve výstavbě, námi poskytnuté snímky jsou příkladného charakteru a poskytují náhled na plánovaný design a kvalitu budovy a bytů. Dobrá příležitost pro investory, kteří se zabývají výstavbou bytových domů-bytů-bytů. Tato nemovitost se nachází 1 km od moře vzdušnou čarou nebo 3,9 km autem (cca 8 minut). NEMOVITOST V KRÁSNÉ LOKALitě S VELKÝM POTENCIÁLEM - PRO SERIOZNÍ INVESTORY!!! KASTAV: Město Kastav s Kastavštinou je synonymem bohaté historie, geografické rozmanitosti, zajímavé architektury a jedinečné turistické nabídky! Nachází se „nad mořem, kanoe soko“, jak říká básník, podobná všem pobřežním městům, přesto jiná; s duší v kamenném hnízdě, dostatečně širokém pro všechny, kteří jsou připraveni zažít ho celý. Stejně jako mnoho měst na rozhraní střední Evropy a Středomoří má Kastav bohatou tradici a rozpoznatelnou identitu. Během své historie byl Kastav správním, hospodářským a kulturním centrem Istrie a Přímoří; byla a zůstává školkou vědomí lidu, takže i když se v okolí začala rozvíjet města mnohem větší než dnes, dokázala si zachovat svou autonomii, jazyk a zvyky.
U všech našich nabídek jsou ceny nemovitostí identické jako při koupi přímo u agentury/developera v Chorvatsku, a to díky tomu, že jsme oficiální zastoupení těchto kanceláří na Českém, Slovenském, Německém a Rakouském trhu. A to bez dodatečných navýšení za služby v českém jazyce (mimo překladů smluv ověřených notářem).
Vážení klienti, prohlídka nemovitostí, sdělení polohy a další podrobné informace je možné pouze s podepsanou smlouvou o zastoupení, která je základem pro další akce jako je nákup nemovitosti. Vše je dle Zákona o zprostředkování při koupi nemovitostí. Kupující platí zákonnou provizi za zastoupení ve výši 3 % (+ DPH) z dohodnuté ceny, a to pouze v případě koupě nemovitosti. V případě, že se koupě neuskuteční, smlouva Vás k ničemu nezavazuje, a ruší se. V případě vážného zájmu o nemovitost Vám smlouvu zašleme na požádání.
Odpovíme Vám do 24 hodin.
Nabízíme pouze prověřené reality.
Ručíme za kvalitní servis.
Pomůžeme zajistit ubytování při prohlídkách.