LABIN, SVETA MARINA - stavební pozemek 500m2 s výhledem na moře a koncepčním projektem
| č. ev | DN-28924 |
| Typ nabídky | Prodej |
| Kategorie | Stavební pozemky |
| Okresy | Istarska |
| Obec, část obce | Raša |
| Cena | 145 000 € |
| Cena za m2 | 290 €/m² |
| Plocha celkem | 500 m² |
| Elektřina | |
| Voda |
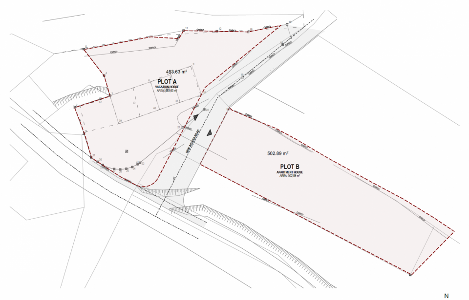
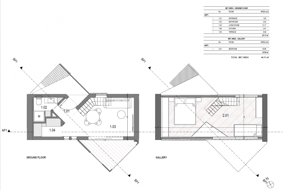
LABIN, SVETA MARINA - stavební pozemek 500m2 s výhledem na moře a koncepční projekt Pozemek má výhled na moře a jižní orientaci. Stavební pozemek v přírodě a dle koncepčního návrhu se skládá ze 2 částí: - část cca 500m2 na které je dle koncepčního návrhu plánována stavba se 3 byty Tato cena platí pouze pro tuto část! - část cca 435 m2 se starým domem, na kterém je plánována rekonstrukce - přístavba stávajícího domu s ideovým projektem vily s bazénem Tuto část lze koupit samostatně, cena samotné části je 195 000 € . K této části 435m2 je nutné dokoupit od Magistrátu dalších 107m2, za které je možnost koupě. Ta část by pak měla celkem 542 m2, což stačí na realizaci koncepčního projektu. Cena za oba díly dohromady je 310 000 €! Konfigurace terénu je mírně svažitá/ zcela rovinatá. Pole se nachází v klidné a tiché poloze a přímo u zpevněné cesty. Veškeré inženýrské sítě na pole. Čistý a uklizený majetek. Pozemek je částečně vyklizený a připravený k výstavbě. Budoucí nemovitost na tomto pozemku by měla výhled na moře i z přízemí, ale z prvního patra by byl panoramatický otevřený výhled na moře. Tato nemovitost je 390 m od moře vzdušnou čarou nebo 700 m autem (cca 1 min.). Dobrá příležitost pro investory, kteří se zabývají výstavbou bytů/domů k pronájmu - dovolená s bazénem, ale i pro ty, kteří by si rádi postavili rodinný dům v klidném, tichém prostředí. NEMOVITOST VE SKVĚLÉ A JEDINEČNÉ LOKALitě S VELKÝM POTENCIÁLEM!!! LABIN Město Labin bylo založeno na 320 metrů vysokém kopci - na místě římského osídlení Albona, jehož jméno bylo poprvé zmíněno v roce 285 našeho letopočtu. V minulosti byl tento klenot známý svou 400 let starou důlní činností, dnes je jedním z kulturních a správních center na Istrii. Půvabné město spojuje kulturní a historické památky a bohatou architekturu při různých kulturních akcích. Staré Město se nachází na kopci, zatímco druhá část města je známá jako Podlabin. Oblast Starého Města je známá jako město umělců, kde jsou četná studia, která můžete vidět, když se projdete jejich uličkami. Kromě toho můžete navštívit Městské muzeum s jeho archeologickou a etnologickou sbírkou a zažít jedinečný a nezapomenutelný zážitek ze vstupu do modelového dolu. Pouhých 5 kilometrů od Labinu je Rabac - nejvýznamnější turistické centrum na východním pobřeží Istrie, které se nachází na úpatí kopce, který ji chrání, a těší se příjemnému středomořskému klimatu. Zdobí ho nádherné okolí, krásné oblázkové pláže a výhled na Kvarnerský záliv. Postupem času se proměnilo ve známé turistické centrum s až 15 hotely a apartmánovými komplexy a několika kempy. Pokud rádi nakouknete do neobvyklé gastronomické nabídky, nezapomeňte ochutnat specialitu specifickou pro oblast Labinština. Sladké vařené donuty - sladké těsto se sýrem v podobě raviol v neobvyklé kombinaci s gulášem jistě představuje nový zážitek.
U všech našich nabídek jsou ceny nemovitostí identické jako při koupi přímo u agentury/developera v Chorvatsku, a to díky tomu, že jsme oficiální zastoupení těchto kanceláří na Českém, Slovenském, Německém a Rakouském trhu. A to bez dodatečných navýšení za služby v českém jazyce (mimo překladů smluv ověřených notářem).
Vážení klienti, prohlídka nemovitostí, sdělení polohy a další podrobné informace je možné pouze s podepsanou smlouvou o zastoupení, která je základem pro další akce jako je nákup nemovitosti. Vše je dle Zákona o zprostředkování při koupi nemovitostí. Kupující platí zákonnou provizi za zastoupení ve výši 3 % (+ DPH) z dohodnuté ceny, a to pouze v případě koupě nemovitosti. V případě, že se koupě neuskuteční, smlouva Vás k ničemu nezavazuje, a ruší se. V případě vážného zájmu o nemovitost Vám smlouvu zašleme na požádání.
Odpovíme Vám do 24 hodin.
Nabízíme pouze prověřené reality.
Ručíme za kvalitní servis.
Pomůžeme zajistit ubytování při prohlídkách.