KVARNER, KOLAVIĆI - Stavební pozemek s výhledem na moře, 751 m2
| č. ev | DN-47020 |
| Typ nabídky | Prodej |
| Kategorie | Stavební pozemky |
| Okresy | Primorsko-goranska |
| Obec, část obce | Opatija |
| Cena | 310 000 € |
| Cena za m2 | 412 €/m² |
| Plocha celkem | 751 m² |
| Vzdálenost od moře | 5 000 m |
| Elektřina | |
| Voda | |
| Klimatizace |
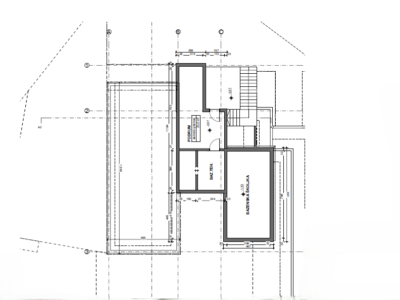
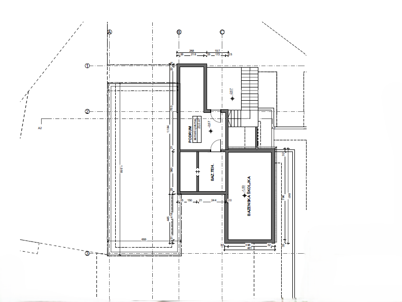
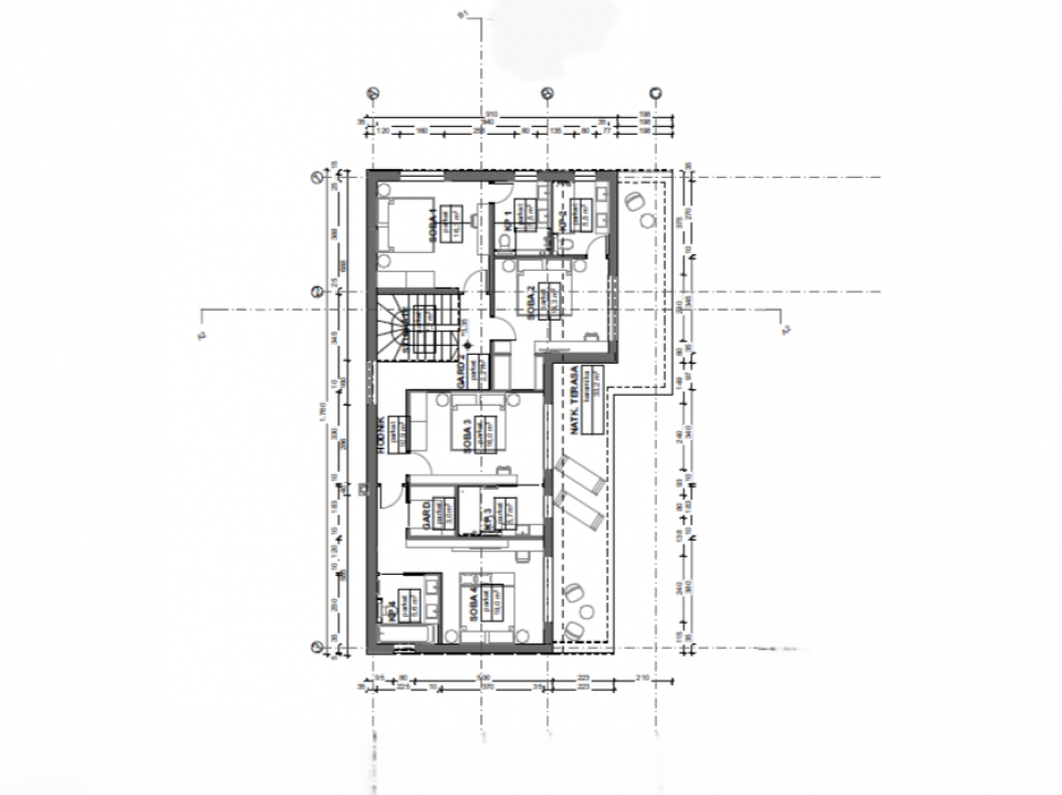
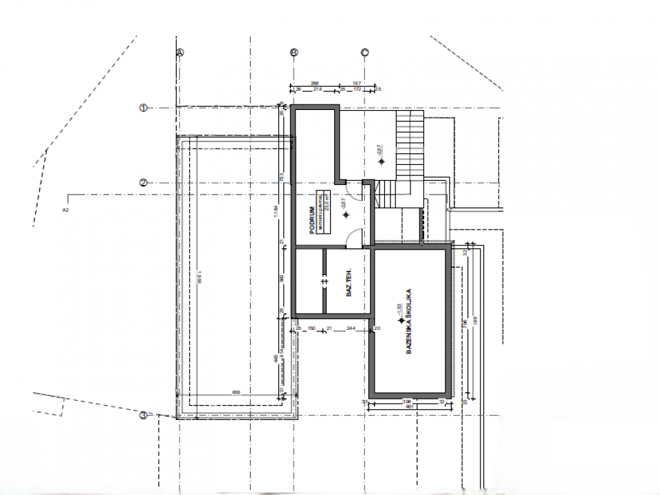
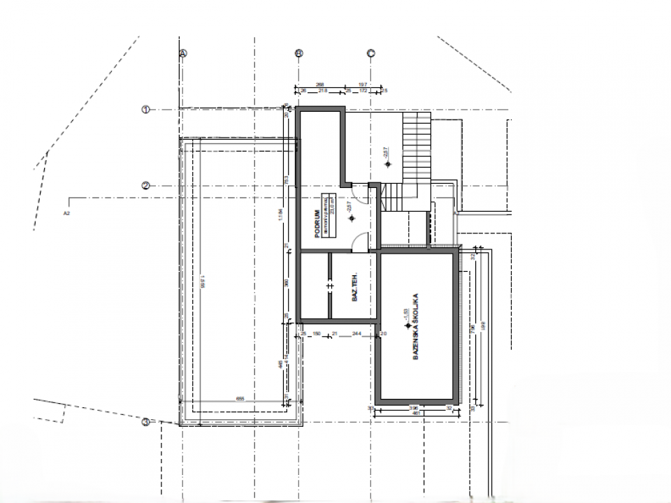
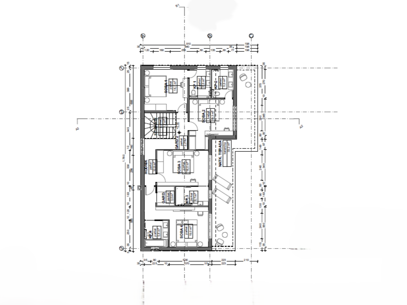
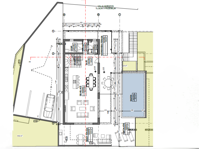
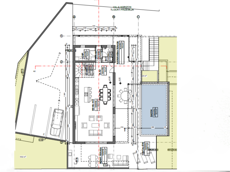
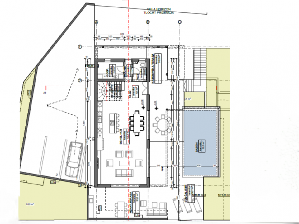
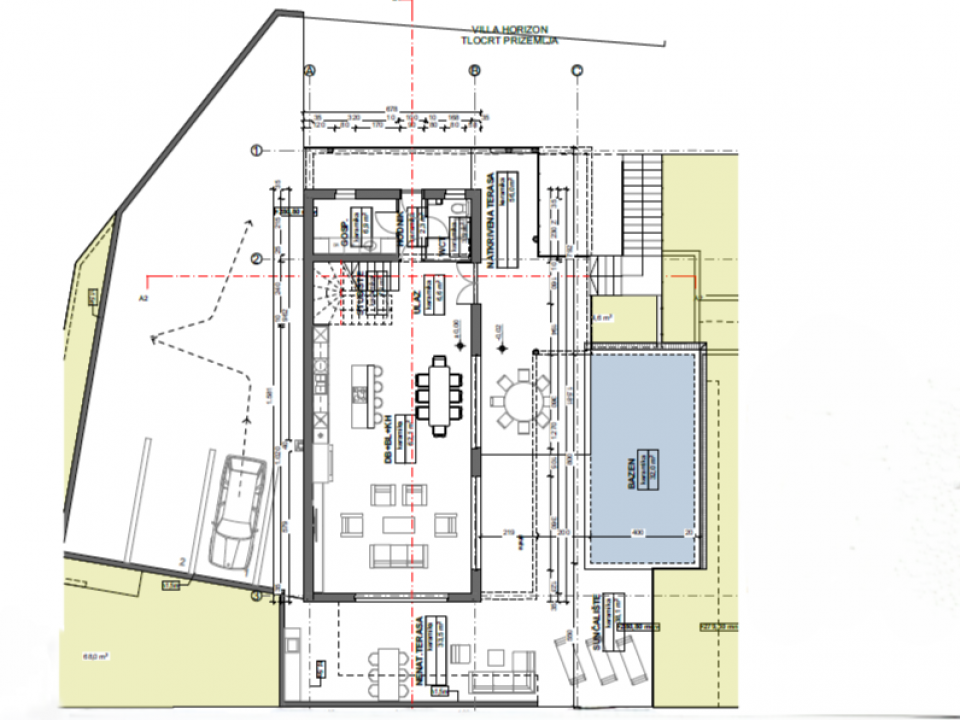
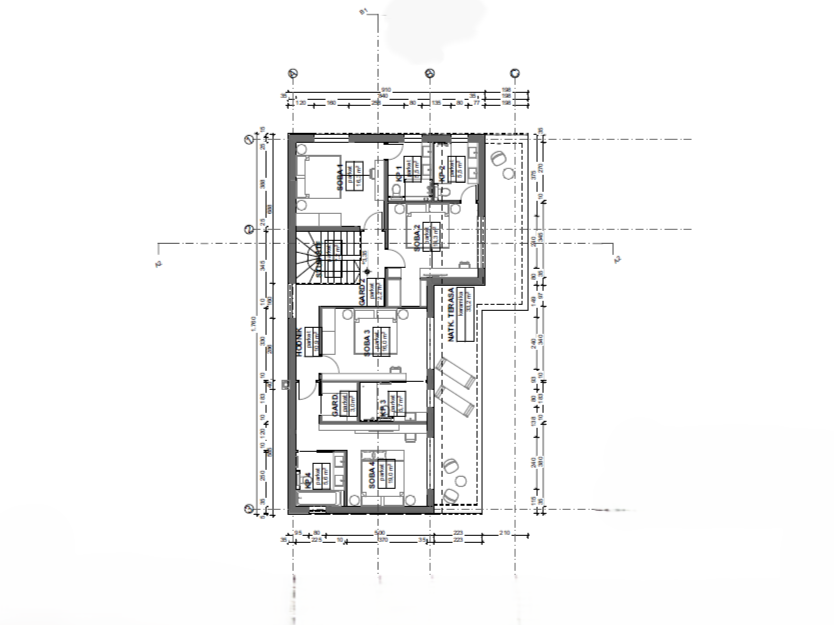
KVARNER, KOLAVIĆI - Stavební pozemek s výhledem na moře, 751m2 DUX Sales nabízí skvělou příležitost! Na prodej je vynikající stavební pozemek s projektem a platným stavebním povolením na luxusní vilu, který se nachází ve výjimečně klidné a atraktivní lokalitě nad Opatií, v osadě Kolavići. Jedná se o exkluzivní mikrolokaci s pouhými asi dvaceti domy, která nabízí soukromí a naprostý klid a zároveň je vzdálena pouze 1 km vzdušnou čarou od centra Opatije (cca 9 km autem). Přístup je zajištěn po hlavní silnici Rijeka - tunel Učka, přičemž se plánuje budoucí dopravní napojení na centrum Opatije. Pozemek o rozloze 751m2 je orientován na jihovýchod a nabízí otevřený, panoramatický výhled na moře, Opatiji, Rijeku a celý Kvarnerský záliv. Mírně svažitý terén umožňuje ideální umístění budovy a maximální využití přirozeného světla. Na pozemku je plánována moderní městská vila s hrubou plochou 242,60 m² uzavřeného prostoru, s dalšími 144,25 m² teras a 32,00 m² nekonečného bazénu. Dům je navržen na třech podlažích (suterén, přízemí a první patro) a splňuje kritéria pro 5* kategorizaci. V přízemí je navržen prostorný koncept otevřeného prostoru obývacího pokoje, kuchyně a jídelny s přímým přístupem na terasy, sluneční terasu a vyhřívaný nekonečný bazén s výhledem na Kvarnerský záliv. Velké prosklené stěny umožňují dostatek světla a téměř úplné propojení interiéru s exteriérem. Na terase je také plánována letní kuchyně se společenskou zónou. V prvním patře se nacházejí čtyři luxusní ložnice, každá s vlastní koupelnou, z nichž tři mají přístup na krytou terasu s panoramatickým výhledem na moře. Suterén je plánován jako skladovací a technický prostor, včetně místnosti pro bazénové vybavení. Dům se nachází v centru pozemku, obklopen zelení, s zabezpečeným parkováním v dolní části pozemku a přímým přístupem z úrovně domu. Veškerá infrastruktura (voda, elektřina, kanalizace, telefon) je již zajištěna a příjezdová cesta je asfaltová. Tato nemovitost představuje na trhu vzácnou příležitost - je ideální pro kupující, kteří hledají luxusní vilu v jedné z nejprestižnějších lokalit na Kvarneru, ale také pro investory, kteří chtějí realizovat luxusní projekt s velkým tržním potenciálem. PŘÍSPĚVKY OBCE BYLY ZAPLACENY A VÝSTAVBA MŮŽE ZAČÍT ZÍTRA. Pro domluvení prohlídky nemovitosti volejte důvěryhodného makléře - konzultace možná v němčině.
U všech našich nabídek jsou ceny nemovitostí identické jako při koupi přímo u agentury/developera v Chorvatsku, a to díky tomu, že jsme oficiální zastoupení těchto kanceláří na Českém, Slovenském, Německém a Rakouském trhu. A to bez dodatečných navýšení za služby v českém jazyce (mimo překladů smluv ověřených notářem).
Vážení klienti, prohlídka nemovitostí, sdělení polohy a další podrobné informace je možné pouze s podepsanou smlouvou o zastoupení, která je základem pro další akce jako je nákup nemovitosti. Vše je dle Zákona o zprostředkování při koupi nemovitostí. Kupující platí zákonnou provizi za zastoupení ve výši 3 % (+ DPH) z dohodnuté ceny, a to pouze v případě koupě nemovitosti. V případě, že se koupě neuskuteční, smlouva Vás k ničemu nezavazuje, a ruší se. V případě vážného zájmu o nemovitost Vám smlouvu zašleme na požádání.
Odpovíme Vám do 24 hodin.
Nabízíme pouze prověřené reality.
Ručíme za kvalitní servis.
Pomůžeme zajistit ubytování při prohlídkách.