KASTAV, RUBEŠI - řadový dům 150m2, obývací pokoj + 3 ložnice s výhledem na moře a garáž + plocha 200m2 - JV
| č. ev | DN-40726 |
| Typ nabídky | Prodej |
| Kategorie | Domy |
| Okresy | Primorsko-goranska |
| Obec, část obce | Kastav |
| Cena | 565 000 € |
| Plocha celkem | 150 m² |
| Zastavěná plocha a nádvoří (dvůr) | 200 m² |
| Celková zastavěná plocha | 200 m² |
| Elektřina | |
| Voda | |
| Odpady | |
| Klimatizace | |
| Energetická náročnost | A - mimořádně úsporná |
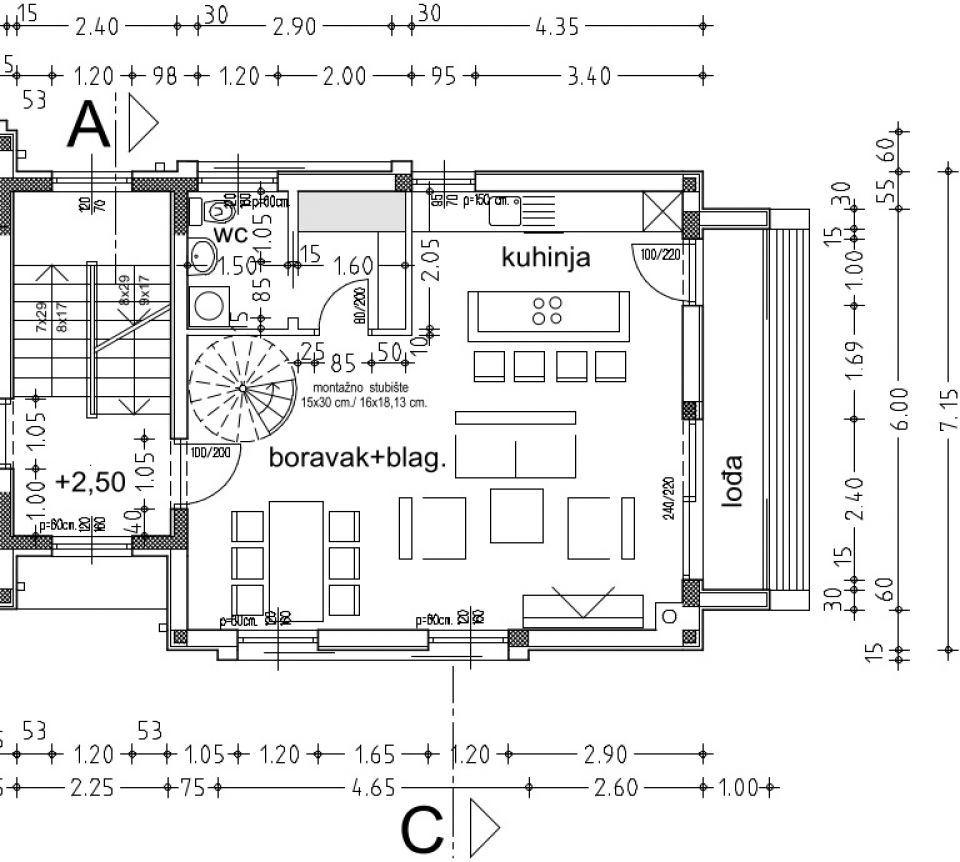
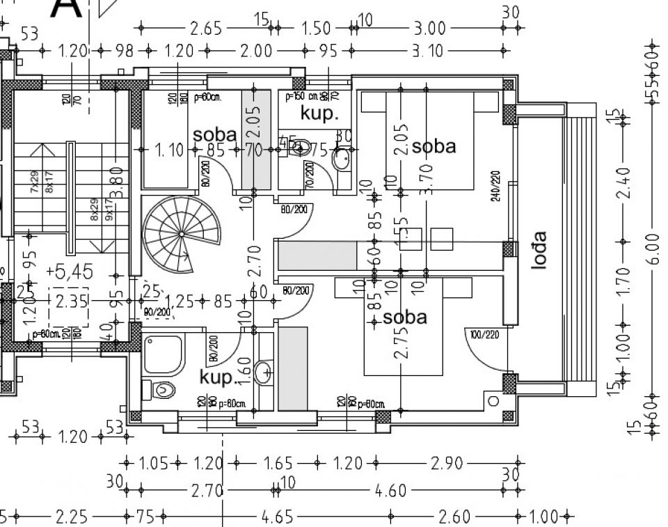
KASTAV, RUBEŠI - dvojdomek 150m2, DB+3S s výhledem na moře a garáží + 200m2 prostředí - JV Dvojdomek má jižní orientaci, což umožňuje dostatek přirozeného světla po celý den. Nachází se na kopci a nabízí úžasný výhled na okolní krajinu a moře. OBÝVACÍ PROSTOR: 106 m2 - 3 ložnice - 3 koupelny - 2 patra - Otevřený obývací pokoj - 2 balkony GARÁŽ O 44 m²: - Bezpečná a krytá - Soukromé parkování pro 2 auta - Nabíječka pro elektromobily SOUKROMÁ ZAHRADA: - Krásný zahradní prostor - Ideální pro outdoorové aktivity - Okolí s množstvím zeleně VYSOCE KVALITNÍ MATERIÁLY: Tento mezonetový byt se vyznačuje vysoce kvalitní konstrukcí s použitím energeticky úsporných materiálů, které zlepšují udržitelnost a zajišťují vysoký standard povrchové úpravy v celém objektu. ENERGETICKY ÚSPORNÉ: - Vysoce kvalitní izolace - Vytápění/chlazení tepelným čerpadlem - Elektrická nabíječka do auta SOULAD S ENERGETICKY ÚSPORNÝMI STAVEBNÍMI STANDARDY: - Odolný, bezpečný a energeticky úsporný - Environmentální udržitelnost a soulad s ekologickými předpisy JEDINEČNÁ LOKALITA: Dvojdomek se nachází v rodinné, klidné a bezpečné čtvrti a poskytuje ideální prostředí pro relaxaci a klid. Díky snadné dostupnosti do Rijeky a Opatije si můžete vychutnat to nejlepší z obou světů - ticho doma a pulzující městský život jen pár minut jízdy autem. - Klimatizace a výhled na Jaderské moře - Přístup k moři - 11 minut jízdy na pláž Dvojdomek je kvalitně postaven, všechny instalované materiály splňují nejvyšší standardy. - Tloušťka fasády 10 cm - Podlahové vytápění - Tepelná čerpadla - Vysoce kvalitní hliníkové truhlářské práce. Dvojdomek je v současné době zařízený do stavu, kdy je možnost výběru vnitřních podlahových krytin a dlažby v koupelnách a kuchyni. K dvojdomku patří upravená zahrada o rozloze přibližně 200 m2. Čistý a uklizený pozemek. Jistě krásná nemovitost pro luxusní rodinný život, ale vhodná i jako investice v podobě elitní turistiky. JEDINEČNÁ NEMOVITOST, KTERÁ URČITĚ STOJÍ ZA VAŠI POZORNOST VE SKVĚLÉ LOKALITE!!! KASTAV: Město Kastav s kastavskou oblastí je synonymem bohaté historie, geografické rozmanitosti, zajímavé architektury a jedinečné turistické nabídky! Nachází se „nad mořem jako sokol“, jak říká básník, podobně jako všechna přímořská města, a přesto jiné; s duší v kamenném hnízdě, dostatečně širokém pro všechny, kteří jsou připraveni ho prožít v jeho celistvosti. Stejně jako mnoho měst na rozhraní střední Evropy a Středomoří má i Kastav bohatou tradici a rozpoznatelnou identitu. Po celou dobu své historie byl Kastav administrativním, hospodářským a kulturním centrem Istrie a Přímoří; byl a zůstává lihovarem národního vědomí, takže i když se v okolí začala rozvíjet města, která jsou dnes mnohem větší než on sám, dokázal si zachovat svou autonomii, jazyk a zvyky.
U všech našich nabídek jsou ceny nemovitostí identické jako při koupi přímo u agentury/developera v Chorvatsku, a to díky tomu, že jsme oficiální zastoupení těchto kanceláří na Českém, Slovenském, Německém a Rakouském trhu. A to bez dodatečných navýšení za služby v českém jazyce (mimo překladů smluv ověřených notářem).
Vážení klienti, prohlídka nemovitostí, sdělení polohy a další podrobné informace je možné pouze s podepsanou smlouvou o zastoupení, která je základem pro další akce jako je nákup nemovitosti. Vše je dle Zákona o zprostředkování při koupi nemovitostí. Kupující platí zákonnou provizi za zastoupení ve výši 3 % (+ DPH) z dohodnuté ceny, a to pouze v případě koupě nemovitosti. V případě, že se koupě neuskuteční, smlouva Vás k ničemu nezavazuje, a ruší se. V případě vážného zájmu o nemovitost Vám smlouvu zašleme na požádání.
Odpovíme Vám do 24 hodin.
Nabízíme pouze prověřené reality.
Ručíme za kvalitní servis.
Pomůžeme zajistit ubytování při prohlídkách.