ISTRIE, VIŠNJAN - Dům s bazénem a výhledem na moře
| č. ev | DN-29838 |
| Typ nabídky | Prodej |
| Kategorie | Domy |
| Okresy | Istarska |
| Obec, část obce | Višnjan |
| Cena | 650 000 € |
| Plocha celkem | 154 m² |
| Zastavěná plocha a nádvoří (dvůr) | 489 m² |
| Celková zastavěná plocha | 489 m² |
| Vzdálenost od moře | 9 000 m |
| Elektřina | |
| Klimatizace | |
| Energetická náročnost | X - Nedodáno |
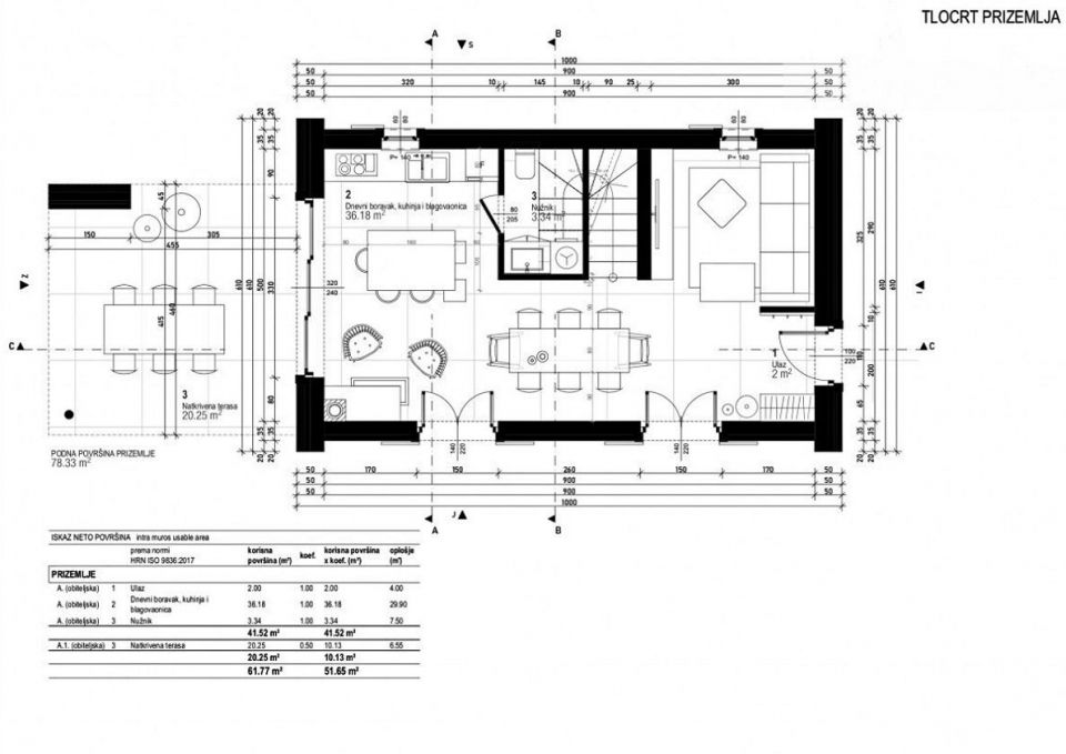
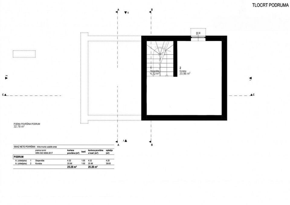
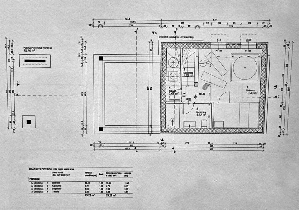
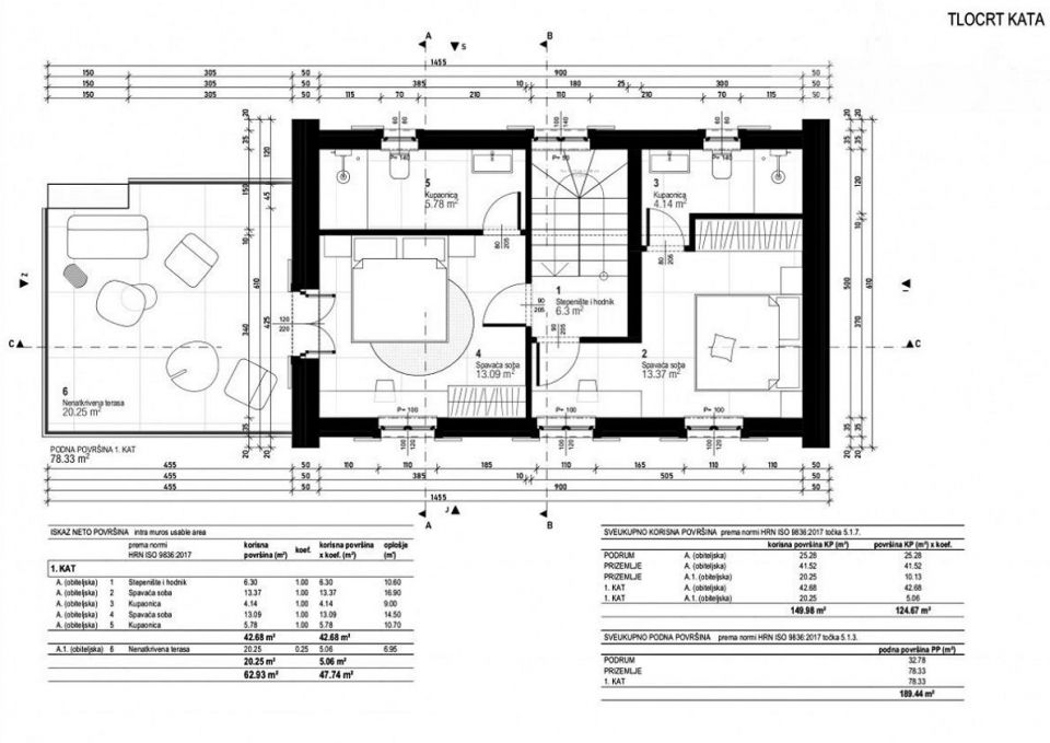
ISTRIE, VIŠNJAN - Dům s bazénem a výhledem na moře Višnjan je malebné a živé město a obec v západní části Istrie. Obec Višnjan má 56 osad a nachází se v oblasti mezi řekou Mirna na severu a Limským kanálem na jihu. Romantický Višnjan se nachází na mírném kopci 244 m nad mořem, obklopen loukami, ornými poli a lesy medových dubů a habrů. Dnes je Višnjan známý především díky své unikátní observatoři, která patří z hlediska počtu objevených planetek mezi dvanáct nejproduktivnějších observatoří všech dob. V idylické krajině ve vnitrozemí Višnjanu je na prodej dům s bazénem a výhledem na moře. Dům byl navržen v souladu s profesí, právními předpisy a územně plánovací dokumentací a byl postaven podle nejvyšších standardů pro bytovou výstavbu. Svou krotkou architekturou nenarušuje okolí, ale vytváří synergii přírodního prostředí, tradiční istrijské architektury a moderního designu. Designová jednoduchost tradiční architektury vyústila ve vytvoření kompaktního půdorysu a příjemného vzdušného prostoru. Je rozdělena do tří podlaží; suterénu, přízemí a prvního patra a vyzařuje eleganci a jednoduchost a poskytuje vysokou úroveň komfortu. V suterénu je wellness místnost se saunou a koupelnou. Přízemí tvoří otevřený koncepční prostor, který spojuje obývací pokoj, jídelnu a kuchyň se vstupem na prostornou krytou terasu. Půdorys přízemí doplňuje toaleta pro hosty. V patře jsou dvě ložnice s vlastními koupelnami a prostorná terasa s výhledem na moře a okolí. Vytápění/chlazení domu zajišťuje elektrické podlahové vytápění a klimatizace. Dvůr je upravený a zahradnicky vyzdobený a úplnou harmonii poskytuje elegantně integrovaný bazén o velikosti 36 m² se sluneční terasou. Výborná poloha a prostorové uspořádání interiéru i exteriéru této nemovitosti poskytuje příležitost pro pohodlný rodinný život nebo investiční investici do cestovního ruchu v pronájmu.
U všech našich nabídek jsou ceny nemovitostí identické jako při koupi přímo u agentury/developera v Chorvatsku, a to díky tomu, že jsme oficiální zastoupení těchto kanceláří na Českém, Slovenském, Německém a Rakouském trhu. A to bez dodatečných navýšení za služby v českém jazyce (mimo překladů smluv ověřených notářem).
Vážení klienti, prohlídka nemovitostí, sdělení polohy a další podrobné informace je možné pouze s podepsanou smlouvou o zastoupení, která je základem pro další akce jako je nákup nemovitosti. Vše je dle Zákona o zprostředkování při koupi nemovitostí. Kupující platí zákonnou provizi za zastoupení ve výši 3 % (+ DPH) z dohodnuté ceny, a to pouze v případě koupě nemovitosti. V případě, že se koupě neuskuteční, smlouva Vás k ničemu nezavazuje, a ruší se. V případě vážného zájmu o nemovitost Vám smlouvu zašleme na požádání.
Odpovíme Vám do 24 hodin.
Nabízíme pouze prověřené reality.
Ručíme za kvalitní servis.
Pomůžeme zajistit ubytování při prohlídkách.