ISTRIE, UMAG - NOVINKA - Pozemek se stavebním povolením pro stavbu
| č. ev | DN-45324 |
| Typ nabídky | Prodej |
| Kategorie | Stavební pozemky |
| Okresy | Istarska |
| Obec, část obce | Umag |
| Cena | 300 000 € |
| Cena za m2 | 333 €/m² |
| Plocha celkem | 900 m² |
| Vzdálenost od moře | 2 000 m |
| Elektřina | |
| Voda | |
| Odpady |
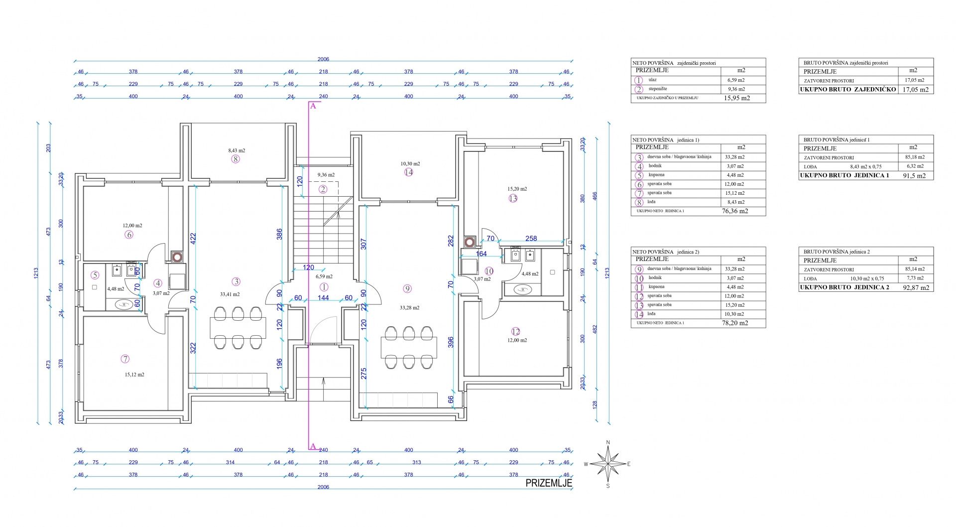
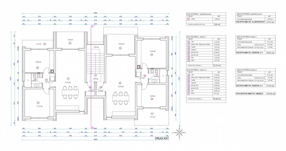
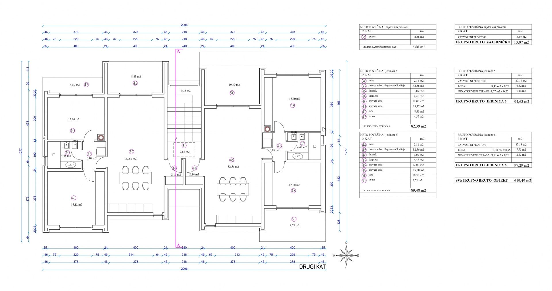
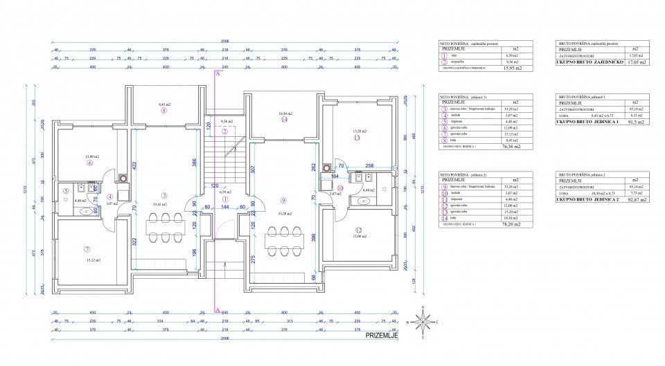
ISTRIE, UMAG - Pozemek s platným stavebním povolením pro bytový dům (6 apartmánů) V blízkosti Umagu, pouhé 2 km od centra města a moře, se prodává atraktivní stavební pozemek o rozloze 800 m² s platným stavebním povolením pro výstavbu bytového domu se 6 dvoupokojovými apartmány. Dle aktuálního projektu je plánována výstavba budovy o celkové ploše 600 m², která se skládá ze šesti dvoupatrových apartmánů o velikosti od 76 do 95 m². Každý apartmán má dvě ložnice a obývací pokoj s kuchyní a jídelním koutem a větší apartmány mají několik teras a lodžií. Celkem je plánováno 9 parkovacích míst. Terén kolem tohoto pozemku je svažitý s vynikající orientací, což umožňuje všem apartmánům v prvním a druhém patře otevřený výhled na moře. Všechny apartmány se těší naprostému soukromí a ničím nerušenému výhledu. Na pozemku je k dispozici veškerá potřebná infrastruktura (elektřina, voda, kanalizace). Pozemek se nachází u asfaltové komunikace, jsou zaplaceny inženýrské sítě a stavební povolení je platné další 3 roky s možností prodloužení o další 3 roky. Stavba může začít ihned. Existuje možnost úpravy stávajícího projektu dle přání budoucího investora. Ideální příležitost pro investory, kteří chtějí využít potenciál turistické oblasti Umag s minimálními administrativními postupy a možným rychlým zahájením výstavby. Pro veškeré další informace, prohlídku lokality a nahlédnutí do kompletní dokumentace nás prosím s důvěrou kontaktujte.
U všech našich nabídek jsou ceny nemovitostí identické jako při koupi přímo u agentury/developera v Chorvatsku, a to díky tomu, že jsme oficiální zastoupení těchto kanceláří na Českém, Slovenském, Německém a Rakouském trhu. A to bez dodatečných navýšení za služby v českém jazyce (mimo překladů smluv ověřených notářem).
Vážení klienti, prohlídka nemovitostí, sdělení polohy a další podrobné informace je možné pouze s podepsanou smlouvou o zastoupení, která je základem pro další akce jako je nákup nemovitosti. Vše je dle Zákona o zprostředkování při koupi nemovitostí. Kupující platí zákonnou provizi za zastoupení ve výši 3 % (+ DPH) z dohodnuté ceny, a to pouze v případě koupě nemovitosti. V případě, že se koupě neuskuteční, smlouva Vás k ničemu nezavazuje, a ruší se. V případě vážného zájmu o nemovitost Vám smlouvu zašleme na požádání.
Odpovíme Vám do 24 hodin.
Nabízíme pouze prověřené reality.
Ručíme za kvalitní servis.
Pomůžeme zajistit ubytování při prohlídkách.