ISTRIE, TINJAN - Samostatně stojící dům s charakterem v srdci Istrie
| č. ev | DN-45575 |
| Typ nabídky | Prodej |
| Kategorie | Domy |
| Okresy | Istarska |
| Obec, část obce | Tinjan |
| Cena | 198 000 € |
| Plocha celkem | 82 m² |
| Zastavěná plocha a nádvoří (dvůr) | 109 m² |
| Celková zastavěná plocha | 109 m² |
| Elektřina | |
| Voda | |
| Topení | ano |
| Energetická náročnost | X - Nedodáno |
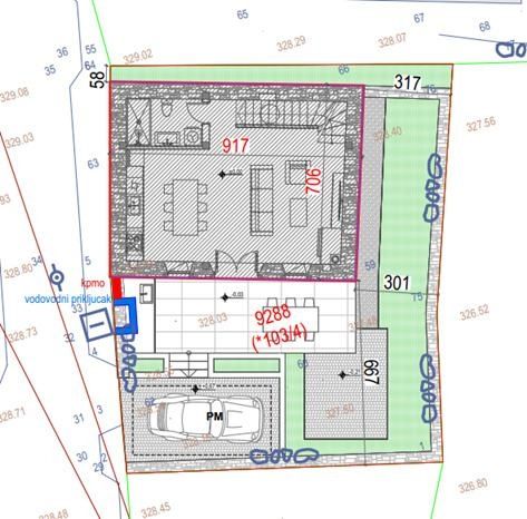
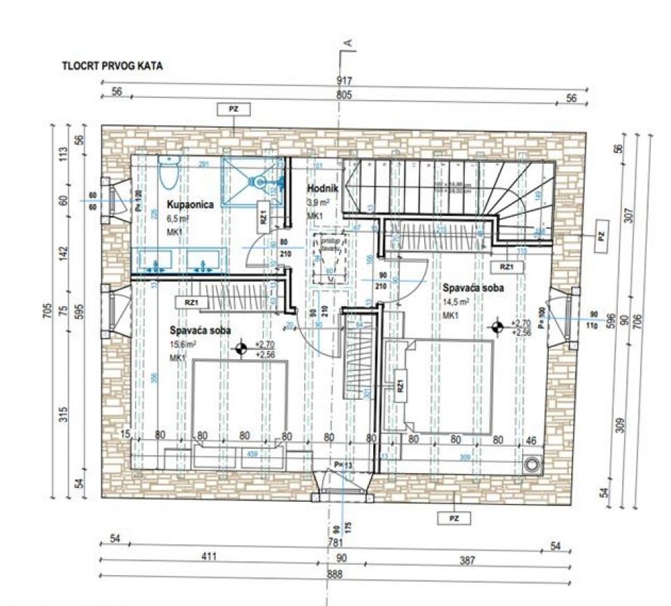
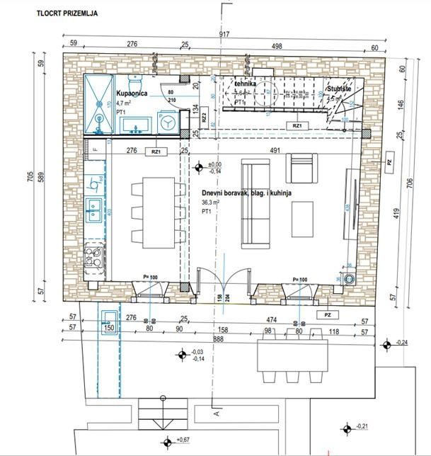
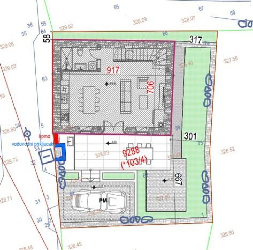
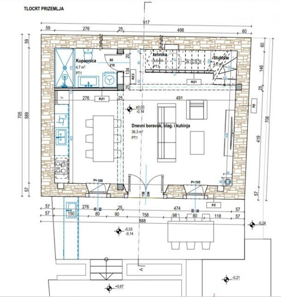
ISTRIE, TINJAN - Samostatně stojící dům s charakterem v srdci Istrie V klidné a zelené osadě v obci Tinjan se nachází tento architektonicky navržený dům s charakterem ve výstavbě s vydaným stavebním povolením a zaregistrovaným zahájením výstavby. Jedná se o výjimečnou příležitost pro kupující, kteří si chtějí dům dokončit dle vlastních představ, ale bez rizika a dlouhého procesu získávání dokumentace a hrubých stavebních prací. Zde kupujete kvalitní stavbu + kompletně navržený projekt, který umožňuje funkční a moderní způsob života. Budova je stavebně dokončena a připravena k montážím a dokončovacím pracím. STAVEBNÍ PRÁCE DOKONČENY (nejnáročnější část je hotová) *Litá železobetonová (AB) podlahová deska *Vybudována betonová mezipodlažní konstrukce *Instalace betonového schodiště *Nová dřevěná střešní konstrukce *Střecha kompletně dokončena se všemi vrstvami a finální krytinou z tašek „středomořských“ *Vybudována příčka pro toaletu v přízemí *Nové vnější otvory (4) postavené dle projektu *Na fasádě instalovány staré střešní krytiny, které dodávají budově autentický istrijský vzhled Na pozemku je již k dispozici: -aktivní vodovodní přípojka -přípojka elektřiny To výrazně snižuje dodatečné náklady a urychluje pokračování výstavby. PLÁNOVANÝ DISPOZICE MÍSTNOSTÍ Dispozice domu byla navržena s důrazem na koncept otevřeného prostoru, komfort a přirozené světlo. (možnost změny budoucích majitelů) Přízemí - otevřený prostor kuchyně s jídelnou a obývacím pokojem, celková plocha 36,3 m² - přímý přístup na terasu a plánovaná letní kuchyně - koupelna: 4,7 m² - vnitřní schodiště vedoucí do prvního patra První patro - chodba: 3,9 m² - prostorná koupelna: 6,5 m² - ložnice 1: 15,6 m² - ložnice 2: 14,5 m² Garáž a zahrada Nemovitost je ideální jako rodinný dům pro klidný život na Istrii, rekreační dům s autentickým istrijským šarmem nebo investice k turistickému pronájmu, mimořádně vyhledávaný ve vnitrozemí Istrie Díky již dokončené výstavbě si nový majitel může upravit povrchové materiály a styl a zařídit zahradu, terasu a letní kuchyň VÝHODY LOKALITY Tinjan, nacházející se v zeleném srdci Istrie, nabízí to, co je dnes nejcennější – klid, soukromí a prostor. Obklopen nedotčenou přírodou, je známý svou vynikající gastronomií, istrijským pršutem, místními produkty, agroturistikou a vinnými stezkami, které vyprávějí příběh pravého Středomoří. Lokalita je klidná a zároveň perfektně propojená – Pazin je v dosahu a Poreč a moře jsou jen kousek jízdy autem. Istrie je region s výjimečnou kvalitou života – bezpečný, dobře udržovaný a dlouhodobě atraktivní, s neustálou poptávkou po nemovitostech a stabilní investiční hodnotou. Pokud hledáte pevný a bezpečný základ pro svůj vysněný domov nebo chytrou investici se svobodou dokončit vše podle vlastního vkusu, zavolejte nám hned teď, protože se jedná o příležitost, která má energii, potenciál a budoucnost.
U všech našich nabídek jsou ceny nemovitostí identické jako při koupi přímo u agentury/developera v Chorvatsku, a to díky tomu, že jsme oficiální zastoupení těchto kanceláří na Českém, Slovenském, Německém a Rakouském trhu. A to bez dodatečných navýšení za služby v českém jazyce (mimo překladů smluv ověřených notářem).
Vážení klienti, prohlídka nemovitostí, sdělení polohy a další podrobné informace je možné pouze s podepsanou smlouvou o zastoupení, která je základem pro další akce jako je nákup nemovitosti. Vše je dle Zákona o zprostředkování při koupi nemovitostí. Kupující platí zákonnou provizi za zastoupení ve výši 3 % (+ DPH) z dohodnuté ceny, a to pouze v případě koupě nemovitosti. V případě, že se koupě neuskuteční, smlouva Vás k ničemu nezavazuje, a ruší se. V případě vážného zájmu o nemovitost Vám smlouvu zašleme na požádání.
Odpovíme Vám do 24 hodin.
Nabízíme pouze prověřené reality.
Ručíme za kvalitní servis.
Pomůžeme zajistit ubytování při prohlídkách.