ISTRIE, TINJAN - Pozemek s povolením k umístění
| č. ev | DN-44153 |
| Typ nabídky | Prodej |
| Kategorie | Stavební pozemky |
| Okresy | Istarska |
| Obec, část obce | Tinjan |
| Cena | 103 500 € |
| Cena za m2 | 186 €/m² |
| Plocha celkem | 554 m² |
| Vzdálenost od moře | 22 000 m |
| Elektřina |
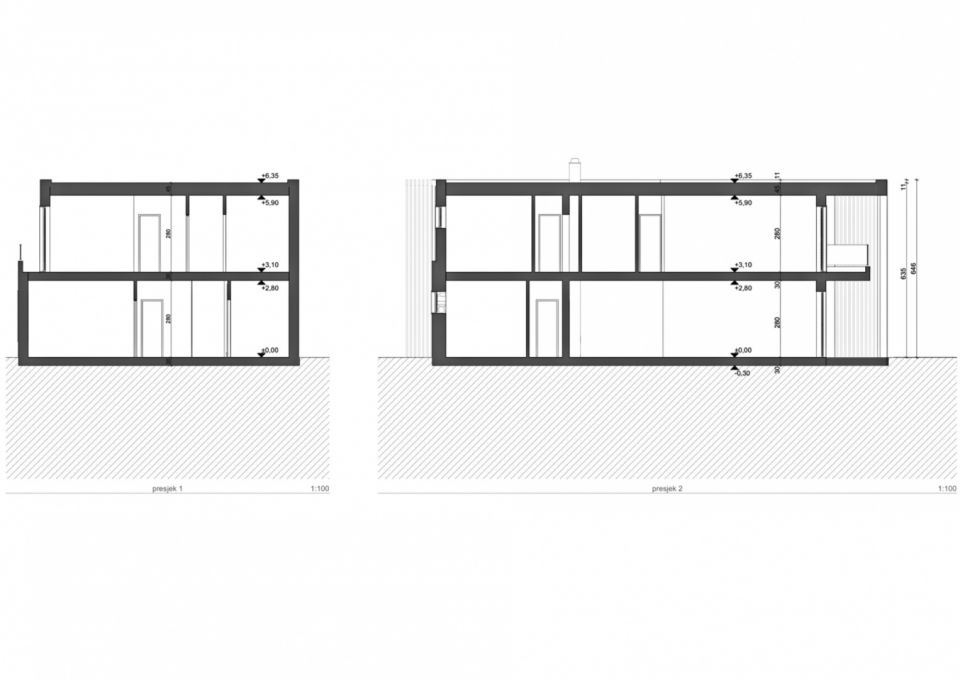
ISTRIE, TINJAN - Pozemek s povolením k výstavbě Město, kdysi obklopené hradbami a věžemi, je dnes místem s velmi výrazným šarmem, kde se hrdě projevuje tradice a historie. Tinjan se nachází nad stálezelenou Dragou, jejíž krásu si můžete vychutnat z tinjanské vyhlídky pod starou ladonjou. Obec Tinjan se rozkládá na ploše 53,94 km² a v obci se nachází 8 osad. V klidné čtvrti nedaleko Tinjanu se prodává pozemek s povolením k výstavbě. Mikrolokace nabízí autentický zážitek malého istrijského městečka, intimitu, úlevu od každé hektické námahy a odpočinek od hluku a zároveň blízkost dynamických istrijských měst s řadou služeb. Katastrální pozemek má obdélníkový tvar a terén je rovinatý a čistý. Na pozemku je vybudována skladovací místnost o rozloze 25 m², septik a pozemek obsahuje také přípojky na vodu a elektřinu (třífázová přípojka s přípojným výkonem 11 kW). Pozemek má povolení k výstavbě bytového domu, který svou decentní architekturou nenarušuje životní prostředí, ale vytváří synergii přírodního prostředí a moderní architektury. Byl navržen jako komfortní samostatně stojící dům s jednou bytovou jednotkou rozkládající se přes dvě podlaží. Vzhledem ke své mikrolokaci, konfiguraci, řádnému vlastnictví a dokumentaci nabízí tento pozemek výjimečnou příležitost k výstavbě rodinného domu nebo rekreačního objektu.
U všech našich nabídek jsou ceny nemovitostí identické jako při koupi přímo u agentury/developera v Chorvatsku, a to díky tomu, že jsme oficiální zastoupení těchto kanceláří na Českém, Slovenském, Německém a Rakouském trhu. A to bez dodatečných navýšení za služby v českém jazyce (mimo překladů smluv ověřených notářem).
Vážení klienti, prohlídka nemovitostí, sdělení polohy a další podrobné informace je možné pouze s podepsanou smlouvou o zastoupení, která je základem pro další akce jako je nákup nemovitosti. Vše je dle Zákona o zprostředkování při koupi nemovitostí. Kupující platí zákonnou provizi za zastoupení ve výši 3 % (+ DPH) z dohodnuté ceny, a to pouze v případě koupě nemovitosti. V případě, že se koupě neuskuteční, smlouva Vás k ničemu nezavazuje, a ruší se. V případě vážného zájmu o nemovitost Vám smlouvu zašleme na požádání.
Odpovíme Vám do 24 hodin.
Nabízíme pouze prověřené reality.
Ručíme za kvalitní servis.
Pomůžeme zajistit ubytování při prohlídkách.