ISTRIE, ŠTOKOVCI - vila "na klíč" s bazénem v srdci Istrie
| č. ev | DN-42007 |
| Typ nabídky | Prodej |
| Kategorie | Domy |
| Okresy | Istarska |
| Obec, část obce | Svetvinčenat |
| Cena | 441 000 € |
| Plocha celkem | 111 m² |
| Zastavěná plocha a nádvoří (dvůr) | 614 m² |
| Celková zastavěná plocha | 614 m² |
| Vzdálenost od moře | 10 000 m |
| Elektřina | |
| Voda | |
| Klimatizace |
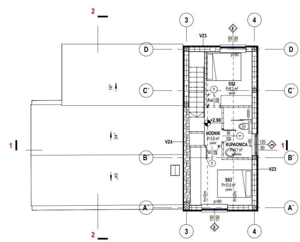
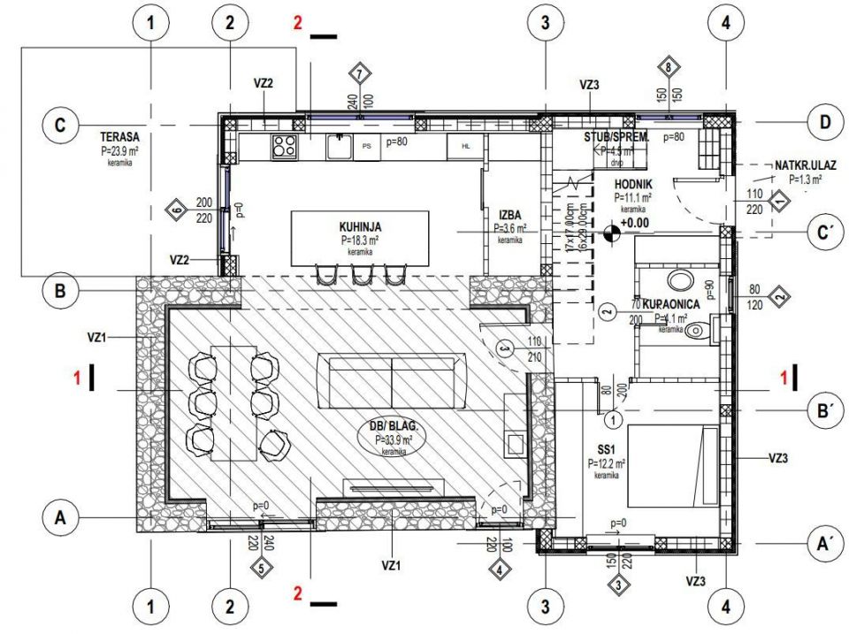
ISTRIE, ŠTOKOVCI - Vila s bazénem v srdci Istrie Dům je v současné době ve výstavbě - výstavba samostatně stojícího bytového domu, přízemí a patro, pomocné budovy - bazén s bazénovou technologií, sběrná jímka, plánována 2 parkovací stání. Dům se nachází na konci obce ve slepé ulici, pozemek má 614m2, dům má čistou plochu 111m2. Je přístupná z veřejné komunikace, ze 3 stran je ohraničena suchými zídkami. V přízemí domu jsou k dispozici tyto místnosti: obývací pokoj, jídelna (výška stropu v obývacím pokoji a jídelně je 5 m) a kuchyně jako otevřený prostor, sklad, koupelna, chodba, ložnice. Do prvního patra se dostanete po vnitřním schodišti a v prvním patře jsou 2 ložnice a koupelna. Venkovní dlážděná terasa má 23m2, bazén 28m2. V bezprostřední blízkosti pozemku se nacházejí místní domy a rekreační domy, takže budoucí dům je ideální pro ty, kteří chtějí využívat všech výhod, které nabízí poklidná istrijská vesnice, nebo pro investory, kteří mohou mít skvělý příjem z pronájmu rekreačního domu . Na pozemku jsou přípojky elektřiny a vody. Na dům je vydáno platné stavební povolení, zaplaceny komunální příspěvky. Cena za dokončený dům na klíč je uvedena v inzerátu. Nemovitost je možné koupit ve fázi surovin, cena se odvíjí od stupně dokončení.
U všech našich nabídek jsou ceny nemovitostí identické jako při koupi přímo u agentury/developera v Chorvatsku, a to díky tomu, že jsme oficiální zastoupení těchto kanceláří na Českém, Slovenském, Německém a Rakouském trhu. A to bez dodatečných navýšení za služby v českém jazyce (mimo překladů smluv ověřených notářem).
Vážení klienti, prohlídka nemovitostí, sdělení polohy a další podrobné informace je možné pouze s podepsanou smlouvou o zastoupení, která je základem pro další akce jako je nákup nemovitosti. Vše je dle Zákona o zprostředkování při koupi nemovitostí. Kupující platí zákonnou provizi za zastoupení ve výši 3 % (+ DPH) z dohodnuté ceny, a to pouze v případě koupě nemovitosti. V případě, že se koupě neuskuteční, smlouva Vás k ničemu nezavazuje, a ruší se. V případě vážného zájmu o nemovitost Vám smlouvu zašleme na požádání.
Odpovíme Vám do 24 hodin.
Nabízíme pouze prověřené reality.
Ručíme za kvalitní servis.
Pomůžeme zajistit ubytování při prohlídkách.