ISTRIE, SAVUDRIJA - Apartmán v 1. patře u moře
| č. ev | DN-40242 |
| Typ nabídky | Prodej |
| Kategorie | Byty |
| Okresy | Istarska |
| Obec, část obce | Umag |
| Cena | 255 000 € |
| Plocha celkem | 79 m² |
| Plocha bydlení (bytu) | 79 m² |
| Vzdálenost od moře | 1 400 m |
| Elektřina | |
| Voda | |
| Odpady | |
| Plyn | |
| Klimatizace |
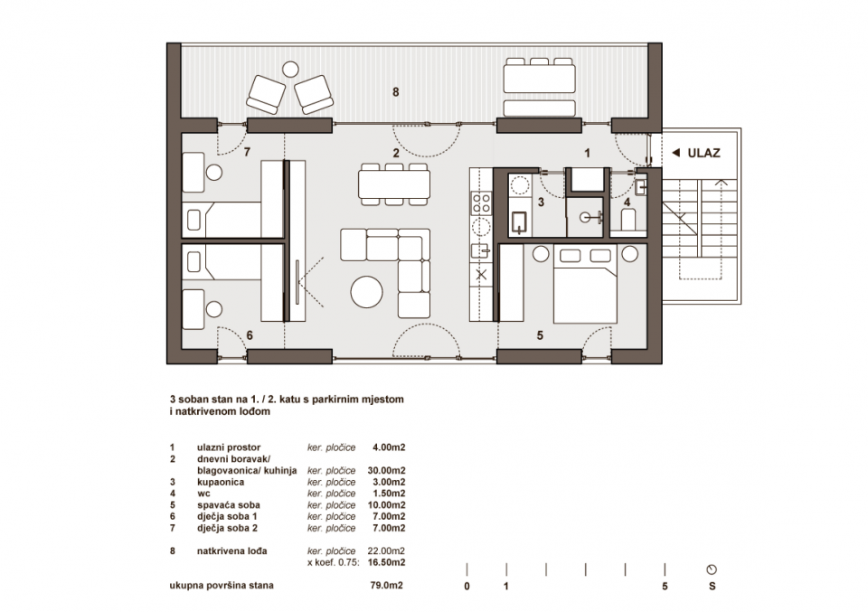
ISTRIE, SAVUDRIJA - Apartmán v 1. patře u moře Při vstupu na Istrii ze severozápadu narazíte jako první na Savudriju, která se nachází na samém okraji stejnojmenného poloostrova. Malá rybářská vesnice bohatá na historii byla poprvé zmíněna ve 12. století a archeologické nálezy z okolí ukazují, že tato oblast byla osídlena již od doby kamenné. Členité, převážně skalnaté pobřeží, proložené malými oblázkovými plážemi a obklopené bohatou středomořskou vegetací, láká velké množství turistů, kteří se rádi vracejí. Apartmán zabírá celé patro bytového domu a má samostatný vchod, což ještě více zdůrazňuje pocit soukromí a pohodlí. Celková plocha apartmánu je 79 m², z čehož 62,50 m² tvoří vnitřní obytný prostor, zatímco 22 m² tvoří prostorná, krytá lodžie. Apartmán nabízí otevřený výhled na moře, což dále přispívá k atmosféře autentického středomořského životního stylu. Půdorys bytu je pečlivě navržen a zahrnuje vstupní halu, tři ložnice, moderní koupelnu, samostatnou toaletu a prostorný obývací pokoj s jídelnou a kuchyní s otevřeným konceptem. Z obývacího pokoje je vstup na velkou lodžii - ideální místo k relaxaci a užívání si přírody v každém ročním období. K bytu náleží také vyhrazená parkovací místa v oploceném dvoře budovy. Budova zahrnuje celkem čtyři bytové jednotky a nemovitost se prodává na klíč. Plánované dokončení všech prací je naplánováno na podzim roku 2025.
U všech našich nabídek jsou ceny nemovitostí identické jako při koupi přímo u agentury/developera v Chorvatsku, a to díky tomu, že jsme oficiální zastoupení těchto kanceláří na Českém, Slovenském, Německém a Rakouském trhu. A to bez dodatečných navýšení za služby v českém jazyce (mimo překladů smluv ověřených notářem).
Vážení klienti, prohlídka nemovitostí, sdělení polohy a další podrobné informace je možné pouze s podepsanou smlouvou o zastoupení, která je základem pro další akce jako je nákup nemovitosti. Vše je dle Zákona o zprostředkování při koupi nemovitostí. Kupující platí zákonnou provizi za zastoupení ve výši 3 % (+ DPH) z dohodnuté ceny, a to pouze v případě koupě nemovitosti. V případě, že se koupě neuskuteční, smlouva Vás k ničemu nezavazuje, a ruší se. V případě vážného zájmu o nemovitost Vám smlouvu zašleme na požádání.
Odpovíme Vám do 24 hodin.
Nabízíme pouze prověřené reality.
Ručíme za kvalitní servis.
Pomůžeme zajistit ubytování při prohlídkách.