ISTRIE, SAND BAY - Luxus s výhledem na moře a výtahem!
| č. ev | DN-31932 |
| Typ nabídky | Prodej |
| Kategorie | Byty |
| Okresy | Istarska |
| Obec, část obce | Medulin |
| Cena | 534 200 € |
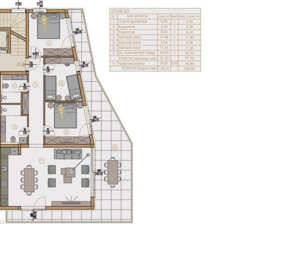
| Plocha celkem | 106 m² |
| Plocha bydlení (bytu) | 106 m² |
| Vzdálenost od moře | 400 m |
| Elektřina | |
| Voda | |
| Odpady | |
| Klimatizace | |
| Topení | ano |
ISTRIE, SAND BAY Luxus s výhledem na moře a výtahem! Luxusní byt v novém projektu je na prodej v jedné z nejatraktivnějších lokalit. Jedná se o byt, který nabízí 119,12 m2 obytné plochy a nachází se v prvním patře. Skládá se z chodby se šatnou, velkého obývacího pokoje s kuchyní a jídelnou se vstupem na krytou terasu, 3 ložnic a dvou koupelen. LOKALITA: - projekt se nachází 400 metrů vzdušnou čarou od první pláže - klidné prostředí s atraktivními rodinnými domy - pěší dostupnost obchodů, plážových barů, restaurací VYBAVENÍ BYTU (BUDOVA) - v rámci objektu jsou parkovací garážová stání a venkovní parkovací stání, která si odkoupí s příplatkem za zobrazenou cenu - budova nabízí i výtah, čímž je tento projekt ještě atraktivnější - podlahové vytápění - klimatizace - parkety v pokojích - elektrické žaluzie s moskytiérou Začátek prací 10/ 24, předpokládaný konec prací 25.12. Prodávající je právnickou osobou. Pro všechny ostatní dotazy jsme k dispozici.
U všech našich nabídek jsou ceny nemovitostí identické jako při koupi přímo u agentury/developera v Chorvatsku, a to díky tomu, že jsme oficiální zastoupení těchto kanceláří na Českém, Slovenském, Německém a Rakouském trhu. A to bez dodatečných navýšení za služby v českém jazyce (mimo překladů smluv ověřených notářem).
Vážení klienti, prohlídka nemovitostí, sdělení polohy a další podrobné informace je možné pouze s podepsanou smlouvou o zastoupení, která je základem pro další akce jako je nákup nemovitosti. Vše je dle Zákona o zprostředkování při koupi nemovitostí. Kupující platí zákonnou provizi za zastoupení ve výši 3 % (+ DPH) z dohodnuté ceny, a to pouze v případě koupě nemovitosti. V případě, že se koupě neuskuteční, smlouva Vás k ničemu nezavazuje, a ruší se. V případě vážného zájmu o nemovitost Vám smlouvu zašleme na požádání.
Odpovíme Vám do 24 hodin.
Nabízíme pouze prověřené reality.
Ručíme za kvalitní servis.
Pomůžeme zajistit ubytování při prohlídkách.