ISTRIE, ROVINJ - Dva apartmány s velkou zahradou a garáží 600m od moře
| č. ev | DN-13396 |
| Typ nabídky | Prodej |
| Kategorie | Byty |
| Okresy | Istarska |
| Obec, část obce | Rovinj |
| Cena | 590 000 € |
| Plocha celkem | 167 m² |
| Plocha bydlení (bytu) | 167 m² |
| Vzdálenost od moře | 600 m |
| Elektřina | |
| Odpady | |
| Klimatizace | |
| Topení | ano |
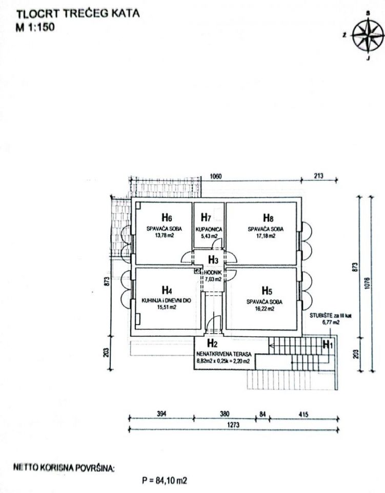
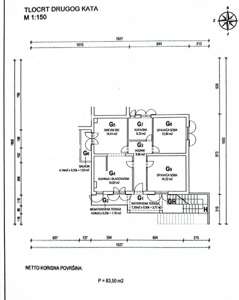
ISTRIE, ROVINJ - Dva apartmány s velkou zahradou a garáží 600 m od moře Rovinj je romantické istrijské město, cíl pro všechny, kteří touží po sentimentální atmosféře času, který nenávratně uplynul. Svůj romantický život začal na ostrově, jehož stísněný prostor podmínil výstavbu kompaktních domů, úzkých uliček a malých náměstí, které jsou dodnes nedotčené moderním urbanismem. Rovinj, vyrůstající ve své bohaté rybářské tradici, se stal známým pro svou jedinečnou batana loď, písně bitinada, ale také pro spacio, místní verzi taverny nebo vinného sklípku, kde kdysi Rovinjáci uchovávali, ochutnávali a dále prodávali víno. Dnes jsou v Rovinji a jeho okolí nejlepší istrijské restaurace a mnoho zajímavých turistických atrakcí. Rozvoj Rovinje je jistě způsoben mnoha krásnými plážemi a blízkostí moře. 600 metrů od krásného moře jsou dva apartmány, jeden se nachází ve druhém patře a druhý ve třetím. Plocha bytu ve druhém patře je 83,50 m2 a sestává ze vstupní chodby, kuchyně s jídelnou, obývacího pokoje, dvou ložnic a toalety. Taky mám dvě terasy. Ve třetím patře je obytná plocha bytu 84,10 m2 a sestává ze vstupní chodby, kuchyně s jídelnou, obývacího pokoje, dvou ložnic a toalety. K dispozici je také terasa s výhledem na moře. K bytům náleží garážové stání 19,40 m2 v přízemí a krásná zahrada cca 110 m2. Tyto dva byty se prodávají výhradně společně. V domě je celkem 8 bytů. Vzhledem k blízkosti moře a dalšímu zázemí nezbytnému k životu poskytuje tato nemovitost ideální příležitost pro ty, kteří chtějí pronajmout, ale i pro rodinný život.
U všech našich nabídek jsou ceny nemovitostí identické jako při koupi přímo u agentury/developera v Chorvatsku, a to díky tomu, že jsme oficiální zastoupení těchto kanceláří na Českém, Slovenském, Německém a Rakouském trhu. A to bez dodatečných navýšení za služby v českém jazyce (mimo překladů smluv ověřených notářem).
Vážení klienti, prohlídka nemovitostí, sdělení polohy a další podrobné informace je možné pouze s podepsanou smlouvou o zastoupení, která je základem pro další akce jako je nákup nemovitosti. Vše je dle Zákona o zprostředkování při koupi nemovitostí. Kupující platí zákonnou provizi za zastoupení ve výši 3 % (+ DPH) z dohodnuté ceny, a to pouze v případě koupě nemovitosti. V případě, že se koupě neuskuteční, smlouva Vás k ničemu nezavazuje, a ruší se. V případě vážného zájmu o nemovitost Vám smlouvu zašleme na požádání.
Odpovíme Vám do 24 hodin.
Nabízíme pouze prověřené reality.
Ručíme za kvalitní servis.
Pomůžeme zajistit ubytování při prohlídkách.