ISTRIE, MOMJAN - EXKLUZIVNĚ! Velkolepá vila na mimořádném místě
| č. ev | DN-21843 |
| Typ nabídky | Prodej |
| Kategorie | Domy |
| Okresy | Istarska |
| Obec, část obce | Buje |
| Cena | 1 900 000 € |
| Plocha celkem | 443 m² |
| Zastavěná plocha a nádvoří (dvůr) | 2 000 m² |
| Celková zastavěná plocha | 2 000 m² |
| Vzdálenost od moře | 15 000 m |
| Elektřina | |
| Klimatizace | |
| Topení | ano |
| Energetická náročnost | X - Nedodáno |
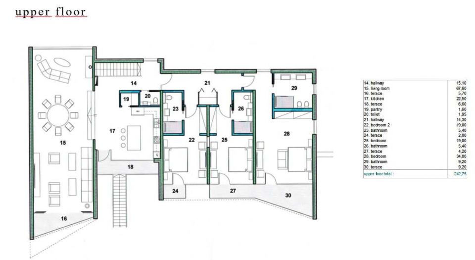
ISTRIE, MOMJAN - EXKLUZIVNĚ! Velkolepá vila na výjimečném místě V severozápadní části Istrie, na kopcovitých svazích horní Bujštiny, se nachází středověké město Momjan. Dominantní v dávné minulosti, dnes vyniká jako vinařská perla Istrie; skutečnou Mekkou pro milovníky gastronomie a vína, protože nedaleko se nachází jedna z nejlepších taveren a vinařství na celé Istrii. Ponořeno do malebné přírody zelené říše vinic a olivových hájů vetkaných do barevných kopců, nad údolím potoka Argilla, městečko Momjan a jeho přátelští obyvatelé žijí na každém kroku istrijskou tradicí, uchovávanou v rodinných tavernách, víno sklepy a pozůstatky bohaté historie Bujštiny. Dokonalá harmonie, až neskutečná, jako z pohádky. Velkolepá vila na výjimečném místě, obklopená vinicemi a olivovými háji, je na prodej. Kromě toho je umístění nemovitosti fascinující, v docházkové vzdálenosti jsou nejlepší vinařství, řemeslné pivovary, výrobci olivového oleje a vyhlášené restaurace. Každý detail této elegantní nemovitosti byl pečlivě navržen a výsledkem je prvotřídní nemovitost, která představuje útočiště pro opravdové hédonisty. Geometrické tvary dodávají stavbě samotné osobitý vizuální charakter, který místy působí až iluzorně, a spojení kamene a skla vyústilo v elegantní, luxusní a extrémně moderní design, který dokonale zapadá do charakteru samotné lokality, která je typicky istrijský. Svým současným designem exteriéru a luxusní výzdobou interiéru, která je podtržena špičkovým vybavením, nábytkem a zázemím, poskytuje vila vysoký standard bydlení při výjimečném komfortu a funkčnosti i naprosté soukromí. Grandiózní užitná obytná plocha 391,14 m² rozkládající se na dvou podlažích vyzařuje světlo odrážející čistotu linií s dokonalou rovnováhou venkovního a vnitřního prostoru. Prostorný obývací prostor v otevřeném pojetí se nachází v horním patře a je doplněn elegantní jídelnou a prvotřídní kuchyní. Půdorys horního patra doplňují tři ložnice s en-suite koupelnami, komorou a toaletou pro hosty. Všechny pokoje mají přístup na balkon. Přízemí obsahuje ložnici s vlastní šatnou a koupelnou, tělocvičnu s profesionálním fitness vybavením a relaxační zónu se saunou, které jsou propojeny sociálním zařízením, místností pro vybavení a prádelnou. Mimořádně profesionální plánování kromě funkčnosti věnuje zvláštní pozornost hranicím mezi interiérem a exteriérem a vzhledem ke kaskádovitému terénu bylo dosaženo ideální komunikace mezi zahradou a vilou. V úrovni přízemí jsou dva vyhřívané přelivové bazény o ploše 70 m² s terasou napojenou na letní kuchyni a gril. Poslední úroveň zahrady obsahuje garáž o užitné ploše 43,13 m² a dvě parkovací stání. Plánované ukončení prací a předání nemovitosti se předpokládá v polovině roku 2024. Koupí rozestavěné nemovitosti se stáváte aktivním účastníkem tvorby vaší vysněné nemovitosti. S možností změny designu interiéru, úpravy zahradnického designu a výběru barvy fasády máte sílu utvářet obytný prostor, který je jedinečně váš. Využijte tuto příležitost a vlijte svou osobnost a styl do každého aspektu vašeho nového domova a výsledkem je útočiště, které skutečně odráží, kdo jste. Prodávajícím nemovitosti je právnická osoba.
U všech našich nabídek jsou ceny nemovitostí identické jako při koupi přímo u agentury/developera v Chorvatsku, a to díky tomu, že jsme oficiální zastoupení těchto kanceláří na Českém, Slovenském, Německém a Rakouském trhu. A to bez dodatečných navýšení za služby v českém jazyce (mimo překladů smluv ověřených notářem).
Vážení klienti, prohlídka nemovitostí, sdělení polohy a další podrobné informace je možné pouze s podepsanou smlouvou o zastoupení, která je základem pro další akce jako je nákup nemovitosti. Vše je dle Zákona o zprostředkování při koupi nemovitostí. Kupující platí zákonnou provizi za zastoupení ve výši 3 % (+ DPH) z dohodnuté ceny, a to pouze v případě koupě nemovitosti. V případě, že se koupě neuskuteční, smlouva Vás k ničemu nezavazuje, a ruší se. V případě vážného zájmu o nemovitost Vám smlouvu zašleme na požádání.
Odpovíme Vám do 24 hodin.
Nabízíme pouze prověřené reality.
Ručíme za kvalitní servis.
Pomůžeme zajistit ubytování při prohlídkách.