ISTRIE, LIŽNJAN - Prostorná novostavba s moderním designem
| č. ev | DN-27200 |
| Typ nabídky | Prodej |
| Kategorie | Domy |
| Okresy | Istarska |
| Obec, část obce | Ližnjan |
| Cena | 890 000 € |
| Plocha celkem | 227 m² |
| Zastavěná plocha a nádvoří (dvůr) | 525 m² |
| Celková zastavěná plocha | 525 m² |
| Vzdálenost od moře | 2 000 m |
| Elektřina | |
| Klimatizace | |
| Energetická náročnost | X - Nedodáno |
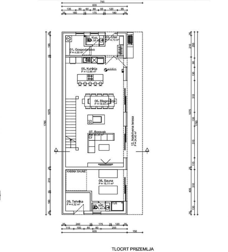
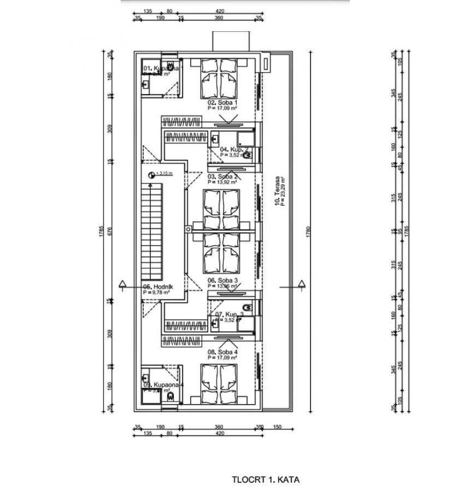
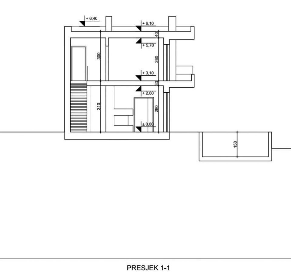
ISTRIE, LIŽNJAN - Prostorná novostavba moderního designu Na samém jihu Istrie, na kopci vždy zalitém sluncem a hýčkáném čerstvým větrem, se nachází malebný Ližnjan, který klidně pozoruje průzračné modré moře a Kvarnerské ostrovy. . Jeho historie je skutečně fascinující, o čemž svědčí místa více než 7000 let starých osad, zbytky římských vil, kusy amfor a staré potopené lodě, které se stále nacházejí na jejím mořském dně, staré majáky, které stále ukazují cestu k moři Malebný přístav dnes cestovatelů prozrazuje, že jeho obyvatelé se i dnes, stejně jako před tisíci lety, zabývají rybolovem. Pobřeží Ližnjanu má až 28 kilometrů opravdu krásných a nedotčených pláží, kde je stále možné najít osamělý kus krásného pobřeží, kde je jedinou společností zvuk vln a zpěv cvrčků. Obec Ližnjan je díky své přírodní kráse, skrytým plážím a zátokám, úrodné půdě, rybolovu a především lidem, kteří tam žijí, oázou nedotčené přírody a tradičního středomořského životního stylu. V Ližnjanu na okraji vesnice je na prodej prostorná novostavba s moderním designem. Nemovitost se vyznačuje výhodnou polohou, kvalitou provedení a moderním designem, který se vyznačuje pravidelnou geometrickou formou a pravidelnými liniemi v prostoru a také interiérem s kompaktním půdorysem a vzdušným prostorem. Dům je navržen jako jedna bytová jednotka, která se rozkládá na dvou podlažích; přízemí a první patro. Přízemí tvoří otevřený koncepční prostor, který spojuje obývací pokoj, jídelnu a kuchyň se vstupem na krytou terasu. Půdorys doplňuje wellness se saunou a koupelnou, prádelna, toaleta pro hosty, sklad a technická místnost. Patro tvoří čtyři ložnice s vlastními koupelnami a východy na terasu s výhledem na moře a okolí. Dvůr je zahradnicky a ekologicky vyzdoben, kompletně oplocený a obsahuje bazén s prostorem na opalování a parkovací místa. Tato novostavba v atraktivní lokalitě je ideální příležitostí pro klidný rodinný život i investicí za účelem turistického pronájmu.
U všech našich nabídek jsou ceny nemovitostí identické jako při koupi přímo u agentury/developera v Chorvatsku, a to díky tomu, že jsme oficiální zastoupení těchto kanceláří na Českém, Slovenském, Německém a Rakouském trhu. A to bez dodatečných navýšení za služby v českém jazyce (mimo překladů smluv ověřených notářem).
Vážení klienti, prohlídka nemovitostí, sdělení polohy a další podrobné informace je možné pouze s podepsanou smlouvou o zastoupení, která je základem pro další akce jako je nákup nemovitosti. Vše je dle Zákona o zprostředkování při koupi nemovitostí. Kupující platí zákonnou provizi za zastoupení ve výši 3 % (+ DPH) z dohodnuté ceny, a to pouze v případě koupě nemovitosti. V případě, že se koupě neuskuteční, smlouva Vás k ničemu nezavazuje, a ruší se. V případě vážného zájmu o nemovitost Vám smlouvu zašleme na požádání.
Odpovíme Vám do 24 hodin.
Nabízíme pouze prověřené reality.
Ručíme za kvalitní servis.
Pomůžeme zajistit ubytování při prohlídkách.