ISTRIE, KRNICA - stavební pozemek 19147m2 s krásným výhledem na moře pro cca 10 vil s bazénem
| č. ev | DN-40347 |
| Typ nabídky | Prodej |
| Kategorie | Stavební pozemky |
| Okresy | Istarska |
| Obec, část obce | Marčana |
| Cena | 1 961 800 € |
| Cena za m2 | 102 €/m² |
| Plocha celkem | 19 147 m² |
| Elektřina | |
| Voda |
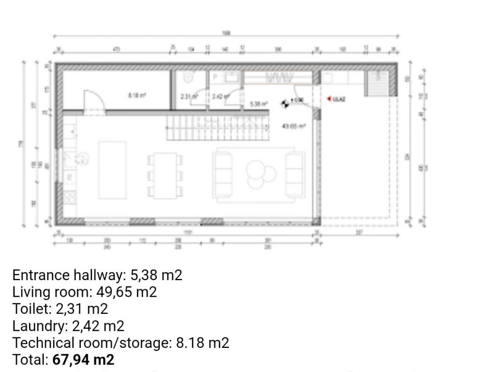
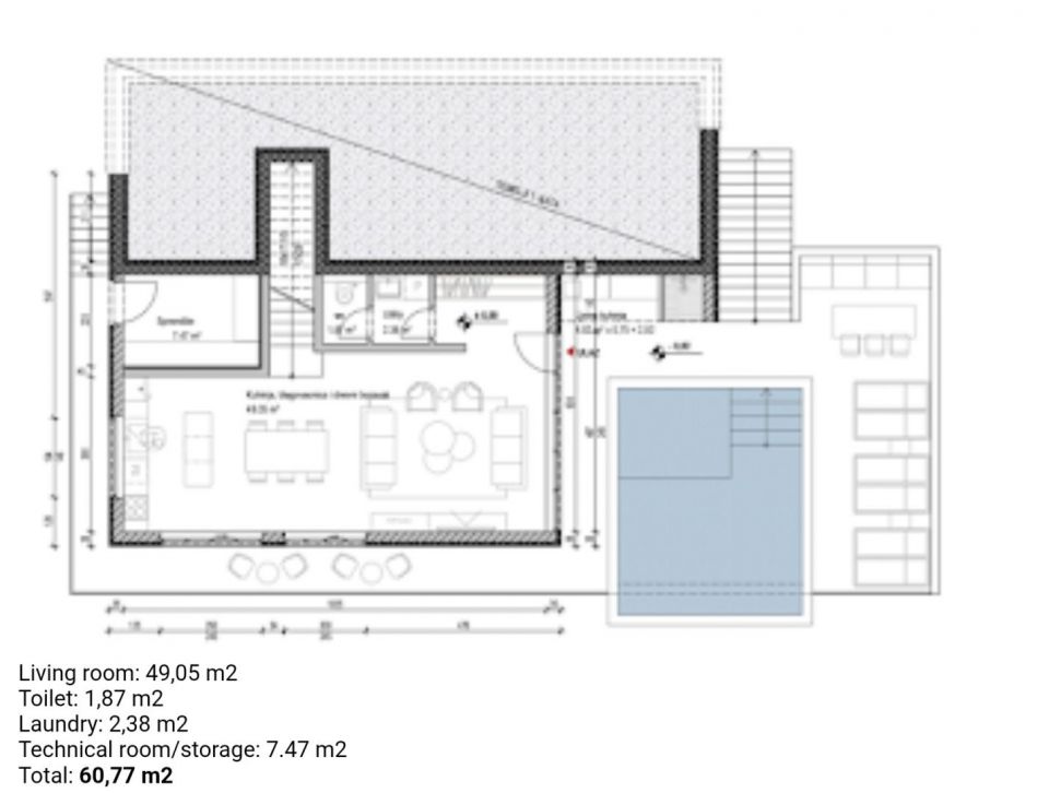
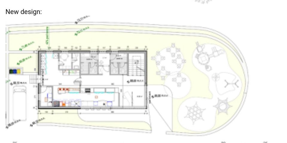
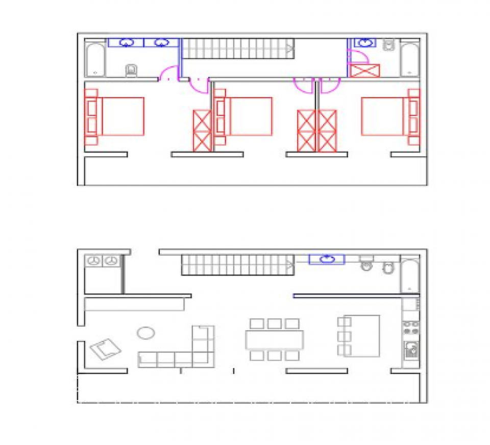
ISTRIE, KRNICA - stavební pozemek o rozloze 19147 m2 s krásným výhledem na moře pro cca 10 vil s bazénem Stavební pozemek je vzdálen 200 m vzdušnou čarou od moře, má otevřený panoramatický výhled na moře a je orientován na jih. Pozemek je cca 10000 m2 ve stavební zóně, zatímco zbývajících cca 9000 m2 je v zeleném pásu (nelze zastavit - lze zde umístit dvůr, zahradu, sad, tenisový kurt, bazén nebo podobně). Pro stavební část pozemku existuje předběžný návrh na výstavbu 10 vil s bazénem. V roce 2024 majitelé investovali značné úsilí do zlepšení fáze plánování a pečlivě řešili každý detail, aby zajistili významná vylepšení. Bylo analyzováno několik iterací developerského projektu a každá verze obsahuje cenná vylepšení. Ačkoli se proces může zdát rozsáhlý, věříme, že tato investice času a energie přidává značnou hodnotu. Jedná se o speciální projekt v jedné z nejkrásnějších lokalit na Istrii a my se zavázali k jeho rozvoji s maximální péčí a pozorností k detailům. Prioritou majitele není rychlost, ale vytvoření projektu, který je krásný, udržitelný, hodnotný, nákladově efektivní a funkční. Vzhledem k těmto cílům bylo nezbytné prozkoumat širokou škálu možností a čerpat z odborných znalostí z různých oborů při tvorbě konečného návrhu. Tento promyšlený, multidisciplinární přístup zajišťuje, že dosáhneme vyváženého a dopadového výsledku jak pro lokalitu, tak pro komunitu. HLAVNÍ PLÁN A UMÍSTĚNÍ VILY: MAXIMALIZACE KAPACITY HOSTŮ: Podrobný urbanistický plán (UPU) umožňuje ubytování 80 hostů. Každá vila je plánována pro 6 hostů, celkem tedy 66 hostů v 11 vilách. Kromě toho může podle plánu 7 vil ubytovat další 2 hosty (7 x 2 = 14 hostů), čímž se celková kapacita zvýší na 80 hostů. Ve skutečnosti může každá vila pojmout až 8 hostů, což znamená, že projekt může pojmout až 88 hostů ve všech vilách (8 x 11 = 88). MAXIMALIZACE VÝHLEDŮ: Vily jsou umístěny na různých úrovních, takže všechny mají krásný výhled. Vily také co nejvíce kopírují přírodní terén, čímž šetří náklady na výstavbu. Velká okna jsou umístěna tak, aby se krásné výhledy na okolní krajinu integrovaly do obytného prostoru a staly se významnou součástí celkového zážitku. OPTIMALIZACE DESIGNU PRO NÁKLADOVOU EFEKTIVITU: Design vil je co nejvíce přizpůsoben stávajícímu terénu a uspořádání silnic, aby se snížily náklady a složitost výstavby. Projekt obsahuje dva typy vil, které jsou v souladu s návrhem silnic, přičemž prioritou je konstrukce a funkčnost. RESPEKTUJÍCÍ POŽADOVANÉ VZDÁLENOSTI: Minimálně 3 metry mezi vilami a 4 metry od silnice jsou v souladu s předpisy urbanistického plánování. Důležité: To usnadňuje potenciální budoucí rozdělení na samostatné parcely (v případě, že se v budoucnu rozhodneme vily prodat), protože plánování respektuje stanovené vzdálenosti. EFEKTIVNÍ VYUŽITÍ PROSTORU A VYBAVENÍ: Vily jsou navrženy tak, aby optimalizovaly využití prostoru (neexistují žádné velmi velké vily s nevyužitým prostorem) a zároveň nabízejí řadu funkcí, včetně bistra s výhledem na moře, soukromých bazénů, venkovního stravování, kuchyně a venkovní sprchy - což poskytuje příjemný zážitek z bydlení. EFEKTIVNÍ ÚPRAVA KRAJINY NA SVAHU: Řešení úpravy krajiny upřednostňuje zemní práce s terénem a rostlinami, čímž se snižuje počet opěrných zdí, vytváří se organičtější integrace s prostředím a snižuje se složitost výstavby. Rostliny vysazené na svazích vytvoří neuvěřitelný vizuální zážitek. NÁVRH SILNICE: Klíčovým prvkem projektu je silnice a její návrh byl pečlivě zvážen s ohledem na několik cílů: DODRŽOVÁNÍ PŘEDPISŮ: Silnice je navržena v souladu se všemi příslušnými předpisy, což zvyšuje pravděpodobnost budoucího převzetí obcí (stejně jako u Laguna Marina), což by mohlo být pro projekt dlouhodobě prospěšné. SNADNÁ PŘÍSTUPNOST: Klíčem je zajištění pohodlí a snadné navigace po silnici. Návrh silnice upřednostňuje nerušený přístup k vilám. To výrazně zlepšuje celkový zážitek pro obyvatele i hosty. INTEGRACE DO TERÉNU: Uspořádání silnice sleduje přirozené výškové rozdíly terénu, aby se snížila potřeba rozsáhlých zemních prací. Tím se snižují náklady a zachovává se přírodní krása lokality. Přístup k budoucí zástavbě (zemědělská půda) Finální návrh komunikace je oproti původním verzím plně integrován do terénu, což zlepšuje uživatelský komfort a celkovou estetickou atraktivitu projektu. DŮLEŽITÉ: zaručuje také přístup k pozemkům, které by mohly být v budoucnu zastavěny. Terén se nachází na kopci. Terén se nachází v klidné a mírové poloze a hned vedle silnice. Veškeré inženýrské sítě k terénu. Čistý a uklizený pozemek. Terén je vyčištěný a připravený k výstavbě. Budoucí nemovitost postavená na tomto pozemku by měla panoramatický otevřený výhled na moře, záliv a ostrovy již z přízemí! Nemovitost, ze které se k moři a pláži dostanete doslova za minutu pěšky! Dobrá příležitost pro investory, kteří se zabývají výstavbou bytů/domů k pronájmu s bazénem. NEMOVITOST VE SKVĚLÉ JEDINEČNÉ LOKALITE S VELKÝM POTENCIÁLEM!!!
U všech našich nabídek jsou ceny nemovitostí identické jako při koupi přímo u agentury/developera v Chorvatsku, a to díky tomu, že jsme oficiální zastoupení těchto kanceláří na Českém, Slovenském, Německém a Rakouském trhu. A to bez dodatečných navýšení za služby v českém jazyce (mimo překladů smluv ověřených notářem).
Vážení klienti, prohlídka nemovitostí, sdělení polohy a další podrobné informace je možné pouze s podepsanou smlouvou o zastoupení, která je základem pro další akce jako je nákup nemovitosti. Vše je dle Zákona o zprostředkování při koupi nemovitostí. Kupující platí zákonnou provizi za zastoupení ve výši 3 % (+ DPH) z dohodnuté ceny, a to pouze v případě koupě nemovitosti. V případě, že se koupě neuskuteční, smlouva Vás k ničemu nezavazuje, a ruší se. V případě vážného zájmu o nemovitost Vám smlouvu zašleme na požádání.
Odpovíme Vám do 24 hodin.
Nabízíme pouze prověřené reality.
Ručíme za kvalitní servis.
Pomůžeme zajistit ubytování při prohlídkách.